Moradia 3 suítes com closet
Ref. Interna: IM1671
Moradia V3 isolada, composta por três suítes com closet, localizada na tranquila e aprazível zona periférica de Paredes.
Concebida a pensar no conforto, na privacidade e na qualidade de vida, esta propriedade combina uma arquitetura moderna com espaços amplos e luminosos, ideais para quem procura um lar distinto e funcional.
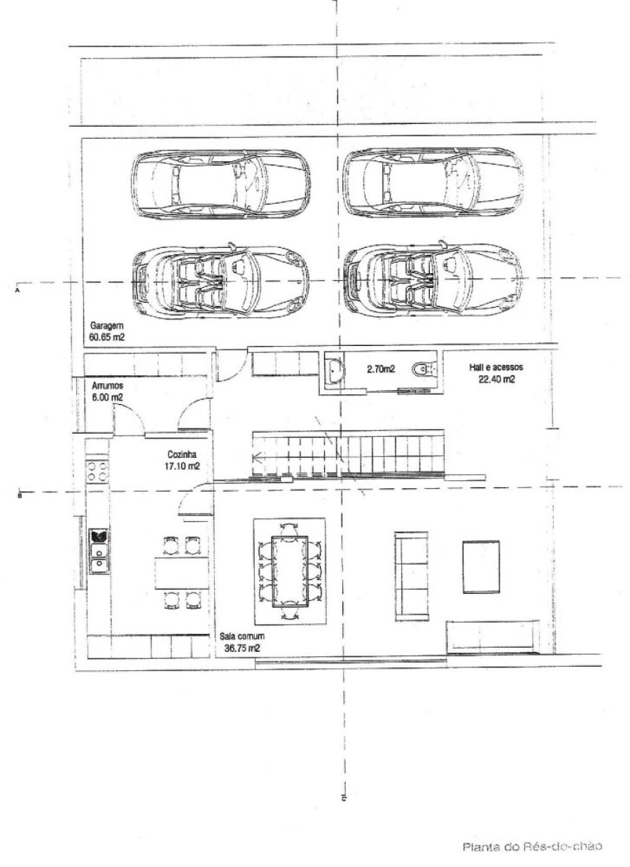
No rés-do-chão, encontra-se uma espaçosa garagem com 60 m², com capacidade para quatro viaturas, garantindo total comodidade e segurança. O piso dispõe ainda de uma ampla sala comum, perfeita para momentos de convívio em família, uma cozinha pensada para o quotidiano moderno, um WC de serviço e uma zona de arrumos.
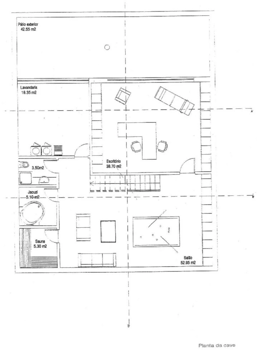
Descendo à cave, o imóvel surpreende pelo seu notável aproveitamento de espaço e conforto. Aqui, encontramos um escritório, um salão generoso com cerca de 53 m², que pode ser adaptado a diversas finalidades — sala de jogos, ginásio ou zona de lazer —, uma lavandaria funcional, uma sauna e um jacuzzi, proporcionando um verdadeiro refúgio de bem-estar no conforto da sua casa. Este piso conta ainda com um WC de serviço e um agradável terraço com cerca de 43 m², perfeito para desfrutar de momentos ao ar livre.
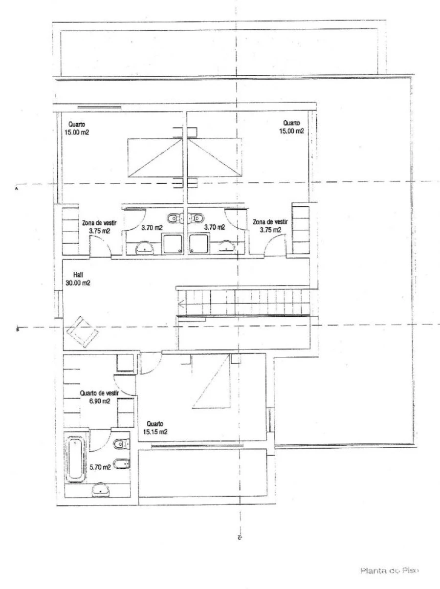
O primeiro andar é dedicado à área íntima da habitação, com três elegantes suítes, todas com closet, oferecendo o máximo de conforto e arrumação. Uma das suítes dispõe ainda de varanda privativa, onde poderá apreciar a serenidade da envolvente.
Situada numa zona calma, composta por moradias similares, contudo próxima de todos os serviços essenciais e do centro urbano.
Não se preocupe com a burocracia ou com a extenuante tarefa de análise como propostas de crédito; temos à sua disposição um departamento jurídico que separa que tudo é tratado dentro dos trâmites legais e de forma a salvaguardar os seus interesses, e departamento de análise de crédito que o auxiliar na interpretação das melhores propostas conseguidas.
Marque já a sua visita.
IMPACTUS, a criar impacto desde o primeiro clique!