Voltar
Moradia T4 para Venda em Alcantara Foto 1
Moradia T4 para Venda em Alcantara Foto 2
Moradia T4 para Venda em Alcantara Foto 3
Moradia T4 para Venda em Alcantara Foto 4
Moradia T4 para Venda em Alcantara Foto 5

Moradia T4 para Venda em Alcantara

595.000 €

Tipo
Moradia
Negócio
Venda
Quartos
4
Casas de Banho
4
Área Bruta
242 m²
Condição
Em projecto
Certificado Energético
A+
Área do Terreno
30 m²

Loft T4 com garagem em Alcântara, Lisboa

Escondida em um dos pequenos bairros mais autênticos de Alcântara, esta impressionante casa de três andares projetada como um loft é uma ode ao espaço, à luz e à vida moderna. O projeto aprovado reimagina a vida urbana através de volumes generosos, materiais naturais e uma ligação inspirada entre espaços interiores e exteriores.

No piso térreo, grandes janelas abrem a sala de estar principal para dois pátios privados, inundando os espaços com luz natural. Enquanto espaços funcionais como sala de estar, cozinha, sala de estar, hall de entrada e sala de jantar são projetados como subespaços, eles funcionam juntos como um ambiente único e de plano aberto, ainda mais aprimorado pelas linhas de visão abertas para os dois pátios e a enorme altura do teto e aberturas verticais do vazio central.

O layout convida a uma vida fácil - de um café da manhã ao sol a noites compartilhadas ao redor da mesa de jantar. Acabamentos de inspiração industrial em concreto e madeira quente criam uma atmosfera refinada e minimalista, equilibrada pelo terraço ao ar livre com azulejos verdes projetado para relaxar e entreter. Uma garagem e casa de banho completam este nível.

O primeiro andar é inteiramente dedicado ao conforto e privacidade, com dois elegantes quartos en-suite. Um deles inclui um generoso closet, enquanto ambos têm vista para o pátio interno, permitindo que a luz suave e a vegetação filtrem o interior. O uso cuidadoso da textura e da proporção traz uma sensação subtil de luxo a cada canto.

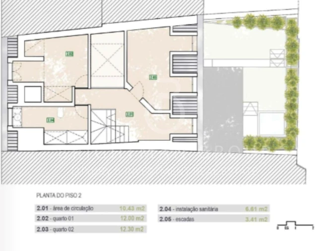
O nível superior oferece mais dois quartos que compartilham uma grande casa de banho. Uma ampla área de circulação, iluminada por claraboias, oferece a flexibilidade para criar um escritório em casa, estúdio ou recanto de leitura - tudo sob a geometria expressiva da linha do telhado. Ao longo dos três andares, um vazio aberto central melhora a circulação vertical e a ventilação natural, garantindo brilho e fluxo de ar em toda a casa.

Alcântara combina o charme tradicional com uma energia criativa crescente. A uma curta distância das principais estradas e do LX Factory, este pequeno canto pitoresco está aninhado longe das ruas principais e goza de uma existência quase clandestina na parte mais criativamente carregada de Alcântara. Perto do Hospital CUF Tejo, junto ao rio, a propriedade está rodeada por cafés, comércio local e espaços verdes. O acesso rápido à A5, à Ponte 25 de abril, mas sem 'distância de ruído', e às principais escolas de Lisboa torna-a num local ideal tanto para a vida familiar como para os profissionais urbanos.

Localização

Alcantara, Lisboa, Lisboa

Informação do anúncio

ID do anúncio 1456824
Referência Externa M0449.ML.LX
Atualizado em 20/11/2025 18:04:18
Brightman Group AMI 17077
Referência do imóvel: M0449.ML.LX
Phone
Chamada para a rede móvel nacional
Brightman Group AMI 17077
Referência do imóvel: M0449.ML.LX
Phone
Chamada para a rede móvel nacional
1 / 13
Moradia T4 para Venda em Alcantara Foto 1
Moradia T4 para Venda em Alcantara Foto 2
Moradia T4 para Venda em Alcantara Foto 3
Moradia T4 para Venda em Alcantara Foto 4
Moradia T4 para Venda em Alcantara Foto 5
Moradia T4 para Venda em Alcantara Foto 6
Moradia T4 para Venda em Alcantara Foto 7
Moradia T4 para Venda em Alcantara Foto 8
Moradia T4 para Venda em Alcantara Foto 9
Moradia T4 para Venda em Alcantara Foto 10
Moradia T4 para Venda em Alcantara Foto 11
Moradia T4 para Venda em Alcantara Foto 12
Moradia T4 para Venda em Alcantara Foto 13
Clicky