Terreno para Venda em Santo Isidoro
250.000 €
Tipo
Terreno
Negócio
Venda
Ano de Construção
2025
Certificado Energético
N/A
Área do Terreno
2343 m²
Oportunidade de Construção Imediata: Terreno com Projeto Aprovado e Licença Ativa
Oportunidade de Construção Imediata: Terreno com Projeto Aprovado e Licença Ativa
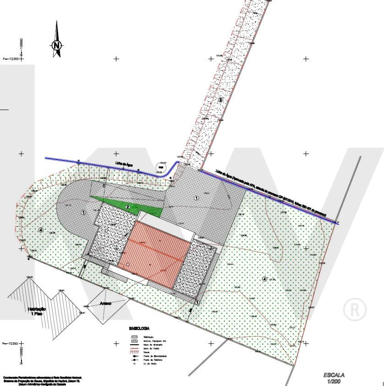
Evite a incerteza e os longos prazos de aprovação camarária (2 a 3 anos). Este terreno de 2.343,50 m² conta com licença de construção válida até setembro de 2026, permitindo o início imediato da obra.
Destaques do Projeto de Arquitetura:
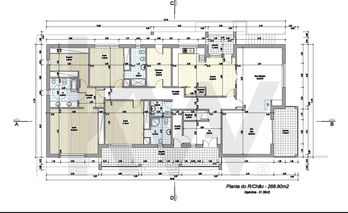
O imóvel dispõe de um projeto aprovado para uma moradia unifamiliar de design contemporâneo, distribuída por dois pisos (Cave e Rés-do-Chão), com as seguintes características:
Tipologia e Configuração: Moradia com áreas generosas, incluindo uma ampla zona social, cozinha equipada, alpendres e garagem fechada na cave.
Área de Implantação: 320,10 m².
Área Total de Construção: 346,70 m².
Volumetria: 1.051,20 m³.
Distribuição de Áreas:
Piso Principal (R/C): 268,80 m² de área útil, complementados por 81,00 m² de alpendres.
Piso Inferior (Cave): 77,90 m², destinados a garagem e arrumos.
Viabilidade e Sustentabilidade do Terreno:
Área Permeável: O projeto preserva uma vasta área verde de 1.673,40 m², integrando vegetação nativa (1.253,40 m²) e áreas ajardinadas.
Acabamentos de Qualidade: O mapa de acabamentos prevê o uso de pedra calcária, vãos em alumínio termolacado, estores térmicos e cobertura em telha cerâmica.
Pacote Técnico Completo: Inclui todos os projetos de especialidades aprovados (Estruturas, Gás Natural/ITG, Elétrico, ITED e Águas Pluviais).
Localização Privilegiada:
Situado na Rua do Forte, Arneiro/Lagoa (Santo Isidoro), Mafra. Uma zona que combina a tranquilidade do campo com a proximidade da costa.
Segurança Jurídica: Propriedade livre de quaisquer ónus, encargos ou hipotecas.
Evite a incerteza e os longos prazos de aprovação camarária (2 a 3 anos). Este terreno de 2.343,50 m² conta com licença de construção válida até setembro de 2026, permitindo o início imediato da obra.
Destaques do Projeto de Arquitetura:
O imóvel dispõe de um projeto aprovado para uma moradia unifamiliar de design contemporâneo, distribuída por dois pisos (Cave e Rés-do-Chão), com as seguintes características:
Tipologia e Configuração: Moradia com áreas generosas, incluindo uma ampla zona social, cozinha equipada, alpendres e garagem fechada na cave.
Área de Implantação: 320,10 m².
Área Total de Construção: 346,70 m².
Volumetria: 1.051,20 m³.
Distribuição de Áreas:
Piso Principal (R/C): 268,80 m² de área útil, complementados por 81,00 m² de alpendres.
Piso Inferior (Cave): 77,90 m², destinados a garagem e arrumos.
Viabilidade e Sustentabilidade do Terreno:
Área Permeável: O projeto preserva uma vasta área verde de 1.673,40 m², integrando vegetação nativa (1.253,40 m²) e áreas ajardinadas.
Acabamentos de Qualidade: O mapa de acabamentos prevê o uso de pedra calcária, vãos em alumínio termolacado, estores térmicos e cobertura em telha cerâmica.
Pacote Técnico Completo: Inclui todos os projetos de especialidades aprovados (Estruturas, Gás Natural/ITG, Elétrico, ITED e Águas Pluviais).
Localização Privilegiada:
Situado na Rua do Forte, Arneiro/Lagoa (Santo Isidoro), Mafra. Uma zona que combina a tranquilidade do campo com a proximidade da costa.
Segurança Jurídica: Propriedade livre de quaisquer ónus, encargos ou hipotecas.
Localização
Santo Isidoro, Mafra, Lisboa
Informação do anúncio
ID do anúncio
1463280
Referência Externa
KWPT-022055
Atualizado em
26/04/2026 00:03:12
Anunciante
Chamada para a rede móvel nacional
KW Believe
AMI 26938
Referência do imóvel:
KWPT-022055
Terreno para Venda em Santo Isidoro