Voltar
Terreno para Venda em Póvoa de Santa Iria e Forte da Casa Foto 1
Terreno para Venda em Póvoa de Santa Iria e Forte da Casa Foto 2
Terreno para Venda em Póvoa de Santa Iria e Forte da Casa Foto 3
Terreno para Venda em Póvoa de Santa Iria e Forte da Casa Foto 4
Terreno para Venda em Póvoa de Santa Iria e Forte da Casa Foto 5

Terreno para Venda em Póvoa de Santa Iria e Forte da Casa

400.000 €

Tipo
Terreno
Negócio
Venda
Área do Terreno
1375 m²

Descrição

Terreno com 327 m2 de implantação, com projeto aprovado para prédio de 7 fracções (6 apartamentos e 1 garagem), com 1375 m2 de área bruta de construção, com licença a pagamento



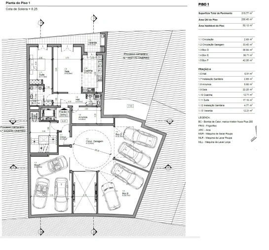
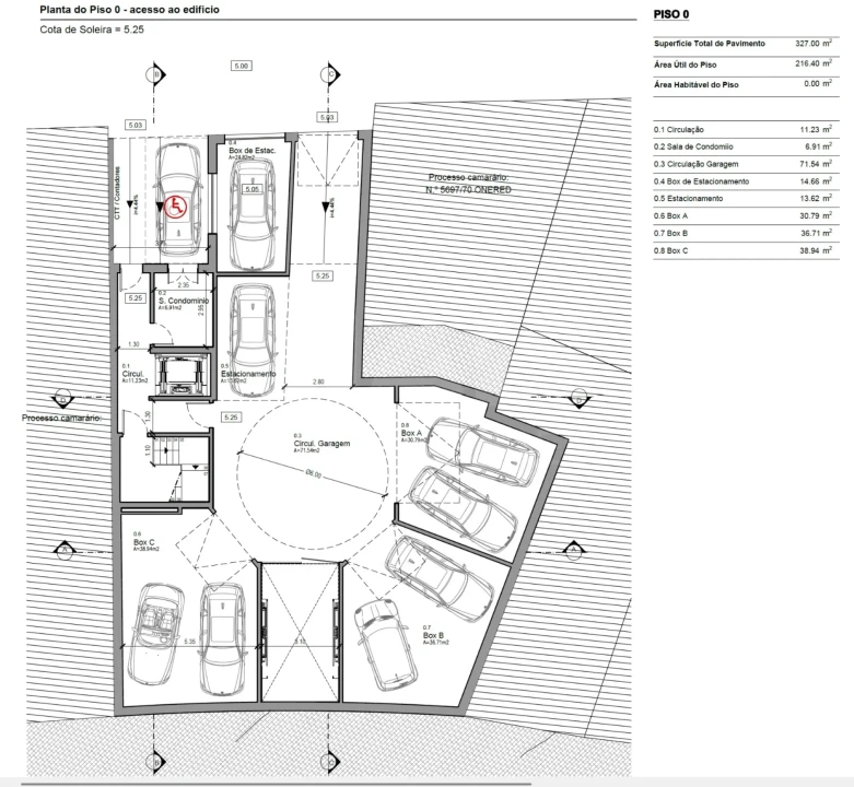
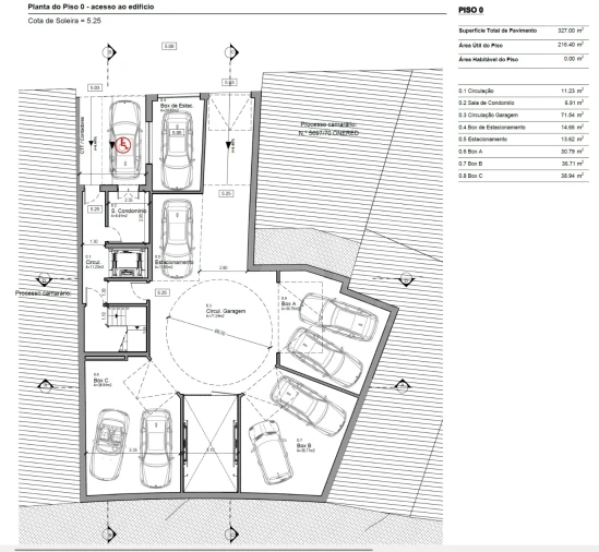
Piso 0

- Garagem Box com saída direta para a rua com 25 m2

- 3 boxes com 2 lugares de estacionamento cada, pertencente aos apartamentos dos pisos superiores

- Sala de Condomínio



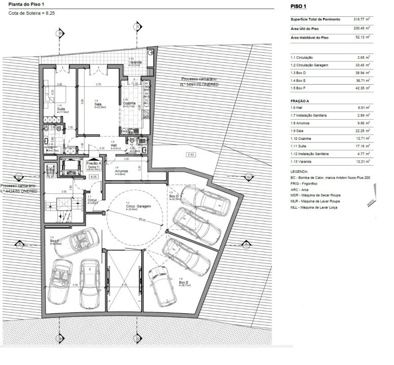
Piso 1 -

- Apartamento T1 + 1 com 92,5 m2 de área bruta

- 3 boxes com 2 lugares de estacionamento cada, pertencente aos apartamentos dos pisos superiores



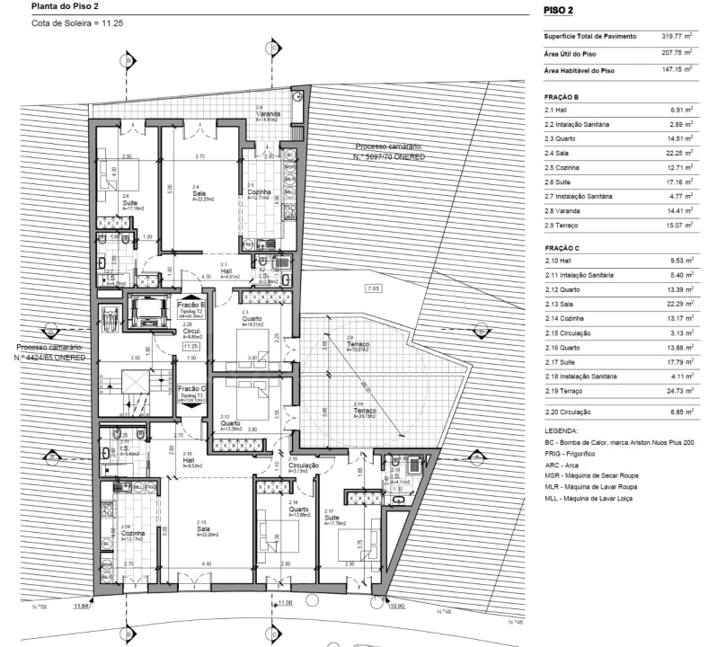
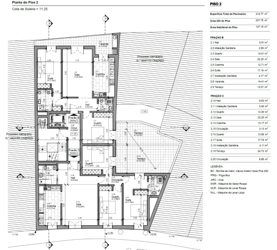
Piso 2

- Apartamento T2 com 98,40 m2 de área bruta com terraço e varanda

- Apartamento T3 com 124,10 m2 de área bruta com terraço



Piso 3

- Apartamento T2 com 84,40 m2 de área bruta com varanda

- Apartamento T3 com 124,10 m2 de área bruta com varanda



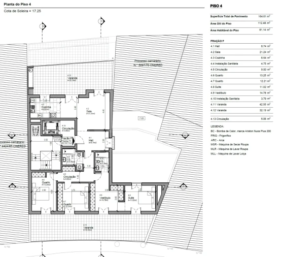
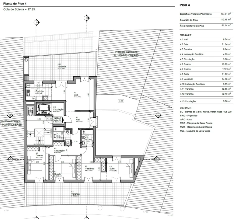
Piso 4

- Apartamento/penthouse com 150,10m2 de área bruta com 2 terraços de 32,00m2 e 40,00 m2 respectivamente



Investimento seguro em zona urbana consolidada, com todos os projetos concluídos e aprovados, pronto para iniciar construção



Para mais informações contacte-me

Localização

Póvoa de Santa Iria e Forte da Casa, Vila Franca de Xira, Lisboa

Informação do anúncio

ID do anúncio 1464880
Referência Externa 66584-MCPF60514
Atualizado em 12/11/2025 10:31:28
MaisConsultores #Rio AMI 22830
Referência do imóvel: 66584-MCPF60514
MaisConsultores #Rio AMI 22830
Referência do imóvel: 66584-MCPF60514
1 / 6
Terreno para Venda em Póvoa de Santa Iria e Forte da Casa Foto 1
Terreno para Venda em Póvoa de Santa Iria e Forte da Casa Foto 2
Terreno para Venda em Póvoa de Santa Iria e Forte da Casa Foto 3
Terreno para Venda em Póvoa de Santa Iria e Forte da Casa Foto 4
Terreno para Venda em Póvoa de Santa Iria e Forte da Casa Foto 5
Terreno para Venda em Póvoa de Santa Iria e Forte da Casa Foto 6
Clicky