Voltar
Moradia T3 para Venda em Vila Cã Foto 1
Moradia T3 para Venda em Vila Cã Foto 2
Moradia T3 para Venda em Vila Cã Foto 3
Moradia T3 para Venda em Vila Cã Foto 4
Moradia T3 para Venda em Vila Cã Foto 5

Moradia T3 para Venda em Vila Cã

185.000 €

Tipo
Moradia
Negócio
Venda
Ano de Construção
2017
Quartos
3
Casas de Banho
2
Área Bruta
220 m²
Área Útil
93 m²
Condição
Usado
Certificado Energético
D
Área do Terreno
629 m²

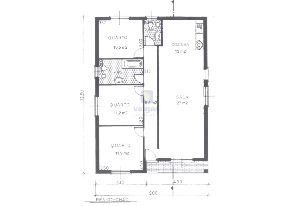
Moradia térrea isolada T3 em Vila Cã, Pombal, com sótão e terreno com 300 m2

Exclusivo! Moradia térrea isolada T3 em Vila Cã, Pombal, com sótão e terreno com 300 m2.

A moradia possui uma área bruta de construção de 220m2, dispondo no piso térreo de 3 quartos, 2 casas de banho, sala com lareira e cozinha em open space com 40 m2, e sótão com 67,5 m2.

A moradia foi parcialmente remodelada, não concluída, sendo entregue nas condições atuais. Possui caixilharia em alumínio com vidro duplo, cozinha com forno, placa e termoacumulador.

Possui terreno com 629 m2, totalmente em solo urbano, onde poderá fazer um jardim, horta, estacionamento ou piscina.

Localizado em Vila Cã, uma localidade tranquila a apenas 8 km de Pombal, onde tem disponível todo o tipo de serviços.

A moradia não possui Licença de Habitação, podendo ser feita escritura ao abrigo do Decreto-Lei n.º 10/2024, pronto pagamento, sem recurso a financiamento bancário.

Localização

Vila Cã, Pombal, Leiria

Informação do anúncio

ID do anúncio 1474155
Referência Externa LIZ-216638
Atualizado em 23/02/2026 02:00:22
Veigas Liz AMI 8044
Referência do imóvel: LIZ-216638
Phone
Chamada para a rede fixa nacional
Veigas Liz AMI 8044
Referência do imóvel: LIZ-216638
Phone
Chamada para a rede fixa nacional
1 / 29
Moradia T3 para Venda em Vila Cã Foto 1
Moradia T3 para Venda em Vila Cã Foto 2
Moradia T3 para Venda em Vila Cã Foto 3
Moradia T3 para Venda em Vila Cã Foto 4
Moradia T3 para Venda em Vila Cã Foto 5
Moradia T3 para Venda em Vila Cã Foto 6
Moradia T3 para Venda em Vila Cã Foto 7
Moradia T3 para Venda em Vila Cã Foto 8
Moradia T3 para Venda em Vila Cã Foto 9
Moradia T3 para Venda em Vila Cã Foto 10
Moradia T3 para Venda em Vila Cã Foto 11
Moradia T3 para Venda em Vila Cã Foto 12
Moradia T3 para Venda em Vila Cã Foto 13
Moradia T3 para Venda em Vila Cã Foto 14
Moradia T3 para Venda em Vila Cã Foto 15
Moradia T3 para Venda em Vila Cã Foto 16
Moradia T3 para Venda em Vila Cã Foto 17
Moradia T3 para Venda em Vila Cã Foto 18
Moradia T3 para Venda em Vila Cã Foto 19
Moradia T3 para Venda em Vila Cã Foto 20
Moradia T3 para Venda em Vila Cã Foto 21
Moradia T3 para Venda em Vila Cã Foto 22
Moradia T3 para Venda em Vila Cã Foto 23
Moradia T3 para Venda em Vila Cã Foto 24
Moradia T3 para Venda em Vila Cã Foto 25
Moradia T3 para Venda em Vila Cã Foto 26
Moradia T3 para Venda em Vila Cã Foto 27
Moradia T3 para Venda em Vila Cã Foto 28
Moradia T3 para Venda em Vila Cã Foto 29
Moradia T3 para Venda em Vila Cã
Clicky