Voltar
Terreno para Venda em Alfeizerão Foto 1
Terreno para Venda em Alfeizerão Foto 2
Terreno para Venda em Alfeizerão Foto 3
Terreno para Venda em Alfeizerão Foto 4
Terreno para Venda em Alfeizerão Foto 5

Terreno para Venda em Alfeizerão

160.000 €

Tipo
Terreno
Negócio
Venda
Área Bruta
2100 m²
Área Útil
900 m²
Condição
Novo
Certificado Energético
Não se aplica
Área do Terreno
5336 m²

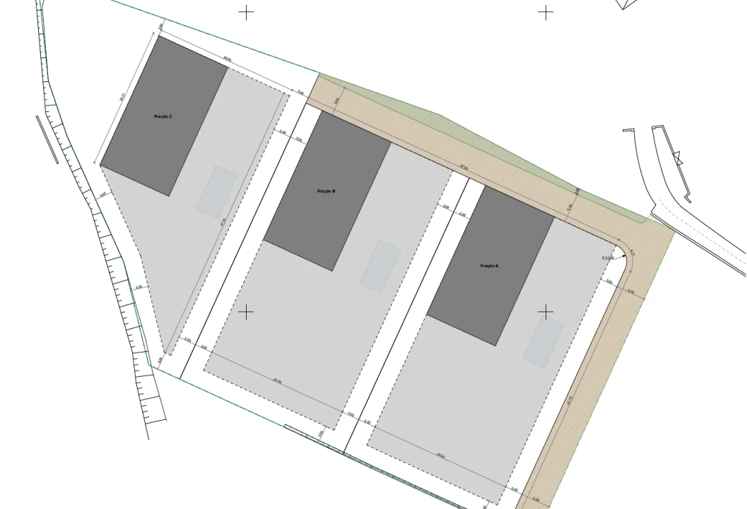
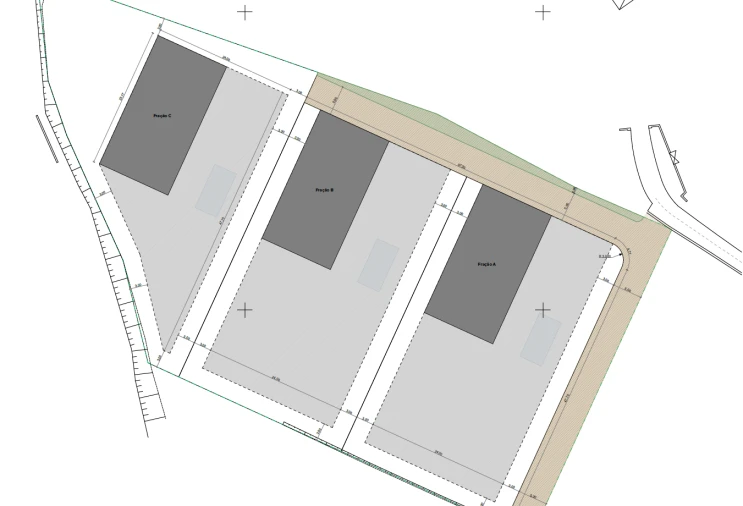
Terreno para construção de 3 moradias

Situado na bonita aldeia de Casal Velho, encontramos um terreno urbano perfeito para o projeto de qualquer pessoa que tenha idealizado construir a sua própria moradia ou para construtores que procurei o local ideal para um pequeno empreendimento.

Com uma área total de 5336.7m², este pequeno cantinho do céu conta com Informação Previa favorável a construção de 3 moradias e todas as plantas aprovadas.

Possível construção de 3 frações:
A - T3/T4 - 1.519m2 lote, 300m2 de implantação, construção de 2 pisos + cave
B - T3/T4 - 1.521m2 lote, 300m2 implantação, construção de 2 pisos + cave
C - T3/T4 - 1.618m2 lote, 300m2 implantação, construção de 2 pisos + cave

Exposição solar muito boa, acessos a bens de 1º necessidade fáceis e rápidos.
Próximo da Vila de São Martinho do Porto, da Cidade de Alcobaça e de Caldas da Rainha, a localização não poderia ser melhor.

Não hesite em contactar para conhecer todos os pormenores desta excelente oportunidade de investimento.

Localização

Alfeizerão, Alcobaça, Leiria

Informação do anúncio

ID do anúncio 1477536
Referência Externa 0093
Atualizado em 19/11/2025 09:32:47
Engenharia & Construção & Imobiliária & Crédito AMI 24609
Referência do imóvel: 0093
Phone
Chamada para a rede móvel nacional
Engenharia & Construção & Imobiliária & Crédito AMI 24609
Referência do imóvel: 0093
Phone
Chamada para a rede móvel nacional
1 / 13
Terreno para Venda em Alfeizerão Foto 1
Terreno para Venda em Alfeizerão Foto 2
Terreno para Venda em Alfeizerão Foto 3
Terreno para Venda em Alfeizerão Foto 4
Terreno para Venda em Alfeizerão Foto 5
Terreno para Venda em Alfeizerão Foto 6
Terreno para Venda em Alfeizerão Foto 7
Terreno para Venda em Alfeizerão Foto 8
Terreno para Venda em Alfeizerão Foto 9
Terreno para Venda em Alfeizerão Foto 10
Terreno para Venda em Alfeizerão Foto 11
Terreno para Venda em Alfeizerão Foto 12
Terreno para Venda em Alfeizerão Foto 13
Clicky