Voltar
Apartamento T3 para Venda em Lordelo Foto 1
Apartamento T3 para Venda em Lordelo Foto 2
Apartamento T3 para Venda em Lordelo Foto 3
Apartamento T3 para Venda em Lordelo Foto 4
Apartamento T3 para Venda em Lordelo Foto 5

Apartamento T3 para Venda em Lordelo

320.000 €

Tipo
Apartamento
Negócio
Venda
Ano de Construção
2026
Quartos
3
Casas de Banho
2
Área Bruta
158 m²
Área Útil
114 m²
Certificado Energético
Em tramite

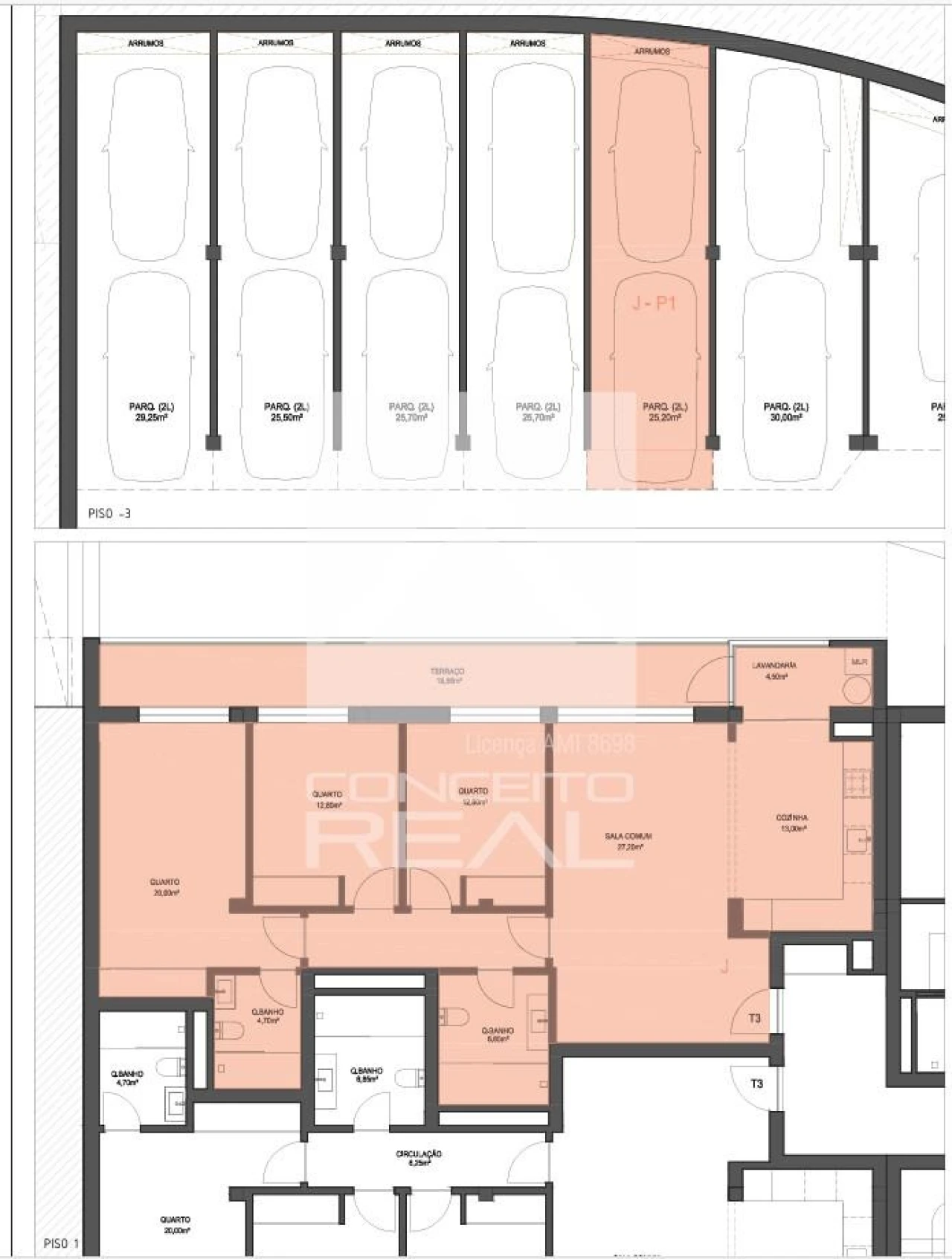
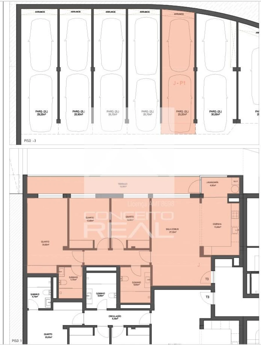
Apart. T3 c/ Box p/ 2 viat. Novo - Lordelo (Paredes)

Estado: Em construção| Ano construção: 2027|
Tipologia: T3| Casas de Banho: 2| Varanda: Sim|
Garagem: box | Elevador: Sim| Ar condicionado: Sim|

Edifícios — O Seu Novo Lar em Lordelo

O Park 3 é um novo empreendimento residencial que eleva o padrão de qualidade e conforto em Lordelo. Com uma arquitetura moderna e linhas elegantes, apresenta apartamentos T3 amplos, entre 150 m² e 200 m², concebidos para oferecer uma experiência de habitação superior. Todos os apartamentos incluem garagem box fechada, arrumos e varandas generosas em todos os quartos e salas, privilegiando a luminosidade natural e o bem-estar.

O interior reflete a combinação perfeita entre a nobreza dos materiais aplicados e a funcionalidade. As cozinhas open space surgem totalmente equipadas com forno, placa, exaustor, máquina de lavar loiça e micro-ondas, criando um ambiente prático e harmonioso. Os apartamentos oferecem ainda isolamento térmico e acústico de elevada eficiência, estores elétricos, sistema completo de ar condicionado e casas de banho com piso radiante, garantindo conforto em todas as estações do ano.

Situado numa zona central e privilegiada, o Park 3 representa uma oportunidade única para quem procura espaço, modernidade e qualidade num só lugar. O Park 3 encontra-se em fase de pedreiro tendo a sua conclusão prevista para Agosto 2027, tornando este o momento ideal para assegurar o seu futuro lar com condições especiais nesta fase.

Localização Estratégica:
Aeroporto — 20 minutos
Paredes centro — 15 minutos
Paços de Ferreira centro — 10 minutos
Porto centro — 30 minutos

Cada imóvel é único. Escolha o seu com a nossa ajuda.
Somos Intermediários de crédito vinculado, registados no banco de Portugal com o nº 2222.

Localização

Lordelo, Paredes, Porto

Informação do anúncio

ID do anúncio 1477769
Referência Externa CR3936
Atualizado em 23/02/2026 00:32:42
Conceito Real AMI 8698
Referência do imóvel: CR3936
Phone
Chamada para a rede fixa nacional
Conceito Real AMI 8698
Referência do imóvel: CR3936
Phone
Chamada para a rede fixa nacional
1 / 23
Apartamento T3 para Venda em Lordelo Foto 1
Apartamento T3 para Venda em Lordelo Foto 2
Apartamento T3 para Venda em Lordelo Foto 3
Apartamento T3 para Venda em Lordelo Foto 4
Apartamento T3 para Venda em Lordelo Foto 5
Apartamento T3 para Venda em Lordelo Foto 6
Apartamento T3 para Venda em Lordelo Foto 7
Apartamento T3 para Venda em Lordelo Foto 8
Apartamento T3 para Venda em Lordelo Foto 9
Apartamento T3 para Venda em Lordelo Foto 10
Apartamento T3 para Venda em Lordelo Foto 11
Apartamento T3 para Venda em Lordelo Foto 12
Apartamento T3 para Venda em Lordelo Foto 13
Apartamento T3 para Venda em Lordelo Foto 14
Apartamento T3 para Venda em Lordelo Foto 15
Apartamento T3 para Venda em Lordelo Foto 16
Apartamento T3 para Venda em Lordelo Foto 17
Apartamento T3 para Venda em Lordelo Foto 18
Apartamento T3 para Venda em Lordelo Foto 19
Apartamento T3 para Venda em Lordelo Foto 20
Apartamento T3 para Venda em Lordelo Foto 21
Apartamento T3 para Venda em Lordelo Foto 22
Apartamento T3 para Venda em Lordelo Foto 23
Clicky