Negócio para Venda em Luso
1.350.000 €
Tipo
Negócio
Negócio
Venda
Quartos
15
Área Útil
1330 m²
Condição
Recuperado
Área do Terreno
420 m²
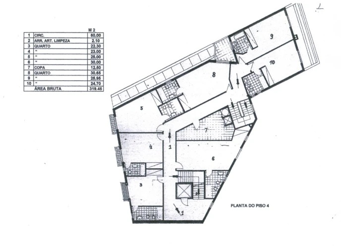
Hotel T15 | Renovado | Luso -Mealhada
Oportunidade Única - Boutique Hotel à Venda no Luso
Apresentamos um elegante boutique hotel à venda, situado no coração do Luso, destino reconhecido pelo seu turismo termal, pela prestigiada água mineral Luso e pela proximidade a patrimónios históricos e culturais de referência.
Integrado na região vitivinícola da Bairrada, em plena floresta do Buçaco e junto ao icónico Palácio do Buçaco, este imóvel reúne localização privilegiada e elevado potencial de rentabilidade.
Características do Imóvel
4 pisos com design sofisticado e funcional
15 quartos amplos e bem equipados
Elevador para maior acessibilidade
Receção acolhedora com serviço personalizado
Restaurante e bar no primeiro piso, abertos a hóspedes e público externo
Garagem privativa ao nível do rés do chão
Localização Estratégica
A 2 minutos das prestigiadas Termas & SPA do Luso
A 5 minutos do icónico Palácio e Museu do Buçaco
A 25 minutos de Coimbra, cidade universitária e centro de negócios
A 10 minutos da A1
A 50 minutos do Aeroporto Internacional do Porto
Potencial de Investimento
Este hotel distingue-se pelo charme, exclusividade e atratividade turística da região, beneficiando da crescente procura por experiências autênticas e diferenciadas de hospedagem.
Uma oportunidade imperdível para quem procura um negócio rentável num dos destinos termais mais prestigiados de Portugal.
Para mais informações ou agendamento de visita, contacte-nos.
Apresentamos um elegante boutique hotel à venda, situado no coração do Luso, destino reconhecido pelo seu turismo termal, pela prestigiada água mineral Luso e pela proximidade a patrimónios históricos e culturais de referência.
Integrado na região vitivinícola da Bairrada, em plena floresta do Buçaco e junto ao icónico Palácio do Buçaco, este imóvel reúne localização privilegiada e elevado potencial de rentabilidade.
Características do Imóvel
4 pisos com design sofisticado e funcional
15 quartos amplos e bem equipados
Elevador para maior acessibilidade
Receção acolhedora com serviço personalizado
Restaurante e bar no primeiro piso, abertos a hóspedes e público externo
Garagem privativa ao nível do rés do chão
Localização Estratégica
A 2 minutos das prestigiadas Termas & SPA do Luso
A 5 minutos do icónico Palácio e Museu do Buçaco
A 25 minutos de Coimbra, cidade universitária e centro de negócios
A 10 minutos da A1
A 50 minutos do Aeroporto Internacional do Porto
Potencial de Investimento
Este hotel distingue-se pelo charme, exclusividade e atratividade turística da região, beneficiando da crescente procura por experiências autênticas e diferenciadas de hospedagem.
Uma oportunidade imperdível para quem procura um negócio rentável num dos destinos termais mais prestigiados de Portugal.
Para mais informações ou agendamento de visita, contacte-nos.
Localização
Luso, Mealhada, Aveiro
Informação do anúncio
ID do anúncio
1480041
Referência Externa
MZ_ZG_VL_T15
Atualizado em
20/11/2025 18:16:51
Anunciante
Chamada para a rede fixa nacional
ZuGruppe - The Velvet Return
AMI 11355
Referência do imóvel:
MZ_ZG_VL_T15
Consultor
ZuHaus
Negócio para Venda em Luso