Magnífica moradia geminada para renovar I 287,10 m² I terreno 305 m² I Pátio I 4 quartos I
Situada no coração da vila de Estoi, esta casa é um encantador testemunho da arquitetura tradicional portuguesa.
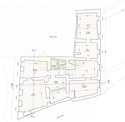
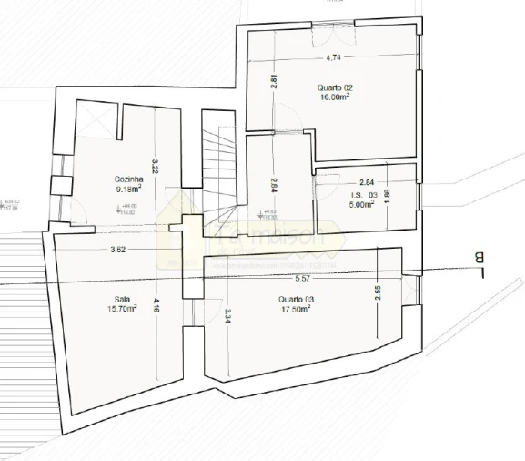
Com uma área generosa de 287,10 m², foi construída em dois pisos num terreno de 305 m².
Atualmente, dispõe de quatro quartos, duas casas de banho, um WC de serviço, um hall de entrada espaçoso, uma ampla sala de estar, uma cozinha e uma área adjacente para a sala de jantar, com acesso a um grande pátio de 93 m² nas traseiras.
Um dos quartos fica no rés-do-chão e tem casa de banho privativa. Os outros três ficam no andar de cima; dois deles têm um terraço cada, com belas vistas sobre a vila e os arredores.
A casa foi totalmente renovada há alguns anos e necessita atualmente de uma remodelação.
Tem também um projeto recentemente aprovado pela Câmara Municipal de Faro para alterações interiores, ampliação de um dos quartos no andar de cima e construção de uma piscina no pátio.
Possui muitas características típicas da região que lhe conferem todo o charme local: chão de tijoleira de Santa Catarina, tetos altos de madeira, alguns abobadados ou de tijolos, portas interiores de madeira com vidro, a sua antiga lareira que pode acomodar uma salamandra e a sua magnífica fachada com as suas cantarias originais em pedra.
Tem agua da rede e esgotos.
Está situada numa pequena praça arborizada e tranquila da vila de Estoi, a poucos passos da Pousada do Palácio.
Estoi é uma vila autêntica e pitoresca, rica em história, com ruas pavimentadas, bonitas fachadas tradicionais e uma atmosfera tranquila e acolhedora, que oferece um estilo de vida pacífico e descontraído. O Aeroporto Internacional de Faro e as praias ficam a apenas 15 minutos da aldeia.
A arquitetura da casa, bem como os seus volumes, combinados com a sua localização, tornam-na ideal para quem procura uma casa familiar para viver ou para estadias de férias.
Este site utiliza cookies. Ao navegar no site estará a consentir a sua utilização. Para mais informações sobre os cookies pode consultar a
política de privacidade.