Voltar
Apartamento T3 para Venda em Aver-O-Mar, Amorim e Terroso Foto 1
Apartamento T3 para Venda em Aver-O-Mar, Amorim e Terroso Foto 2
Apartamento T3 para Venda em Aver-O-Mar, Amorim e Terroso Foto 3
Apartamento T3 para Venda em Aver-O-Mar, Amorim e Terroso Foto 4
Apartamento T3 para Venda em Aver-O-Mar, Amorim e Terroso Foto 5

Apartamento T3 para Venda em Aver-O-Mar, Amorim e Terroso

250.000 €

Tipo
Apartamento
Negócio
Venda
Quartos
3
Casas de Banho
2
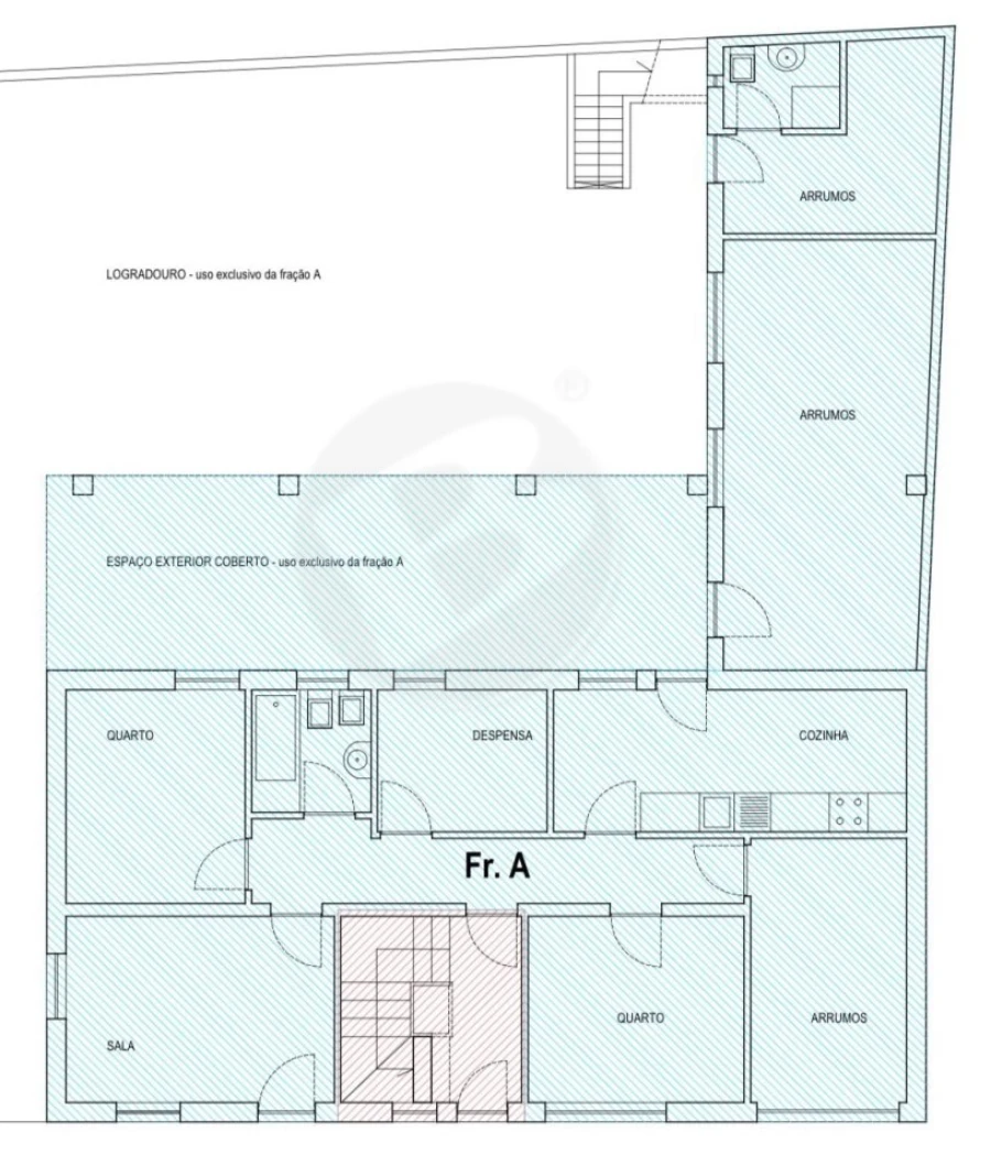
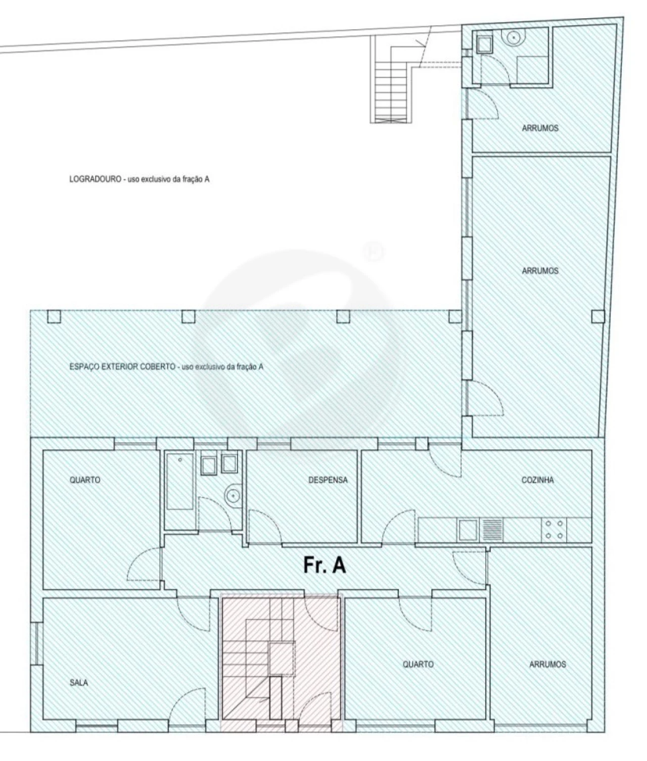
Área Bruta
132 m²
Área Útil
122 m²
Condição
Usado
Certificado Energético
D

T3 em 2ª Linha de Mar em Vila do Aver-O-Mar na Póvoa de Varzim

Apartamento T3 - Segunda Linha de Mar | Vila do Aver-O-Mar, Póvoa de Varzim.

Apresentamos este acolhedor apartamento T3, situado em segunda linha de mar, numa das zonas mais privilegiadas da Póvoa de Varzim, na tranquila Vila do Aver-O-Mar.

A sua excelente localização e os ótimos acessos tornam este imóvel ideal para quem valoriza a proximidade ao mar, a qualidade de vida e a conveniência no quotidiano.

Imagine-se a fazer caminhadas à beira-mar, a explorar a cidade de bicicleta ou a desfrutar do comércio local e das esplanadas.

Aqui, encontra o cenário perfeito para criar momentos inesquecíveis com família e amigos, num ambiente único junto ao oceano.

Com exposição solar nascente/poente, o apartamento usufrui de uma luminosidade fantástica ao longo de todo o dia.

O jardim e o terraço virado a poente é ideal para apreciar fins de tarde relaxantes e pôr-do-sol memoráveis.

O imóvel dispõe ainda de:

- Jardim virado a poente.
- Terraço virado a poente.
- 2 casas de banho.
- Garagem.

Divisões funcionais e luminosas.

Ambiente tranquilo e familiar.

Contacte para mais informações!

Este pode ser o seu próximo lar ou o investimento perfeito junto ao mar.



3-Bedroom Apartment - Second Line from the Sea | Vila do Aver-O-Mar, Póvoa de Varzim
We present this welcoming three-bedroom apartment, located on the second line from the sea, in one of the most privileged areas of Póvoa de Varzim, in the peaceful neighbourhood of Vila do Aver-O-Mar.

Its excellent location and great accessibility make this property ideal for those who value proximity to the sea, quality of life and everyday convenience.

Imagine enjoying seaside walks, exploring the town by bicycle, or relaxing in the local cafés and shops.

Here, you will find the perfect setting to create unforgettable moments with family and friends, in a unique environment by the ocean.

With east-west sun exposure, the apartment benefits from fantastic natural light throughout the day.

The west-facing garden and terrace are ideal for enjoying relaxing late afternoons and memorable sunsets.

Additional features:
West-facing garden

West-facing terrace

2 bathrooms

Garage

Bright, functional rooms

Peaceful, family-friendly environment

Contact us for more information!

This could be your next home or the perfect investment by the sea.

------------------------------------------------------------------------------------------------------


Beatriz Imobiliária - AMI 5921

Com mais de 20 anos de experiência, dispomos de um vasto conhecimento do mercado imobiliário da região, com especial foco em Vila do Conde e Póvoa de Varzim.
Em todos os negócios deixamos uma ligação de amizade e satisfação, mas também um sentimento de confiança e transparência, além do sentimento familiar e pessoal que não se explica, sente-se.

Somos naturais de Vila do Conde e Póvoa de Varzim, por isso, sabemos bem qual o tipo de vizinhança que melhor se enquadra na sua família e no tipo de investimento que pretende realizar.

Como intermediários oficiais de crédito, estamos a par das condições e requisitos necessários à obtenção do melhor crédito habitação possível.
Encarregamo-nos de todo o processo burocrático à realização da compra/venda, tudo, para que se preocupe apenas com uma coisa:

Quando quer começar as mudanças?

_

Beatriz Imobiliária - AMI 5921

With over 20 years of experience, we have a vast knowledge of the real estate market in the region, with a special focus on Vila do Conde and Póvoa de Varzim.

In all businesses, we leave a bond of friendship and satisfaction, but also a feeling of trust and transparency, in addition to the family and personal feeling that cannot be explained. Sit down.

We are from Vila do Conde and Póvoa de Varzim, so we know very well which type of neighborhood best fits your family and the type of investment you want to make.

As official credit intermediaries, we are aware of the conditions and requirements necessary to obtain the best mortgage loan possible.

We take care of the entire bureaucratic process to carry out the purchase/sale, everything, so that you can only worry about one thing:

When do you want to start the changes?


_

Beatriz Imobiliária - AMI 5921

Con más de 20 años de experiencia, tenemos un vasto conocimiento del mercado inmobiliario de la región, con especial foco en Vila do Conde y Póvoa de Varzim.

En todos los negocios dejamos un vínculo de amistad y satisfacción, pero también un sentimiento de confianza y transparencia, además del sentimiento familiar y personal que no se explica. Siéntate.

Somos de Vila do Conde y Póvoa de Varzim, por lo que sabemos muy bien qué tipo de barrio se adapta mejor a tu familia y el tipo de inversión que quieres realizar.

Como intermediarios oficiales de crédito, conocemos las condiciones y requisitos necesarios para obtener el mejor préstamo hipotecario posible.

Nos encargamos de todo el proceso burocrático para realizar la compra / venta, de todo, para que tú solo puedas preocuparte de una cosa:

¿Cuándo quieres comenzar con los cambios?


_

Beatriz Imobiliária - AMI 5921

Avec plus de 20 ans d'expérience, nous avons une vaste connaissance du marché immobilier de la région, avec un accent particulier sur Vila do Conde et Póvoa de Varzim.

Dans toutes les entreprises, nous laissons un lien d'amitié et de satisfaction, mais aussi un sentiment de confiance et de transparence, en plus du sentiment familial et personnel qui ne s'explique pas. S'asseoir.

Nous sommes de Vila do Conde et de Póvoa de Varzim, nous savons donc très bien quel type de quartier correspond le mieux à votre famille et le type d'investissement que vous souhaitez faire.

En tant qu'intermédiaires officiels de crédit, nous connaissons les conditions et exigences nécessaires pour obtenir le meilleur prêt hypothécaire possible.

Nous nous occupons de tout le processus bureaucratique pour effectuer l'achat/la vente, tout, afin que vous ne puissiez vous soucier que d'une chose :

Quand voulez-vous commencer les changements ?


_

Beatriz Imobiliária - AMI 5921

Mit über 20 Jahren Erfahrung verfügen wir über umfassende Kenntnisse des Immobilienmarktes in der Region, mit besonderem Fokus auf Vila do Conde und Póvoa de Varzim.

In allen Betrieben hinterlassen wir neben dem nicht zu erklärenden familiären und persönlichen Gefühl ein Band der Freundschaft und Zufriedenheit, aber auch ein Gefühl von Vertrauen und Transparenz. Hinsetzen.

Wir kommen aus Vila do Conde und Póvoa de Varzim, daher wissen wir sehr gut, welche Art von Nachbarschaft am besten zu Ihrer Familie passt und welche Art von Investition Sie tätigen möchten.

Als offizieller Kreditvermittler kennen wir die Voraussetzungen und Voraussetzungen, um den bestmöglichen Hypothekarkredit zu erhalten.

Wir übernehmen den gesamten bürokratischen Prozess bis hin zur Abwicklung des Kaufs/Verkaufs, alles, damit Sie sich nur um eines kümmern können:

Wann möchten Sie mit den Änderungen beginnen?

Localização

Aver-O-Mar, Amorim e Terroso, Póvoa de Varzim, Porto

Informação do anúncio

ID do anúncio 1491250
Referência Externa vc/6218
Atualizado em 29/11/2025 07:33:34
BEATRIZ Imobiliária AMI 5921
Referência do imóvel: vc/6218
Phone
Chamada para a rede fixa nacional
BEATRIZ Imobiliária AMI 5921
Referência do imóvel: vc/6218
Phone
Chamada para a rede fixa nacional
1 / 25
Apartamento T3 para Venda em Aver-O-Mar, Amorim e Terroso Foto 1
Apartamento T3 para Venda em Aver-O-Mar, Amorim e Terroso Foto 2
Apartamento T3 para Venda em Aver-O-Mar, Amorim e Terroso Foto 3
Apartamento T3 para Venda em Aver-O-Mar, Amorim e Terroso Foto 4
Apartamento T3 para Venda em Aver-O-Mar, Amorim e Terroso Foto 5
Apartamento T3 para Venda em Aver-O-Mar, Amorim e Terroso Foto 6
Apartamento T3 para Venda em Aver-O-Mar, Amorim e Terroso Foto 7
Apartamento T3 para Venda em Aver-O-Mar, Amorim e Terroso Foto 8
Apartamento T3 para Venda em Aver-O-Mar, Amorim e Terroso Foto 9
Apartamento T3 para Venda em Aver-O-Mar, Amorim e Terroso Foto 10
Apartamento T3 para Venda em Aver-O-Mar, Amorim e Terroso Foto 11
Apartamento T3 para Venda em Aver-O-Mar, Amorim e Terroso Foto 12
Apartamento T3 para Venda em Aver-O-Mar, Amorim e Terroso Foto 13
Apartamento T3 para Venda em Aver-O-Mar, Amorim e Terroso Foto 14
Apartamento T3 para Venda em Aver-O-Mar, Amorim e Terroso Foto 15
Apartamento T3 para Venda em Aver-O-Mar, Amorim e Terroso Foto 16
Apartamento T3 para Venda em Aver-O-Mar, Amorim e Terroso Foto 17
Apartamento T3 para Venda em Aver-O-Mar, Amorim e Terroso Foto 18
Apartamento T3 para Venda em Aver-O-Mar, Amorim e Terroso Foto 19
Apartamento T3 para Venda em Aver-O-Mar, Amorim e Terroso Foto 20
Apartamento T3 para Venda em Aver-O-Mar, Amorim e Terroso Foto 21
Apartamento T3 para Venda em Aver-O-Mar, Amorim e Terroso Foto 22
Apartamento T3 para Venda em Aver-O-Mar, Amorim e Terroso Foto 23
Apartamento T3 para Venda em Aver-O-Mar, Amorim e Terroso Foto 24
Apartamento T3 para Venda em Aver-O-Mar, Amorim e Terroso Foto 25
Clicky