Terreno para Venda em Milharado
700.000 €
Tipo
Terreno
Negócio
Venda
Ano de Construção
2026
Área Bruta
8374 m²
Certificado Energético
N/A
Área do Terreno
8374 m²
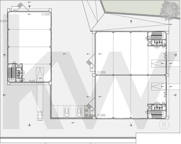
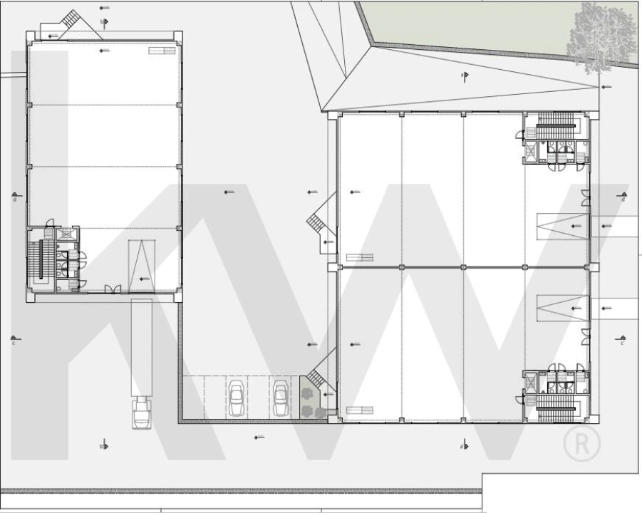
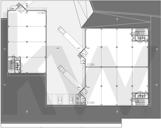
Oportunidade – Terreno com Projeto Aprovado para 3 Armazéns Industriais
Se procura um espaço estratégico para expandir o seu negócio ou um investimento seguro com elevado potencial de rentabilidade, este terreno é a solução ideal.
Situado no Casal do Borralho, Milharado – Mafra, este terreno dispõe de Projeto de Arquitetura aprovado para a construção de 3 armazéns, que podem funcionar de forma independente ou integrada, permitindo total flexibilidade de utilização.
A localização é um dos seus maiores trunfos:
- A apenas 2 minutos da A8 (Autoestrada do Oeste)
- Com acesso direto pela Estrada Nacional 116
- A 19 minutos do aeroporto de Lisboa
Perfeito para logística, armazenagem ou atividade industrial, o projeto enquadra-se integralmente no PDM de Mafra, o que garante total conformidade para construções destinadas a uso industrial.
Área do Terreno: 8.364 m2
Área de Implantação da Construção: 1.785 m2
Área Bruta de Construção do piso Cave (Arrumos): 1.785 m2
Área Bruta de Construção do piso 0 (Armazém): 1.785 m2
Área Bruta de Construção do piso 1 (Arrumos): 500 m2
Na KW Portugal acreditamos que a partilha (50% – 50%) é essencial para garantir o melhor serviço ao cliente. Por isso, se é um profissional do sector e tem um cliente comprador qualificado, entre em contacto connosco e marque a sua visita.
Situado no Casal do Borralho, Milharado – Mafra, este terreno dispõe de Projeto de Arquitetura aprovado para a construção de 3 armazéns, que podem funcionar de forma independente ou integrada, permitindo total flexibilidade de utilização.
A localização é um dos seus maiores trunfos:
- A apenas 2 minutos da A8 (Autoestrada do Oeste)
- Com acesso direto pela Estrada Nacional 116
- A 19 minutos do aeroporto de Lisboa
Perfeito para logística, armazenagem ou atividade industrial, o projeto enquadra-se integralmente no PDM de Mafra, o que garante total conformidade para construções destinadas a uso industrial.
Área do Terreno: 8.364 m2
Área de Implantação da Construção: 1.785 m2
Área Bruta de Construção do piso Cave (Arrumos): 1.785 m2
Área Bruta de Construção do piso 0 (Armazém): 1.785 m2
Área Bruta de Construção do piso 1 (Arrumos): 500 m2
Na KW Portugal acreditamos que a partilha (50% – 50%) é essencial para garantir o melhor serviço ao cliente. Por isso, se é um profissional do sector e tem um cliente comprador qualificado, entre em contacto connosco e marque a sua visita.
Localização
Milharado, Mafra, Lisboa
Informação do anúncio
ID do anúncio
1493173
Referência Externa
KWPT-025004
Atualizado em
26/04/2026 00:03:19
Terreno para Venda em Milharado