T1 em Vale de Milhaços com varandas, churrasqueira e arrumos, pensado para um quotidiano p
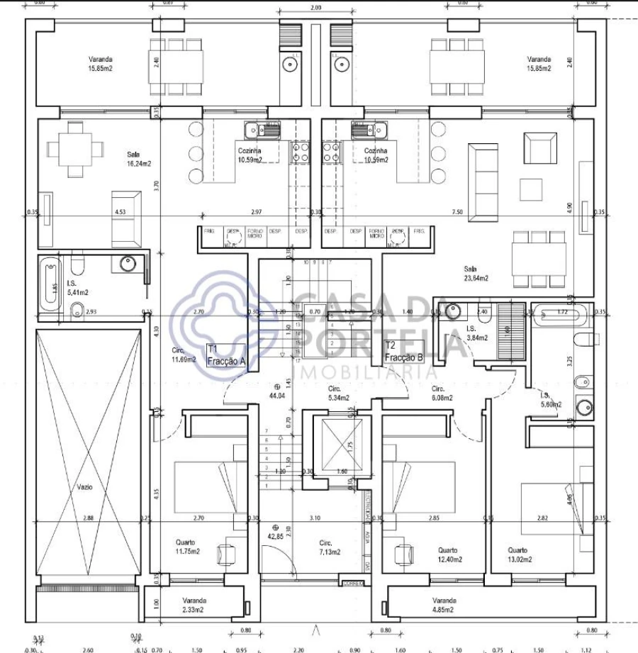
A atenção recai sobre este T1 no rés-do-chão esquerdo, pensado para quem procura um espaço simples de gerir, como aquelas rotinas que encaixam naturalmente no dia a dia.
O interesse cresce ao perceber a distribuição prática:
Características do apartamento:
• Sala – 16,24 m²
• Cozinha – 10,59 m²
• Corredor – 11,69 m²
• Casa de banho – 5,41 m²
• Quarto – 11,75 m² c/ varanda – 2,33 m²
• Varanda com churrasqueira – 15,85 m²
• Arrumos – Sim
O desejo surge com a versatilidade do espaço exterior, ideal para refeições descontraídas ou pequenos momentos de pausa, e com arrumação que facilita a organização diária.
A ação é simples: se procuras um T1 funcional e bem estruturado, este pode ser o próximo passo.
Nota — A informação disponibilizada não dispensa confirmação e não pode ser considerada vinculativa.
A CASA DA PORTELA Imobiliária – É uma empresa de mediação imobiliária e Intermediação de Crédito criada em 2013. Os seus sócios fundadores possuem um sólido conhecimento acumulado desde 1994 sobre o mercado imobiliário, mantendo-se atentos às suas tendências e evolução, e com uma Intermediação de Crédito registado no Banco de Portugal com o nº 0004889.
A empresa começou por centrar-se na região do Grande Porto, conseguindo, desde o início, um grande volume de transações. O sucesso do modelo de negócio fez com que a marca Casa da Portela imobiliária chegasse em 2022 a Vila Nova de Famalicão. A Casa da Portela imobiliária pretende valorizar o trabalho dos consultores e prestar um serviço de excelência aos seus clientes, proporcionando um serviço de qualidade e tranquilidade, de forma a realizar bons negócios, garantindo a satisfação dos nossos clientes e parceiros. Para atingir esse propósito, dispomos de uma equipa multidisciplinar de profissionais qualificados, com vasta experiência em mediação imobiliária que nos permite apresentar e sugerir as melhores alternativas para os seus objetivos de venda, de arrendamento, ou de investimento imobiliário.
Possuímos uma rede de contatos privilegiada que nos permite potenciar a divulgação, a gestão e a concretização de negócio do seu imóvel em vários formatos.
3 Pilares fundamentais da Casa da Portela:
Missão
A nossa missão é orientar os nossos objetivos excecionais (financeiros, humanos e sociais) na nossa organização e uni-los aos nossos não menos excecionais clientes, atendendo sempre às suas necessidades, desejos e expectativas. A Casa da Portela imobiliária nasceu para que fosse possível prestar um acompanhamento e apoio contínuos, explicação e esclarecimento de dúvidas, sobre todo o processo de compra, venda ou arrendamento de imóveis em Portugal. A concretização de tudo isto faz com que a nossa máxima ambição seja sermos os melhores no mercado imobiliário.
Visão
A nossa visão é sermos a empresa de referência no mercado imobiliário, assim como sermos reconhecidos como a melhor opção para os nossos clientes. Para isso, fazemos sempre por manter um espírito inovador e de liderança que nos levará ao reconhecimento pela nossa excelência no mercado.
Valores
Os nossos valores são sempre o conjunto das nossas atitudes e crenças, que envolvem todas as pessoas da organização, para que, em uníssono, consigamos atingir os resultados de excelência a que nos propomos sempre que são baseados na Qualidade, Profissionalismo, Responsabilidade, Respeito e Inovação.