Voltar
Negócio para Trespasse em Misericórdia Foto 1
Negócio para Trespasse em Misericórdia Foto 2
Negócio para Trespasse em Misericórdia Foto 3
Negócio para Trespasse em Misericórdia Foto 4
Negócio para Trespasse em Misericórdia Foto 5

Negócio para Trespasse em Misericórdia

380.000 €

Tipo
Negócio
Negócio
Trespasse
Ano de Construção
2025
Área Bruta
174 m²
Área Útil
174 m²
Certificado Energético
B-

Restaurante Renovado na Rua da Boavista (Lisboa)

Restaurante Renovado na Rua da Boavista (Lisboa)

Oportunidade única de trespasse de restaurante totalmente renovado, localizado na Rua da Boavista, em Lisboa — uma das zonas mais dinâmicas e culturalmente ricas da cidade.

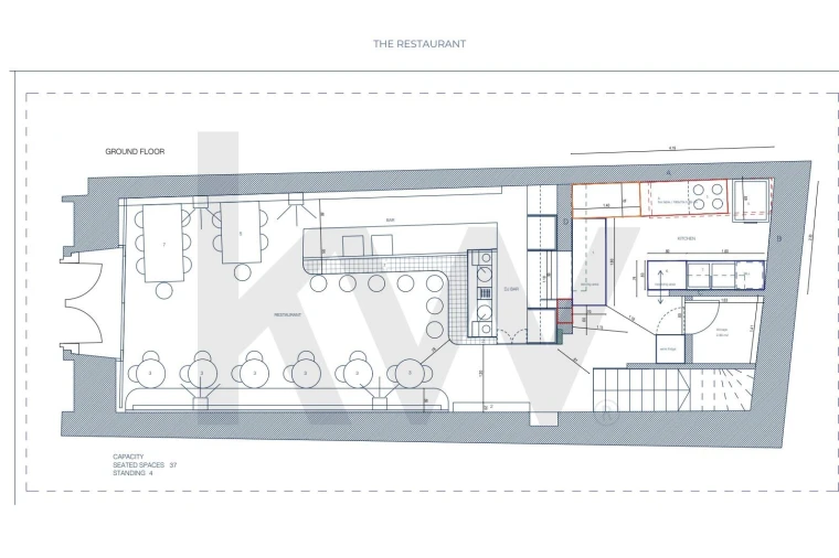
Com uma área total de 174 m² distribuídos por dois pisos, o espaço apresenta um design contemporâneo, desenvolvido com especial atenção aos materiais, conforto acústico e funcionalidade. O projeto integra elementos como painéis de rattan, pavimento em betão, banca e bar em azulejo, iluminação cuidada e uma estética moderna que está claramente visível nas plantas e imagens de projeto

O restaurante dispõe de:

Capacidade para 60 lugares sentados, além de zona de bar e seating alto.

Cozinha equipada, incluindo grelhador, fogão industrial, forno, zonas de preparação em inox, frigoríficos e área de lavagem — tudo conforme detalhado nas plantas de cozinha

Bar completo com design premium.

Instalações sanitárias modernas, totalmente renovadas e com materiais de elevada qualidade (azulejaria, painéis decorativos, torneiras em cobre).

O negócio encontra-se em pleno funcionamento, apresentando bons números de faturação, com equipa e processos operacionais já otimizados. O trespasse inclui todo o equipamento existente, sendo possível dar continuidade imediata à atividade, sem necessidade de investimento adicional.

Uma excelente oportunidade para quem procura um espaço chave-na-mão numa das melhores localizações da cidade, com forte identidade estética, operação consolidada e rentabilidade comprovada.

Localização

Misericórdia, Lisboa, Lisboa

Informação do anúncio

ID do anúncio 1505275
Referência Externa KWPT-025246
Atualizado em 19/03/2026 01:03:59
KW Area AMI 11160
Referência do imóvel: KWPT-025246
Phone
Chamada para a rede fixa nacional
KW Area AMI 11160
Referência do imóvel: KWPT-025246
Phone
Chamada para a rede fixa nacional
1 / 28
Negócio para Trespasse em Misericórdia Foto 1
Negócio para Trespasse em Misericórdia Foto 2
Negócio para Trespasse em Misericórdia Foto 3
Negócio para Trespasse em Misericórdia Foto 4
Negócio para Trespasse em Misericórdia Foto 5
Negócio para Trespasse em Misericórdia Foto 6
Negócio para Trespasse em Misericórdia Foto 7
Negócio para Trespasse em Misericórdia Foto 8
Negócio para Trespasse em Misericórdia Foto 9
Negócio para Trespasse em Misericórdia Foto 10
Negócio para Trespasse em Misericórdia Foto 11
Negócio para Trespasse em Misericórdia Foto 12
Negócio para Trespasse em Misericórdia Foto 13
Negócio para Trespasse em Misericórdia Foto 14
Negócio para Trespasse em Misericórdia Foto 15
Negócio para Trespasse em Misericórdia Foto 16
Negócio para Trespasse em Misericórdia Foto 17
Negócio para Trespasse em Misericórdia Foto 18
Negócio para Trespasse em Misericórdia Foto 19
Negócio para Trespasse em Misericórdia Foto 20
Negócio para Trespasse em Misericórdia Foto 21
Negócio para Trespasse em Misericórdia Foto 22
Negócio para Trespasse em Misericórdia Foto 23
Negócio para Trespasse em Misericórdia Foto 24
Negócio para Trespasse em Misericórdia Foto 25
Negócio para Trespasse em Misericórdia Foto 26
Negócio para Trespasse em Misericórdia Foto 27
Negócio para Trespasse em Misericórdia Foto 28
Clicky