Moradia T3 para Venda em Brufe
330.000 €
Tipo
Moradia
Negócio
Venda
Quartos
3
Casas de Banho
4
Área Bruta
270 m²
Área Útil
270 m²
Garagem
2 lugares
Condição
Usado
Certificado Energético
A
Área do Terreno
896 m²
Descrição
Identificação do imóvel: ZMPT583392
Estado Atual das Benfeitorias
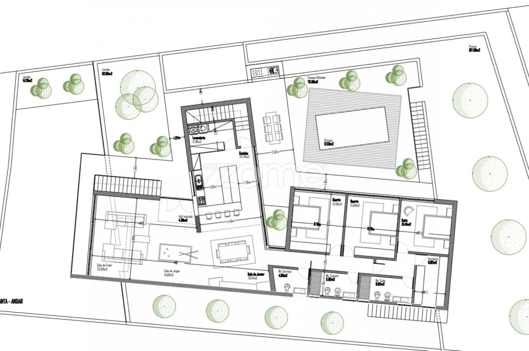
Imagina começares a construir a casa dos teus sonhos com a fase mais complexa já concluída — e com um projeto moderno pensado para oferecer funcionalidade, luz e conforto. Esta moradia foi desenhada com rés-do-chão e 1.º andar, garantindo zonas sociais amplas e uma área íntima totalmente independente.
Tudo aquilo que te poupa tempo, stress e burocracia… já está tratado.
Possibilidade de adquirir o imóvel já finalizado por 650.000€: https://www.zome.pt/pt/moradia-t3-braga-vila_nova_de_famalicao-brufe-ZMPT583377
Projetos & Licenças
- Projeto de arquitetura aprovado
- Projeto de especialidades aprovado
- Taxas pagas
- Licença de construção ativa
️ Trabalhos Já Executados
- Estrutura completa em betão armado (RC + 1.º andar)
- Paredes interiores em bloco térmico
- Desvão sanitário nos dois pisos
- Pichelaria incluída
- Revestimento exterior da fachada
- Nivelação do terreno
- Muros de suporte em betão armado
- Paredes com gesso projetado e calhas instaladas para pladur
- Parte da instalação elétrica já executada (tubagens incluídas)
Uma Oportunidade para Criar à Tua Medida
Este é o momento certo para quem quer:
- Personalizar 100% o interior e exterior
- Escolher acabamentos, materiais e soluções estéticas
- Aproveitar um projeto sólido e bem pensado
- Entrar numa construção avançada sem perder liberdade criativa
Tu decides. Tu moldas. Tu crias a casa que imaginas.
Localização
Situada numa zona residencial calma, a apenas 3 minutos do centro de Famalicão, com ótimos acessos — ideal para quem procura tranquilidade sem perder proximidade à cidade.
Esta moradia foi desenhada com rés-do-chão e 1º andar, garantindo zonas sociais amplas e uma área íntima totalmente independente.
3 razões para comprar com a Zome
+ acompanhamento
Com uma preparação e experiência única no mercado imobiliário, os consultores Zome põem toda a sua dedicação em dar-lhe o melhor acompanhamento, orientando-o com a máxima confiança, na direção certa das suas necessidades e ambições.
Daqui para a frente, vamos criar uma relação próxima e escutar com atenção as suas expectativas, porque a nossa prioridade é a sua felicidade! Porque é importante que sinta que está acompanhado, e que estamos consigo sempre.
+ simples
Os consultores Zome têm uma formação única no mercado, ancorada na partilha de experiência prática entre profissionais e fortalecida pelo conhecimento de neurociência aplicada que lhes permite simplificar e tornar mais eficaz a sua experiência imobiliária.
Deixe para trás os pesadelos burocráticos porque na Zome encontra o apoio total de uma equipa experiente e multidisciplinar que lhe dá suporte prático em todos os aspetos fundamentais, para que a sua experiência imobiliária supere as expectativas.
+ feliz
O nosso maior valor é entregar-lhe felicidade!
Liberte-se de preocupações e ganhe o tempo de qualidade que necessita para se dedicar ao que lhe faz mais feliz.
Agimos diariamente para trazer mais valor à sua vida com o aconselhamento fiável de que precisa para, juntos, conseguirmos atingir os melhores resultados.
Com a Zome nunca vai estar perdido ou desacompanhado e encontrará algo que não tem preço: a sua máxima tranquilidade!
É assim que se vai sentir ao longo de toda a experiência: Tranquilo, seguro, confortável e... FELIZ!
Notas:
1. Caso seja um consultor imobiliário, este imóvel está disponível para partilha de negócio. Não hesite em apresentar aos seus clientes compradores e fale connosco para agendar a sua visita.
2. Para maior facilidade na identificação deste imóvel, por favor, refira o respetivo ID ZMPT ou o respetivo agente que lhe tenha enviado a sugestão.
Estado Atual das Benfeitorias
Imagina começares a construir a casa dos teus sonhos com a fase mais complexa já concluída — e com um projeto moderno pensado para oferecer funcionalidade, luz e conforto. Esta moradia foi desenhada com rés-do-chão e 1.º andar, garantindo zonas sociais amplas e uma área íntima totalmente independente.
Tudo aquilo que te poupa tempo, stress e burocracia… já está tratado.
Possibilidade de adquirir o imóvel já finalizado por 650.000€: https://www.zome.pt/pt/moradia-t3-braga-vila_nova_de_famalicao-brufe-ZMPT583377
Projetos & Licenças
- Projeto de arquitetura aprovado
- Projeto de especialidades aprovado
- Taxas pagas
- Licença de construção ativa
️ Trabalhos Já Executados
- Estrutura completa em betão armado (RC + 1.º andar)
- Paredes interiores em bloco térmico
- Desvão sanitário nos dois pisos
- Pichelaria incluída
- Revestimento exterior da fachada
- Nivelação do terreno
- Muros de suporte em betão armado
- Paredes com gesso projetado e calhas instaladas para pladur
- Parte da instalação elétrica já executada (tubagens incluídas)
Uma Oportunidade para Criar à Tua Medida
Este é o momento certo para quem quer:
- Personalizar 100% o interior e exterior
- Escolher acabamentos, materiais e soluções estéticas
- Aproveitar um projeto sólido e bem pensado
- Entrar numa construção avançada sem perder liberdade criativa
Tu decides. Tu moldas. Tu crias a casa que imaginas.
Localização
Situada numa zona residencial calma, a apenas 3 minutos do centro de Famalicão, com ótimos acessos — ideal para quem procura tranquilidade sem perder proximidade à cidade.
Esta moradia foi desenhada com rés-do-chão e 1º andar, garantindo zonas sociais amplas e uma área íntima totalmente independente.
3 razões para comprar com a Zome
+ acompanhamento
Com uma preparação e experiência única no mercado imobiliário, os consultores Zome põem toda a sua dedicação em dar-lhe o melhor acompanhamento, orientando-o com a máxima confiança, na direção certa das suas necessidades e ambições.
Daqui para a frente, vamos criar uma relação próxima e escutar com atenção as suas expectativas, porque a nossa prioridade é a sua felicidade! Porque é importante que sinta que está acompanhado, e que estamos consigo sempre.
+ simples
Os consultores Zome têm uma formação única no mercado, ancorada na partilha de experiência prática entre profissionais e fortalecida pelo conhecimento de neurociência aplicada que lhes permite simplificar e tornar mais eficaz a sua experiência imobiliária.
Deixe para trás os pesadelos burocráticos porque na Zome encontra o apoio total de uma equipa experiente e multidisciplinar que lhe dá suporte prático em todos os aspetos fundamentais, para que a sua experiência imobiliária supere as expectativas.
+ feliz
O nosso maior valor é entregar-lhe felicidade!
Liberte-se de preocupações e ganhe o tempo de qualidade que necessita para se dedicar ao que lhe faz mais feliz.
Agimos diariamente para trazer mais valor à sua vida com o aconselhamento fiável de que precisa para, juntos, conseguirmos atingir os melhores resultados.
Com a Zome nunca vai estar perdido ou desacompanhado e encontrará algo que não tem preço: a sua máxima tranquilidade!
É assim que se vai sentir ao longo de toda a experiência: Tranquilo, seguro, confortável e... FELIZ!
Notas:
1. Caso seja um consultor imobiliário, este imóvel está disponível para partilha de negócio. Não hesite em apresentar aos seus clientes compradores e fale connosco para agendar a sua visita.
2. Para maior facilidade na identificação deste imóvel, por favor, refira o respetivo ID ZMPT ou o respetivo agente que lhe tenha enviado a sugestão.
Localização
Rua 1º de Maio
Brufe, Vila Nova de Famalicão, Braga
A localização exacta do imóvel não está disponível. O mapa apresenta a zona aproximada.
Informação do anúncio
ID do anúncio
1507504
Referência Externa
ZMPT583392
Atualizado em
26/04/2026 06:02:42
Anunciante
Chamada para a rede fixa nacional
ZOME Vila Nova de Famalicão
AMI 17432
Referência do imóvel:
ZMPT583392
Moradia T3 para Venda em Brufe