Voltar
Terreno para Venda em Agualva e Mira-Sintra Foto 1
Terreno para Venda em Agualva e Mira-Sintra Foto 2
Terreno para Venda em Agualva e Mira-Sintra Foto 3
Terreno para Venda em Agualva e Mira-Sintra Foto 4
Terreno para Venda em Agualva e Mira-Sintra Foto 5

Terreno para Venda em Agualva e Mira-Sintra

800.000 €

Tipo
Terreno
Negócio
Venda
Área Bruta
2252 m²
Condição
Para Obras
Certificado Energético
Não aplicável
Área do Terreno
16680 m²

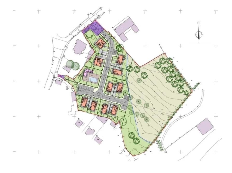
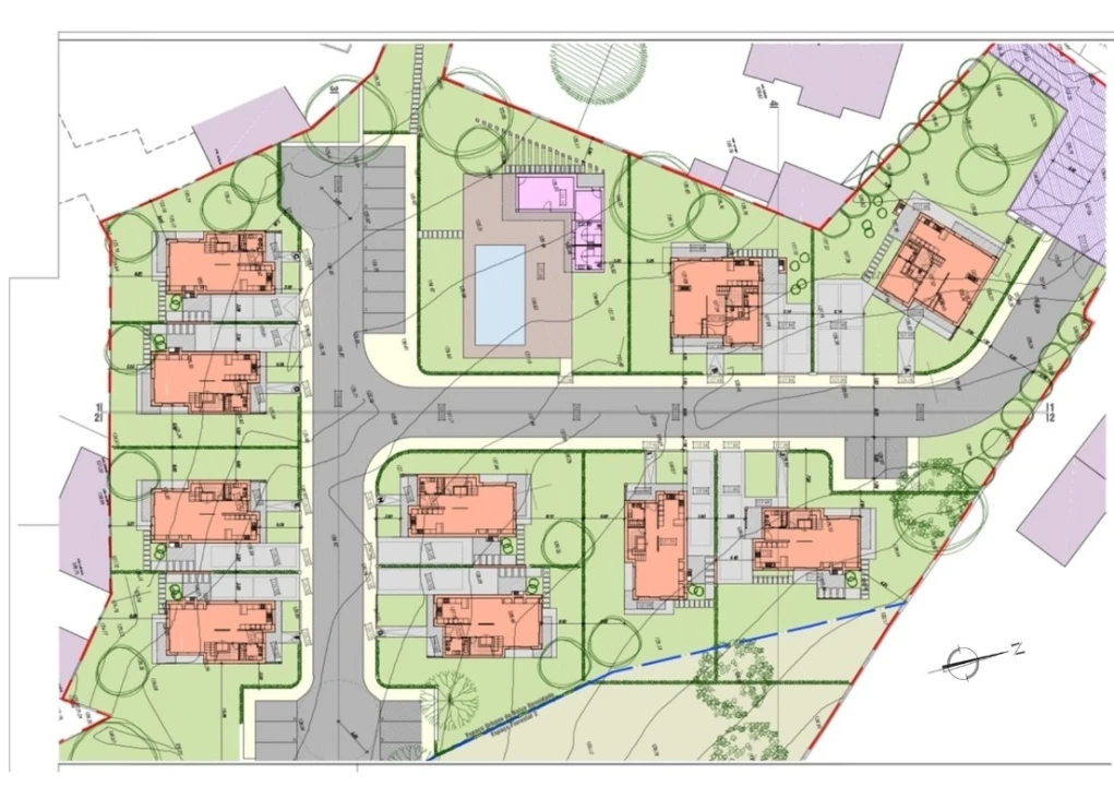
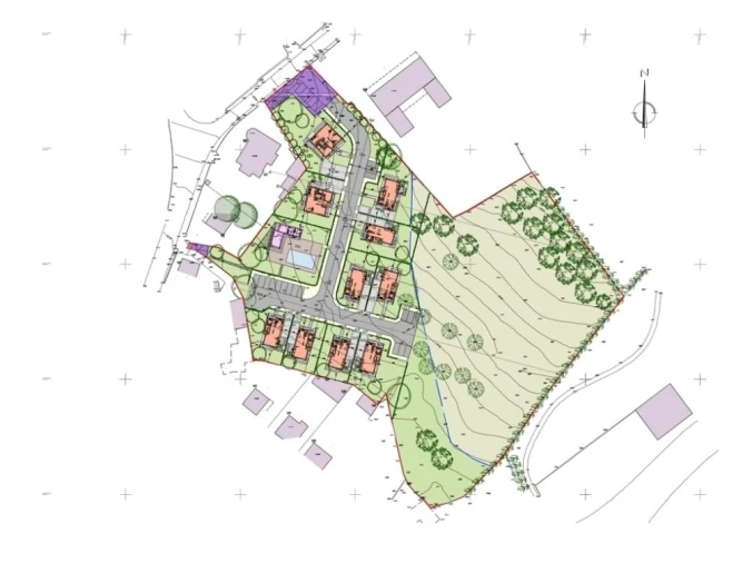
Terreno com projecto aprovado para moradias, S. João das Lampas, Sintra

Oportunidade de investimento a apenas 1 km de São João das Lampas: um terreno com 16.680 m² e Projeto de Arquitetura aprovado para a construção de um condomínio composto por 10 moradias unifamiliares desenhadas para proporcionar conforto, privacidade e uma integração harmoniosa com a envolvente natural.

Projeto Aprovado - O projeto contempla 10 moradias distribuídas da seguinte forma:
2 unidades T4
8 unidades T3

As habitações desenvolvem-se em dois pisos, com áreas de construção entre 203 m² e 253 m², e foram concebidas para garantir boa orientação solar, integração arquitetónica e uma leitura de conjunto equilibrada.

O condomínio inclui:
Piscina comum e edifício de apoio
Zonas verdes e espaços de lazer
Cortina arbórea envolvente, reforçando o enquadramento paisagístico e a qualidade ambiental

O Projeto de Arquitectura aprovado confere segurança quanto ao enquadramento urbanístico, permitindo planear o desenvolvimento com solidez.

O terreno encontra-se classificado no PDM como:
Espaço Urbano de Baixa Densidade
Espaço Florestal 2

Dispõe de acesso por via pública a nordeste e de um acesso secundário a poente, facilitando a circulação e o planeamento de obra.

Localizado entre o campo e o mar, o terreno beneficia da proximidade a algumas das praias mais emblemáticas da região: Samarra, Vigia, Magoito, São Julião e Lizandro.

Distâncias de referência:
Ericeira 15 minutos
Centro histórico de Sintra 15 minutos
Cascais 25 minutos
Lisboa e Aeroporto entre 30 e 40 minutos
Colégios nacionais e internacionais Carlucci American International School of Lisbon, Colégio São José, TASIS Portugal International School 20 minutos
Comércio, serviços e principais acessos (IC19, A16 e A5) nas proximidades

Numa zona onde a oferta de terrenos com projeto aprovado é limitada, esta proposta distingue-se pela baixa densidade, pela integração paisagística e pelo conceito de moradias independentes com áreas generosas. É uma solução especialmente apelativa para quem procura qualidade de vida e ligação à natureza, mantendo a proximidade a centros urbanos.

Este terreno representa uma oportunidade sólida para investidores e promotores que pretendem desenvolver um condomínio exclusivo, bem enquadrado e com elevado potencial de valorização.

*Imagens 3D meramente ilustrativas.

Localização

Agualva e Mira-Sintra, Sintra, Lisboa

Informação do anúncio

ID do anúncio 1511741
Referência Externa CB02-0357
Atualizado em 15/03/2026 01:47:01
COLDWELL BANKER LUXUS AMI 1032
Referência do imóvel: CB02-0357
Phone
Chamada para a rede fixa nacional
COLDWELL BANKER LUXUS AMI 1032
Referência do imóvel: CB02-0357
Phone
Chamada para a rede fixa nacional
1 / 24
Terreno para Venda em Agualva e Mira-Sintra Foto 1
Terreno para Venda em Agualva e Mira-Sintra Foto 2
Terreno para Venda em Agualva e Mira-Sintra Foto 3
Terreno para Venda em Agualva e Mira-Sintra Foto 4
Terreno para Venda em Agualva e Mira-Sintra Foto 5
Terreno para Venda em Agualva e Mira-Sintra Foto 6
Terreno para Venda em Agualva e Mira-Sintra Foto 7
Terreno para Venda em Agualva e Mira-Sintra Foto 8
Terreno para Venda em Agualva e Mira-Sintra Foto 9
Terreno para Venda em Agualva e Mira-Sintra Foto 10
Terreno para Venda em Agualva e Mira-Sintra Foto 11
Terreno para Venda em Agualva e Mira-Sintra Foto 12
Terreno para Venda em Agualva e Mira-Sintra Foto 13
Terreno para Venda em Agualva e Mira-Sintra Foto 14
Terreno para Venda em Agualva e Mira-Sintra Foto 15
Terreno para Venda em Agualva e Mira-Sintra Foto 16
Terreno para Venda em Agualva e Mira-Sintra Foto 17
Terreno para Venda em Agualva e Mira-Sintra Foto 18
Terreno para Venda em Agualva e Mira-Sintra Foto 19
Terreno para Venda em Agualva e Mira-Sintra Foto 20
Terreno para Venda em Agualva e Mira-Sintra Foto 21
Terreno para Venda em Agualva e Mira-Sintra Foto 22
Terreno para Venda em Agualva e Mira-Sintra Foto 23
Terreno para Venda em Agualva e Mira-Sintra Foto 24
Terreno para Venda em Agualva e Mira-Sintra
Clicky