Apartamento T2 para Arrendamento em Agualva e Mira-Sintra
1.200 €
Tipo
Apartamento
Negócio
Arrendamento
Ano de Construção
2003
Quartos
2
Casas de Banho
2
Área Bruta
102 m²
Área Útil
84 m²
Condição
Como novo
Certificado Energético
D
Apartamento T2 para arrendar em Agualva
Apartamento T2 para arrendar em Agualva
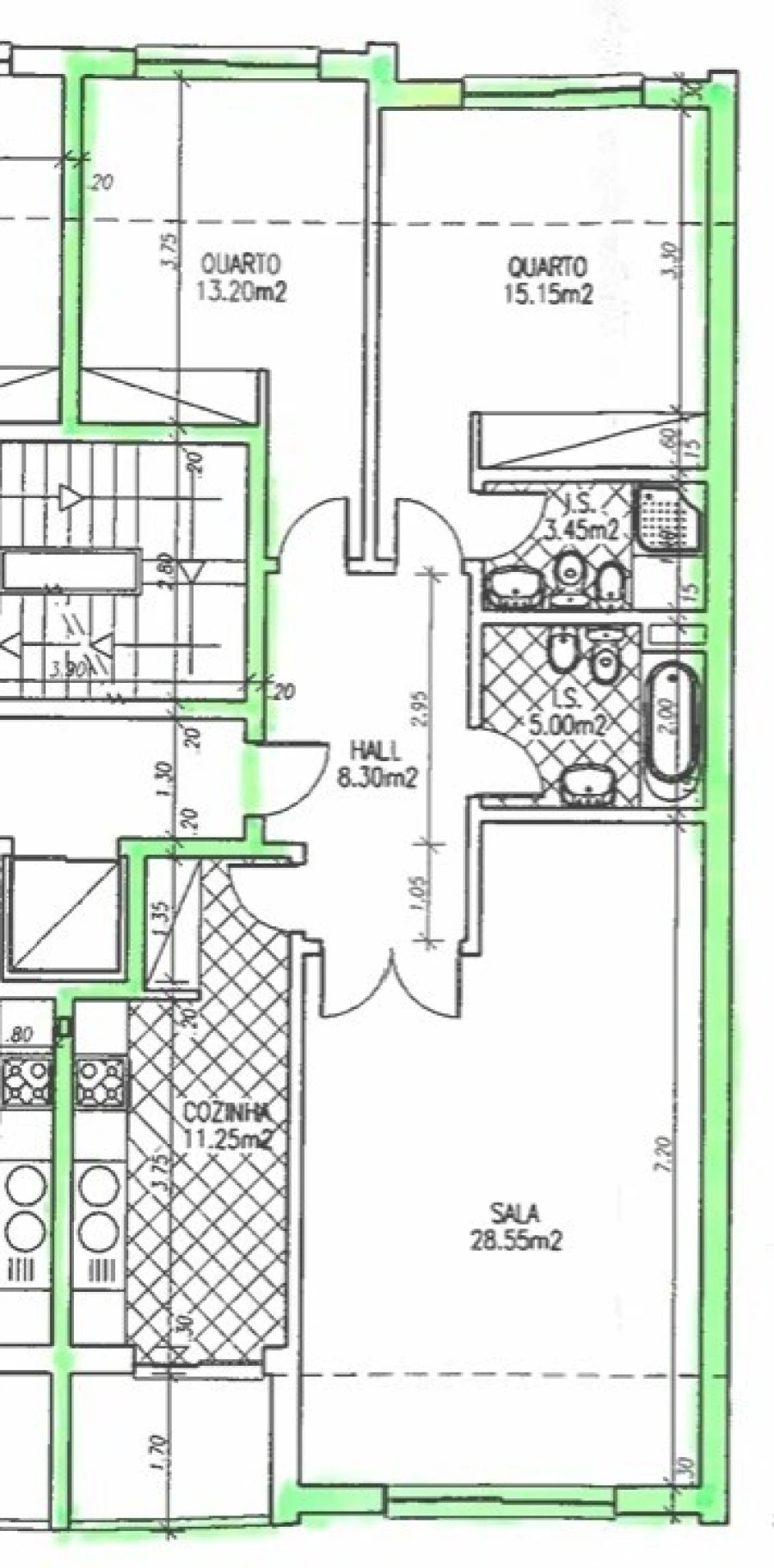
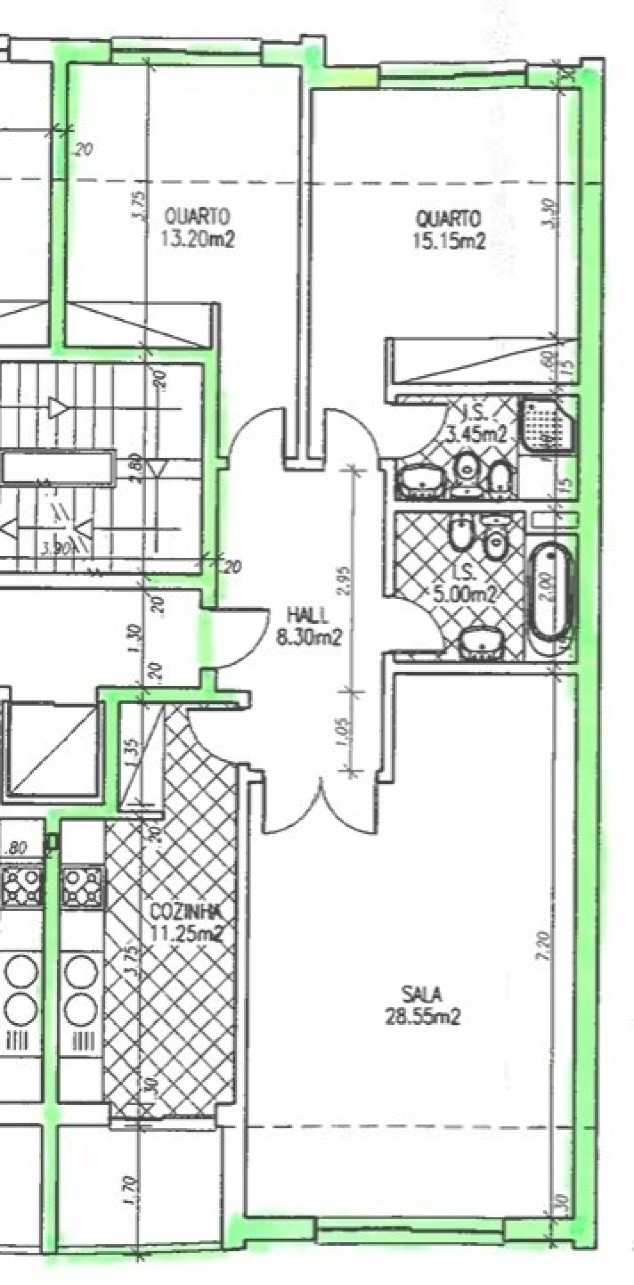
Inserido num prédio construído em 2003, com elevador e estacionamento, este apartamento encontra-se em bom estado de conservação.
O hall de entrada tem 8,50m2 e dá acesso a todas as divisões da casa, fazendo uma boa separação dos espaços social e privado. A sala dispõe de 28m2 e permite dispor, de várias formas, uma zona de refeições e de estar. A cozinha equipada, tem área suficiente para ter uma mesa de refeições e usufrui ainda de uma marquise, ideal para utilizar como zona de lavandaria. Dos dois quartos existentes, um deles dispõe de uma casa de banho privativa e ambos têm roupeiros embutidos.
Como extra da casa, existe acesso direto à arrecadação do apartamento. Esta é uma zona que pode ter diversas finalidades, desde sala de jogos, espaço de leitura ou o que melhor se ajustar à sua vida.
A zona envolvente dispõe de diversos estabelecimentos de comércio e os acessos rodoviários são diversos e que constituem uma mais valia desta zona.
Este site utiliza cookies. Ao navegar no site estará a consentir a sua utilização. Para mais informações sobre os cookies pode consultar a
política de privacidade.