Voltar
Apartamento T3 para Venda em Lordelo Foto 1
Apartamento T3 para Venda em Lordelo Foto 2
Apartamento T3 para Venda em Lordelo Foto 3
Apartamento T3 para Venda em Lordelo Foto 4
Apartamento T3 para Venda em Lordelo Foto 5

Apartamento T3 para Venda em Lordelo

320.000 €

Tipo
Apartamento
Negócio
Venda
Ano de Construção
2025
Quartos
3
Casas de Banho
2
Área Bruta
158 m²
Área Útil
114 m²
Certificado Energético
Em tramite

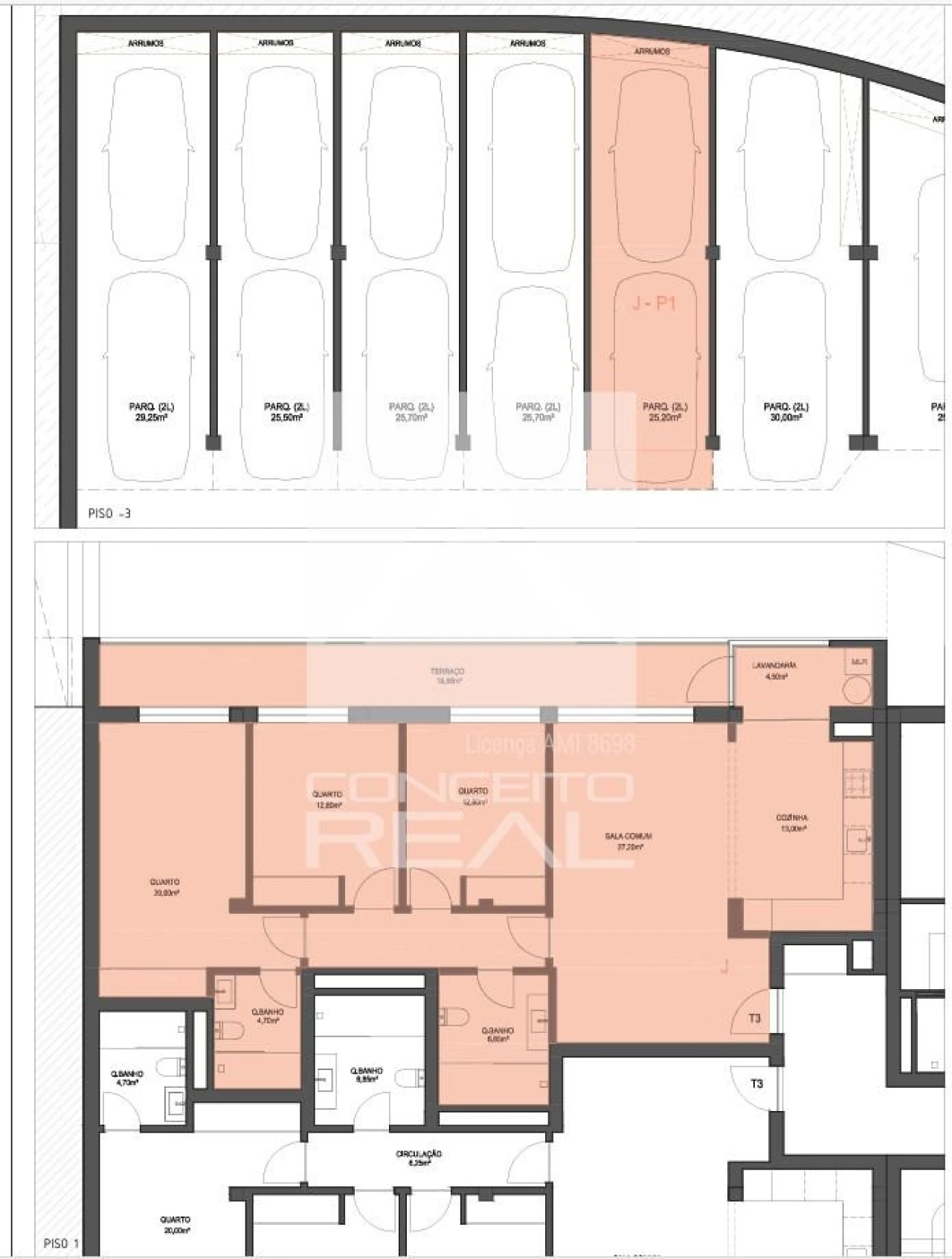
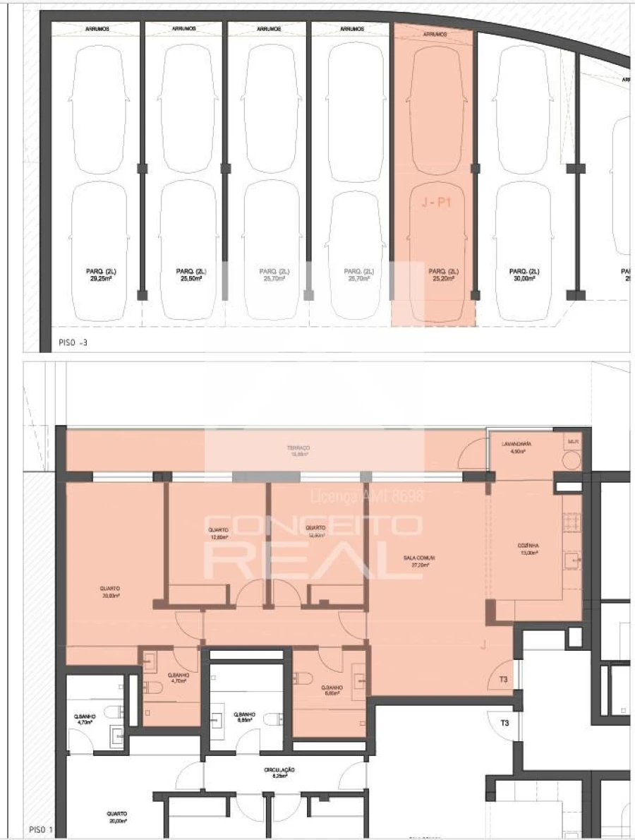
Apart. T3 c/ Box p/ 2 viat. Novo - Lordelo (Paredes)

Estado: Em construção| Ano construção: 2027|
Tipologia: T3| Casas de Banho: 2| Varanda: Sim|
Garagem: box + arrumos| Elevador: Sim| Ar condicionado: Sim|

Edifícios — O Seu Novo Lar em Lordelo

O Park 3 é um novo empreendimento residencial que eleva o padrão de qualidade e conforto em Lordelo. Com uma arquitetura moderna e linhas elegantes, apresenta apartamentos T3 amplos, entre 150 m² e 200 m², concebidos para oferecer uma experiência de habitação superior. Todos os apartamentos incluem garagem box fechada, arrumos e varandas generosas em todos os quartos e salas, privilegiando a luminosidade natural e o bem-estar.

O interior reflete a combinação perfeita entre a nobreza dos materiais aplicados e a funcionalidade. As cozinhas open space surgem totalmente equipadas com forno, placa, exaustor, máquina de lavar loiça e micro-ondas, criando um ambiente prático e harmonioso. Os apartamentos oferecem ainda isolamento térmico e acústico de elevada eficiência, estores elétricos, sistema completo de ar condicionado e casas de banho com piso radiante, garantindo conforto em todas as estações do ano.

Situado numa zona central e privilegiada, o Park 3 representa uma oportunidade única para quem procura espaço, modernidade e qualidade num só lugar. O Park 3 encontra-se em fase de pedreiro tendo a sua conclusão prevista para Agosto 2027, tornando este o momento ideal para assegurar o seu futuro lar com condições especiais nesta fase.

Localização Estratégica:
Aeroporto — 20 minutos
Paredes centro — 15 minutos
Paços de Ferreira centro — 10 minutos
Porto centro — 30 minutos

Cada imóvel é único. Escolha o seu com a nossa ajuda!!!
Somos Intermediários de crédito vinculado, registados no banco de Portugal com o nº 2222.

Localização

Lordelo, Paredes, Porto

Informação do anúncio

ID do anúncio 1517188
Referência Externa CR3944
Atualizado em 13/12/2025 00:36:41
Conceito Real AMI 8698
Referência do imóvel: CR3944
Phone
Chamada para a rede fixa nacional
Conceito Real AMI 8698
Referência do imóvel: CR3944
Phone
Chamada para a rede fixa nacional
1 / 12
Apartamento T3 para Venda em Lordelo Foto 1
Apartamento T3 para Venda em Lordelo Foto 2
Apartamento T3 para Venda em Lordelo Foto 3
Apartamento T3 para Venda em Lordelo Foto 4
Apartamento T3 para Venda em Lordelo Foto 5
Apartamento T3 para Venda em Lordelo Foto 6
Apartamento T3 para Venda em Lordelo Foto 7
Apartamento T3 para Venda em Lordelo Foto 8
Apartamento T3 para Venda em Lordelo Foto 9
Apartamento T3 para Venda em Lordelo Foto 10
Apartamento T3 para Venda em Lordelo Foto 11
Apartamento T3 para Venda em Lordelo Foto 12
Clicky