Apartamento T2 para Venda em Ericeira
530.000 €
Tipo
Apartamento
Negócio
Venda
Ano de Construção
2025
Quartos
2
Casas de Banho
2
Área Útil
99 m²
Certificado Energético
A+
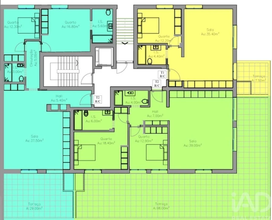
Apartamento T2 em Ericeira de 99,00 m²
Apartamento T2 com vista mar e grande terraço!
Uma oportunidade única de viver perto do mar com conforto e elegância e uma vista delumbrante!
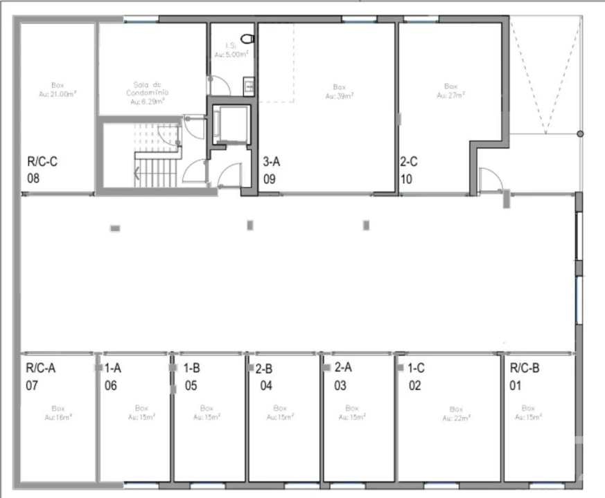
R/C - B com Área Total 197 m2
Área de apartamento - 98 m2
Terraço e Varandas - 99 m2
Garagem fechada - 15 m2
Mapa de Acabamentos
1. Serviços Comuns e Garagem
1.1 Garagem, partes comuns e acabamentos gerais
Paredes e tetos da garagem pintados de branco ou similar.
Pavimento da garagem em cimento afagado.
Os parques para viaturas são boxes fechadas com portão elétrico.
Ginásio no piso da garagem.
Sistema de distribuição TV e telefone de acordo com os projetos.
Sistema de vídeo porteiro.
Estores elétricos.
Caixilharia térmica em PVC da marca Alemã Aluplast com vidro duplo.
Aquecimento das águas realizadas por bomba de calor.
Instalação de ar condicionado.
Elevador Orona, ou outra marca equivalente.
Página 1 de 3
Mapa de Acabamentos
2. Interior das Frações
2.1 – Hall
Pavimento: flutuante laminado AC5 decor carvalho natural régua única.
Rodapé à cor branco.
Paredes revestidas a estuque projectado e pintado a tinta plástica de cor
branca.
Tecto falso em pladur com iluminação embutida e pintado a tinta plástica de
cor branca.
Porta de entrada dos apartamentos será blindada com acabamento a branco
ou outro.
2.2 – Sala
Pavimento: flutuante laminado AC5, decor carvalho natural régua única ou
outra equivalente.
Rodapé à cor branco.
Paredes revestidos a estuque projetado e pintado a tinta plástica de cor
branca.
Tecto falso em pladur com iluminação embutida e pintado a tinta plástica de
cor branca.
2.3 – Quartos
Pavimento flutuante laminado AC5, decor carvalho natural régua única ou
outro equivalente;
Rodapé à cor branco.
Paredes revestidos a estuque projetado e pintado a tinta plástica de cor
branca.
Tecto falso em pladur com iluminação embutida e pintado a tinta plástica de
cor branca.
Roupeiros com portas de abrir, lacado a branco, interior com decor a linho;
Aros, portas interiores e guarnições lacado a branco.
2.4 - Instalações sanitárias
Pavimento cerâmico.
Paredes todas ou parte revestidas a azulejo cerâmico ou outro.
Tecto em pladur com iluminação embutida e pintado a tinta branca
fungicida.
Móvel suspenso à cor branca ou outra, com lavatório em louça de embutir
ou pousar.
Página 2 de 3
Mapa de Acabamentos
Sanitários suspensos da marca Sanitana, linha Glam ou outro equiparado.
Torneiras misturadoras monocomando cromadas da marca Bruma ou outro
equiparado.
Wc’s com base de duche, protecção lateral em vidro temperado ou banheira
e misturadora.
Aros, guarnições e portas lacadas a branco.
2.5 - Cozinha
Pavimento flutuante laminado AC5, decor carvalho natural régua única ou
outro equivalente.
Teto em estuque ou pladur e pintado a tinta cor branca.
Móveis de cozinha com portas e gavetas lacadas de cor branca ou outra.
Tampos da bancada em quartzo compacto com escorredor gravado.
Torneira misturadora monocomando marca Bruma ou outra equivalente.
Lava louça em inox de uma cuba embutir por baixo.
Aros e guarnições e porta lacado a branco.
Maquina de lavar louça, roupa, forno, placa exaustor, combinado da marca,
Bosch ou outra equivalente.
2.6 - Varandas e terraços
Pavimentos em cerâmico, guardas das varandas (quando necessário) em
alumínio lacado, ou outro.
Notas Finais:
O presente mapa de acabamentos pode ser alterado por motivos técnicos ou
por saída de fabrico de componentes ou materiais aqui selecionados, sendo
substituídos por materiais equivalentes a definir pela direção da obra.
#ref: 153207
Uma oportunidade única de viver perto do mar com conforto e elegância e uma vista delumbrante!
R/C - B com Área Total 197 m2
Área de apartamento - 98 m2
Terraço e Varandas - 99 m2
Garagem fechada - 15 m2
Mapa de Acabamentos
1. Serviços Comuns e Garagem
1.1 Garagem, partes comuns e acabamentos gerais
Paredes e tetos da garagem pintados de branco ou similar.
Pavimento da garagem em cimento afagado.
Os parques para viaturas são boxes fechadas com portão elétrico.
Ginásio no piso da garagem.
Sistema de distribuição TV e telefone de acordo com os projetos.
Sistema de vídeo porteiro.
Estores elétricos.
Caixilharia térmica em PVC da marca Alemã Aluplast com vidro duplo.
Aquecimento das águas realizadas por bomba de calor.
Instalação de ar condicionado.
Elevador Orona, ou outra marca equivalente.
Página 1 de 3
Mapa de Acabamentos
2. Interior das Frações
2.1 – Hall
Pavimento: flutuante laminado AC5 decor carvalho natural régua única.
Rodapé à cor branco.
Paredes revestidas a estuque projectado e pintado a tinta plástica de cor
branca.
Tecto falso em pladur com iluminação embutida e pintado a tinta plástica de
cor branca.
Porta de entrada dos apartamentos será blindada com acabamento a branco
ou outro.
2.2 – Sala
Pavimento: flutuante laminado AC5, decor carvalho natural régua única ou
outra equivalente.
Rodapé à cor branco.
Paredes revestidos a estuque projetado e pintado a tinta plástica de cor
branca.
Tecto falso em pladur com iluminação embutida e pintado a tinta plástica de
cor branca.
2.3 – Quartos
Pavimento flutuante laminado AC5, decor carvalho natural régua única ou
outro equivalente;
Rodapé à cor branco.
Paredes revestidos a estuque projetado e pintado a tinta plástica de cor
branca.
Tecto falso em pladur com iluminação embutida e pintado a tinta plástica de
cor branca.
Roupeiros com portas de abrir, lacado a branco, interior com decor a linho;
Aros, portas interiores e guarnições lacado a branco.
2.4 - Instalações sanitárias
Pavimento cerâmico.
Paredes todas ou parte revestidas a azulejo cerâmico ou outro.
Tecto em pladur com iluminação embutida e pintado a tinta branca
fungicida.
Móvel suspenso à cor branca ou outra, com lavatório em louça de embutir
ou pousar.
Página 2 de 3
Mapa de Acabamentos
Sanitários suspensos da marca Sanitana, linha Glam ou outro equiparado.
Torneiras misturadoras monocomando cromadas da marca Bruma ou outro
equiparado.
Wc’s com base de duche, protecção lateral em vidro temperado ou banheira
e misturadora.
Aros, guarnições e portas lacadas a branco.
2.5 - Cozinha
Pavimento flutuante laminado AC5, decor carvalho natural régua única ou
outro equivalente.
Teto em estuque ou pladur e pintado a tinta cor branca.
Móveis de cozinha com portas e gavetas lacadas de cor branca ou outra.
Tampos da bancada em quartzo compacto com escorredor gravado.
Torneira misturadora monocomando marca Bruma ou outra equivalente.
Lava louça em inox de uma cuba embutir por baixo.
Aros e guarnições e porta lacado a branco.
Maquina de lavar louça, roupa, forno, placa exaustor, combinado da marca,
Bosch ou outra equivalente.
2.6 - Varandas e terraços
Pavimentos em cerâmico, guardas das varandas (quando necessário) em
alumínio lacado, ou outro.
Notas Finais:
O presente mapa de acabamentos pode ser alterado por motivos técnicos ou
por saída de fabrico de componentes ou materiais aqui selecionados, sendo
substituídos por materiais equivalentes a definir pela direção da obra.
#ref: 153207
Localização
Ericeira, Mafra, Lisboa
Informação do anúncio
ID do anúncio
1517212
Referência Externa
153207
Atualizado em
26/04/2026 23:38:05
Apartamento T2 para Venda em Ericeira
Vídeo