Escritório para Arrendamento em Santo António
8.929 €
Tipo
Escritório
Negócio
Arrendamento
Área Bruta
319 m²
Condição
Usado
Certificado Energético
B
Escritório para arrendamento - Liberdade 225, em Lisboa
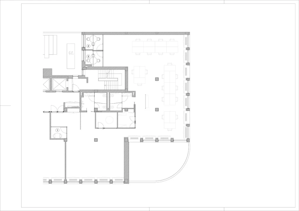
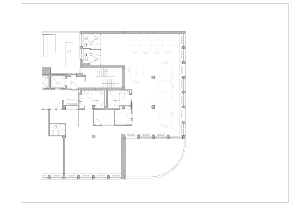
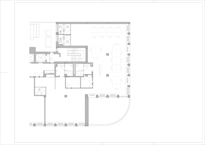
Escritório para arrendamento com 318,89 m2 de área bruta, na Avenida da Liberdade, em Lisboa.
Inserido em edifício com 9 pisos de escritórios e 4 unidades de retalho no piso 0, num total de cerca de 5365 m2. O escritório em open space está equipado com teto falso, iluminação embutida, piso técnico sobreelevado com caixas de pavimento, sistema de ar condicionado de 3 tubos (VRV), estores elétricos exteriores e instalações sanitárias privativas.
Possibilidade de estacionamento para 2 viaturas. Ao valor da renda acrescem os custos de condomínio com contrato de prestação de serviços onde estão incluídas, entre outras, os custos com água e luz das zonas comuns, limpeza e manutenção das zonas comuns (incluindo o sistema de recolha do lixo), a manutenção e a reparação corrente de máquinas e equipamentos afetos à utilização comum da totalidade ou parte do edifício e segurança (24h).
Situado numa das principais e prestigiadas avenidas da cidade, beneficia de uma vasta gama de hotéis de luxo, restauração e serviços nas imediações, bem como da rede de transportes públicos. Encontra-se a 2 minutos walking distance do Marquês de Pombal, a 5 minutos da estação de metro da Avenida (linha Azul), a 15 minutos dos Restauradores e da estação de comboios do Rossio. A 25 minutos driving distance do Aeroporto de Lisboa.
A Dils é uma das principais empresas de imobiliário na Europa, com sede em Milão, que lidera a transformação do setor através da inovação, digitalização e de uma forte visão centrada nas pessoas. Com uma equipa multidisciplinar e operações em Itália, Portugal, Espanha e Países Baixos, a Dils oferece serviços integrados em todos os segmentos incluindo escritórios, retalho, logística, hotelaria e residencial.
Aliando conhecimento local a uma visão internacional, a Dils está a redefinir o papel dos consultores imobiliários, colocando a criatividade, a sustentabilidade e a tecnologia no centro de cada projeto. A empresa tem como compromisso gerar valor a longo prazo para clientes, comunidades e para o tecido urbano.
Em Portugal, a Dils entrou no mercado em junho de 2024, através da aquisição da Castelhana. Atualmente, opera com uma equipa altamente experiente, liderada por Pedro Lancastre (CEO), Patrícia Barão (Partner, Área Residencial) e Fernando Ferreira (Partner, Área Comercial), com o objetivo de expandir a presença da marca e impulsionar a mudança nos segmentos residencial e comercial.
Inserido em edifício com 9 pisos de escritórios e 4 unidades de retalho no piso 0, num total de cerca de 5365 m2. O escritório em open space está equipado com teto falso, iluminação embutida, piso técnico sobreelevado com caixas de pavimento, sistema de ar condicionado de 3 tubos (VRV), estores elétricos exteriores e instalações sanitárias privativas.
Possibilidade de estacionamento para 2 viaturas. Ao valor da renda acrescem os custos de condomínio com contrato de prestação de serviços onde estão incluídas, entre outras, os custos com água e luz das zonas comuns, limpeza e manutenção das zonas comuns (incluindo o sistema de recolha do lixo), a manutenção e a reparação corrente de máquinas e equipamentos afetos à utilização comum da totalidade ou parte do edifício e segurança (24h).
Situado numa das principais e prestigiadas avenidas da cidade, beneficia de uma vasta gama de hotéis de luxo, restauração e serviços nas imediações, bem como da rede de transportes públicos. Encontra-se a 2 minutos walking distance do Marquês de Pombal, a 5 minutos da estação de metro da Avenida (linha Azul), a 15 minutos dos Restauradores e da estação de comboios do Rossio. A 25 minutos driving distance do Aeroporto de Lisboa.
A Dils é uma das principais empresas de imobiliário na Europa, com sede em Milão, que lidera a transformação do setor através da inovação, digitalização e de uma forte visão centrada nas pessoas. Com uma equipa multidisciplinar e operações em Itália, Portugal, Espanha e Países Baixos, a Dils oferece serviços integrados em todos os segmentos incluindo escritórios, retalho, logística, hotelaria e residencial.
Aliando conhecimento local a uma visão internacional, a Dils está a redefinir o papel dos consultores imobiliários, colocando a criatividade, a sustentabilidade e a tecnologia no centro de cada projeto. A empresa tem como compromisso gerar valor a longo prazo para clientes, comunidades e para o tecido urbano.
Em Portugal, a Dils entrou no mercado em junho de 2024, através da aquisição da Castelhana. Atualmente, opera com uma equipa altamente experiente, liderada por Pedro Lancastre (CEO), Patrícia Barão (Partner, Área Residencial) e Fernando Ferreira (Partner, Área Comercial), com o objetivo de expandir a presença da marca e impulsionar a mudança nos segmentos residencial e comercial.
Localização
Santo António, Lisboa, Lisboa
Informação do anúncio
ID do anúncio
1517554
Referência Externa
35449
Atualizado em
28/04/2026 10:55:06
Anunciante
Chamada para a rede móvel nacional
Castelhana Real Estate
AMI 3497
Referência do imóvel:
35449
Escritório para Arrendamento em Santo António