Voltar
Apartamento T2 para Venda em Algés, Linda-A-Velha e Cruz Quebrada-Dafundo Foto 1
Apartamento T2 para Venda em Algés, Linda-A-Velha e Cruz Quebrada-Dafundo Foto 2
Apartamento T2 para Venda em Algés, Linda-A-Velha e Cruz Quebrada-Dafundo Foto 3
Apartamento T2 para Venda em Algés, Linda-A-Velha e Cruz Quebrada-Dafundo Foto 4
Apartamento T2 para Venda em Algés, Linda-A-Velha e Cruz Quebrada-Dafundo Foto 5

Apartamento T2 para Venda em Algés, Linda-A-Velha e Cruz Quebrada-Dafundo

630.000 €

Tipo
Apartamento
Negócio
Venda
Ano de Construção
2025
Quartos
2
Casas de Banho
3
Área Bruta
152 m²
Área Útil
96 m²
Condição
Novo
Certificado Energético
A

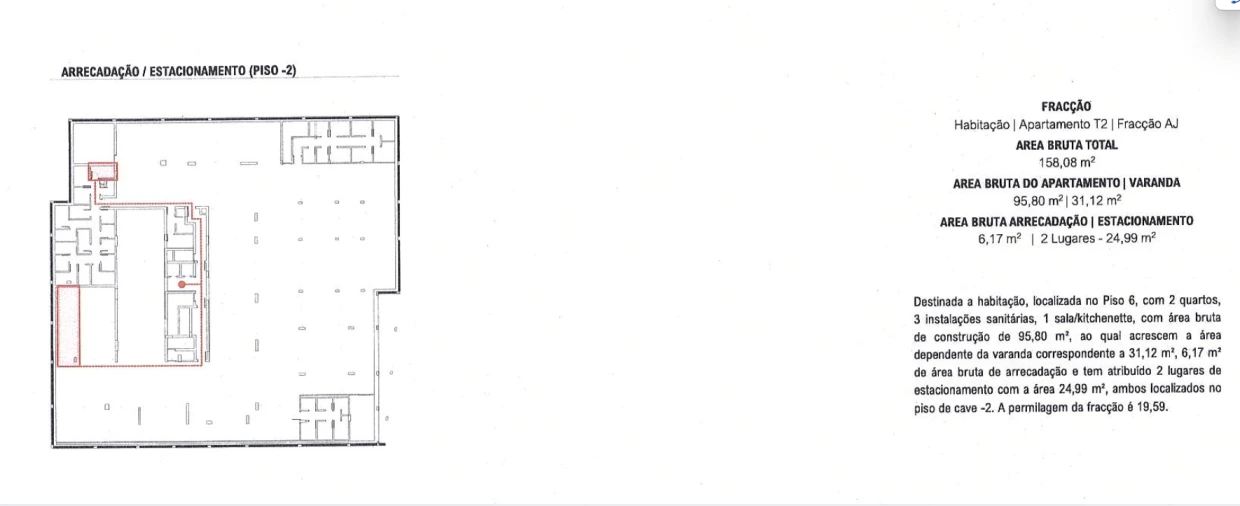
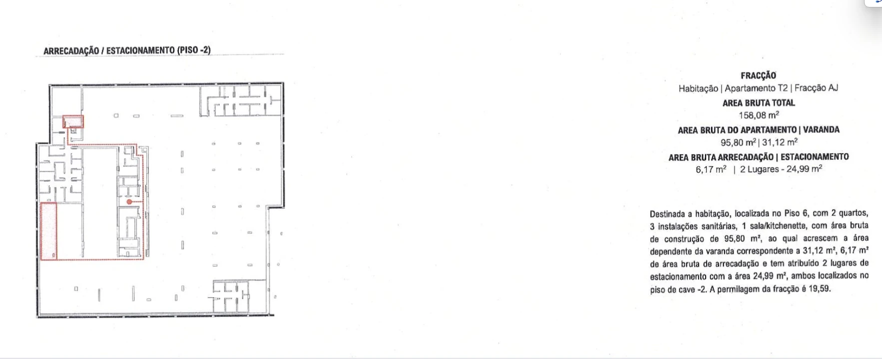
T2 Novo com varanda e terraço

Bem-vindo ao CITTI Miraflores,

Este fantástico apartamento T2 está inserido no sofisticado empreendimento CITTI concebido para definir um novo standard com linhas arquitetónicas intemporais e acabamentos sofisticados.
Este Apartamento foi pensado para promover uma relação óptima entre área interior e exterior: tem uma varanda enorme que vai desde a cozinha até ao quarto e tem mais de 31m2. A cereja no topo do bolo é que tem uma vista desafogada soberba!

O apartamento tem 2 suites, uma casa de banho social, e cozinha e sala em openspace. A cozinha vem totalmente equipada. As janelas são amplas e com vidros duplos. Os estores elétricos.
Conta ainda com uma arrecadação com 6m2, e dois lugares de garagem.
O prédio tem 2 elevadores, piscina, ginásio e ainda um parque infantil.

Em termos de acessos, visto que está entre linda-a-velha e Miraflores, está pertíssimo dos principais acessos à A5 lisboa-Cascais, 2ªCircular, e a 10 minutos da Marginal.
Tem vários autocarros que passam na Avenida Carolina Micaelis, e alguns vão até algés onde tem ligação aos comboios e elétricos.

Não deixe escapar esta oportunidade e ligue ainda hoje!

Localização

Algés, Linda-A-Velha e Cruz Quebrada-Dafundo, Oeiras, Lisboa

Informação do anúncio

ID do anúncio 1520353
Referência Externa L2025820
Atualizado em 15/12/2025 02:02:25
Listoo AMI 19516
Referência do imóvel: L2025820
Phone
Chamada para a rede móvel nacional
Listoo AMI 19516
Referência do imóvel: L2025820
Phone
Chamada para a rede móvel nacional
1 / 36
Apartamento T2 para Venda em Algés, Linda-A-Velha e Cruz Quebrada-Dafundo Foto 1
Apartamento T2 para Venda em Algés, Linda-A-Velha e Cruz Quebrada-Dafundo Foto 2
Apartamento T2 para Venda em Algés, Linda-A-Velha e Cruz Quebrada-Dafundo Foto 3
Apartamento T2 para Venda em Algés, Linda-A-Velha e Cruz Quebrada-Dafundo Foto 4
Apartamento T2 para Venda em Algés, Linda-A-Velha e Cruz Quebrada-Dafundo Foto 5
Apartamento T2 para Venda em Algés, Linda-A-Velha e Cruz Quebrada-Dafundo Foto 6
Apartamento T2 para Venda em Algés, Linda-A-Velha e Cruz Quebrada-Dafundo Foto 7
Apartamento T2 para Venda em Algés, Linda-A-Velha e Cruz Quebrada-Dafundo Foto 8
Apartamento T2 para Venda em Algés, Linda-A-Velha e Cruz Quebrada-Dafundo Foto 9
Apartamento T2 para Venda em Algés, Linda-A-Velha e Cruz Quebrada-Dafundo Foto 10
Apartamento T2 para Venda em Algés, Linda-A-Velha e Cruz Quebrada-Dafundo Foto 11
Apartamento T2 para Venda em Algés, Linda-A-Velha e Cruz Quebrada-Dafundo Foto 12
Apartamento T2 para Venda em Algés, Linda-A-Velha e Cruz Quebrada-Dafundo Foto 13
Apartamento T2 para Venda em Algés, Linda-A-Velha e Cruz Quebrada-Dafundo Foto 14
Apartamento T2 para Venda em Algés, Linda-A-Velha e Cruz Quebrada-Dafundo Foto 15
Apartamento T2 para Venda em Algés, Linda-A-Velha e Cruz Quebrada-Dafundo Foto 16
Apartamento T2 para Venda em Algés, Linda-A-Velha e Cruz Quebrada-Dafundo Foto 17
Apartamento T2 para Venda em Algés, Linda-A-Velha e Cruz Quebrada-Dafundo Foto 18
Apartamento T2 para Venda em Algés, Linda-A-Velha e Cruz Quebrada-Dafundo Foto 19
Apartamento T2 para Venda em Algés, Linda-A-Velha e Cruz Quebrada-Dafundo Foto 20
Apartamento T2 para Venda em Algés, Linda-A-Velha e Cruz Quebrada-Dafundo Foto 21
Apartamento T2 para Venda em Algés, Linda-A-Velha e Cruz Quebrada-Dafundo Foto 22
Apartamento T2 para Venda em Algés, Linda-A-Velha e Cruz Quebrada-Dafundo Foto 23
Apartamento T2 para Venda em Algés, Linda-A-Velha e Cruz Quebrada-Dafundo Foto 24
Apartamento T2 para Venda em Algés, Linda-A-Velha e Cruz Quebrada-Dafundo Foto 25
Apartamento T2 para Venda em Algés, Linda-A-Velha e Cruz Quebrada-Dafundo Foto 26
Apartamento T2 para Venda em Algés, Linda-A-Velha e Cruz Quebrada-Dafundo Foto 27
Apartamento T2 para Venda em Algés, Linda-A-Velha e Cruz Quebrada-Dafundo Foto 28
Apartamento T2 para Venda em Algés, Linda-A-Velha e Cruz Quebrada-Dafundo Foto 29
Apartamento T2 para Venda em Algés, Linda-A-Velha e Cruz Quebrada-Dafundo Foto 30
Apartamento T2 para Venda em Algés, Linda-A-Velha e Cruz Quebrada-Dafundo Foto 31
Apartamento T2 para Venda em Algés, Linda-A-Velha e Cruz Quebrada-Dafundo Foto 32
Apartamento T2 para Venda em Algés, Linda-A-Velha e Cruz Quebrada-Dafundo Foto 33
Apartamento T2 para Venda em Algés, Linda-A-Velha e Cruz Quebrada-Dafundo Foto 34
Apartamento T2 para Venda em Algés, Linda-A-Velha e Cruz Quebrada-Dafundo Foto 35
Apartamento T2 para Venda em Algés, Linda-A-Velha e Cruz Quebrada-Dafundo Foto 36
Clicky