Voltar
Quinta para Venda em Carrapateira Foto 1
Quinta para Venda em Carrapateira Foto 2
Quinta para Venda em Carrapateira Foto 3
Quinta para Venda em Carrapateira Foto 4

Quinta para Venda em Carrapateira

1.100.000 €

Tipo
Quinta
Negócio
Venda
Casas de Banho
1
Área Útil
275 m²
Condição
Precisa de Obras

Herdade do Melão, Bordeira, Aljezur

Localizada em pleno Parque Natural da Costa Vicentina e a escassos quilómetros de Aljezur e das praias de Vale Figueiras, Carrapateira e do Amado (consideradas das melhores praias de Portugal) , a “Herdade do Melão” possui cerca de 20.000m2 com um enquadramento paisagístico fenomenal.

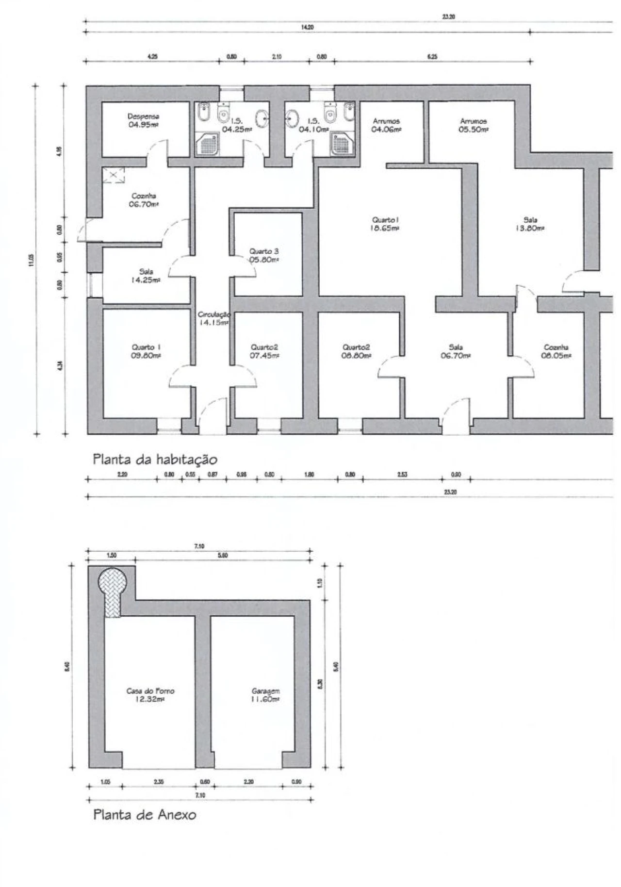
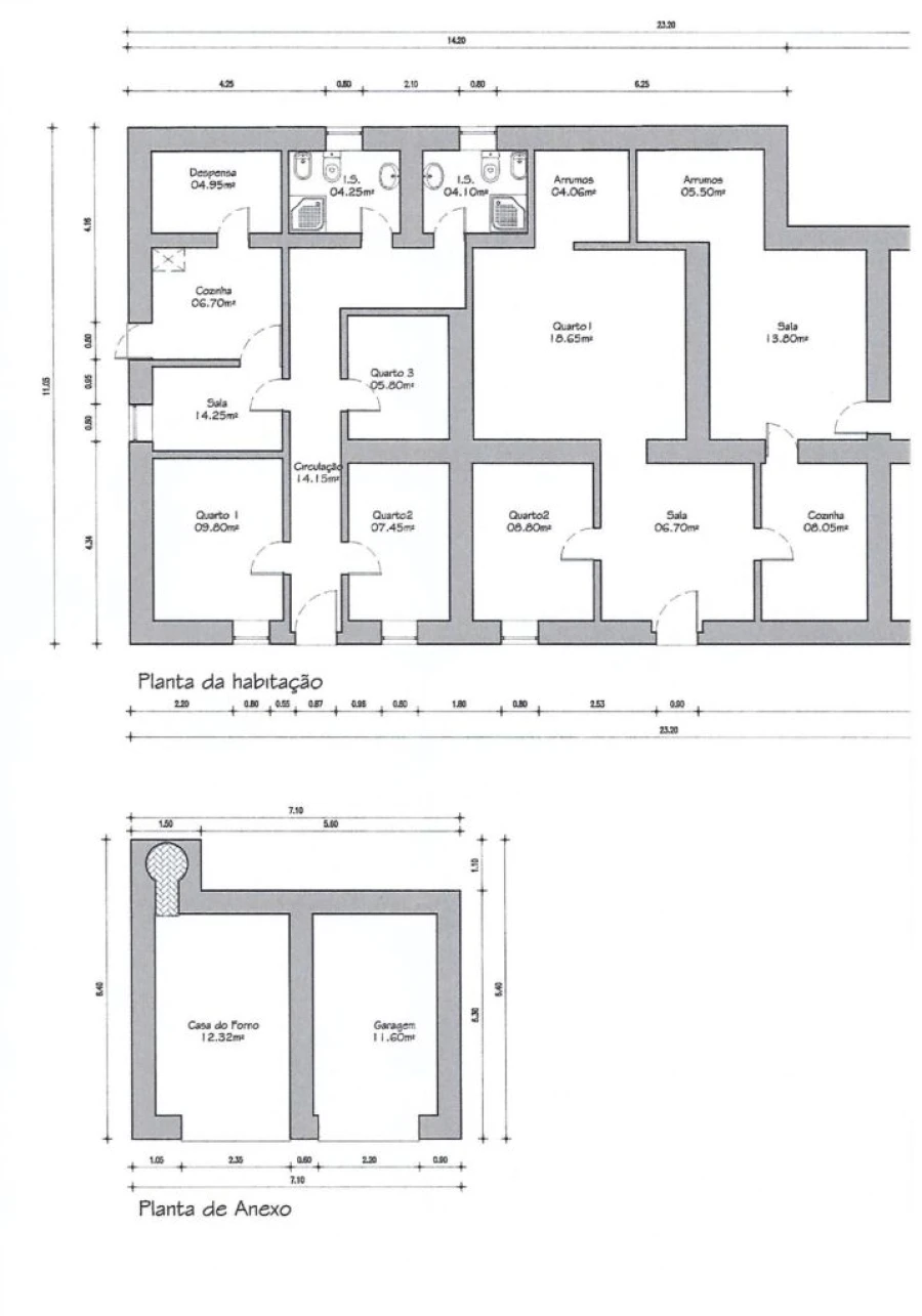
Composta por uma casa térrea com 275m2 e logradouro para reconstrução e um poço de água, existe também a possibilidade de construção de uma segunda casa com uma área aproximada de 175m2, que faria deste local um sítio ideal para o turismo rural.
Um terreno com uma excelente zona verde, pacifica e uma linda vista sobre a serra e campo.

A 1 hora do aeroporto internacional de Faro, a 20 km de Lagos e a 2 horas e 50 minutos de Lisboa, o extenso retângulo limitado pelo mar e pela serra, o concelho de Aljezur reflecte, nas suas paisagens, esta dupla influência. Se a orla marítima é marcada pelas altas falésias onde se aninham areais e dunas, o interior é uma sucessão de horizontes cobertos de vegetação. Entre ambos fica uma vasta faixa de vales e charnecas férteis, onde se mantém a tradição do cultivo de frescas hortas, da batata-doce, do medronho e dos percebes.

Percorrer este concelho é, assim, a oportunidade de recuperar a tranquilidade, de reencontrar o silêncio cortado pelo canto das aves e a melodia das ondas embatendo nas rochas. De apreciar paisagens com o mar como horizonte, campos verdejantes, colinas rescendendo aos perfumes da natureza e coloridas flores silvestres e um maravilhoso castelo.

Esta é a sua oportunidade de ter o seu pedaço de terra num dos locais mais encantadores do litoral de Portugal.

Localização

Aljezur, Aljezur, Faro

A localização exacta do imóvel não está disponível. O mapa apresenta a zona aproximada.

Informação do anúncio

ID do anúncio 1521545
Referência Externa C0283-00955
Atualizado em 15/12/2025 16:02:26
Rocha & Sarmento Lda. AMI 12743
Referência do imóvel: C0283-00955
Phone
Chamada para a rede fixa nacional
Century 21 Dreamline
Century 21 Dreamline
Phone
Chamada para a rede móvel nacional
Rocha & Sarmento Lda. AMI 12743
Referência do imóvel: C0283-00955
Phone
Chamada para a rede fixa nacional
Century 21 Dreamline
Century 21 Dreamline
Phone
Chamada para a rede móvel nacional
1 / 4
Quinta para Venda em Carrapateira Foto 1
Quinta para Venda em Carrapateira Foto 2
Quinta para Venda em Carrapateira Foto 3
Quinta para Venda em Carrapateira Foto 4
Clicky