Voltar
Terreno para Venda em Santo Estêvão Foto 1
Terreno para Venda em Santo Estêvão Foto 2
Terreno para Venda em Santo Estêvão Foto 3
Terreno para Venda em Santo Estêvão Foto 4
Terreno para Venda em Santo Estêvão Foto 5

Terreno para Venda em Santo Estêvão

195.000 €

Tipo
Terreno
Negócio
Venda
Ano de Construção
2027
Área Bruta
203 m²
Área Útil
200 m²
Condição
Usado
Certificado Energético
Em execução
Área do Terreno
1018 m²

Terreno com projeto aprovado Santo Estêvão

Vende-se terreno com projeto aprovado na exclusiva Herdade de Vila Nova de Santo Estêvão

Apresentamos-lhe uma oportunidade única de investir ou construir a sua moradia de sonho num dos empreendimentos mais prestigiados da região.
Inserido na Herdade de Santo Estêvão Golf, este terreno alia natureza, tranquilidade e sofisticação, a poucos minutos de Lisboa.

>Área total do lote: 1.018 m²

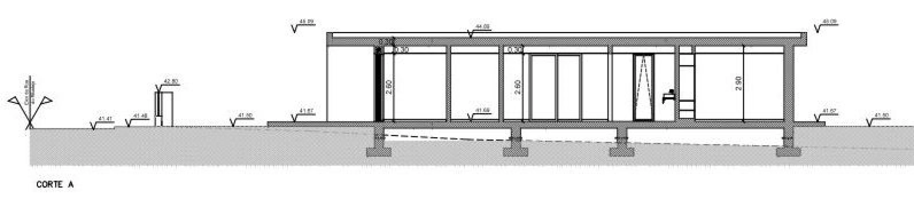
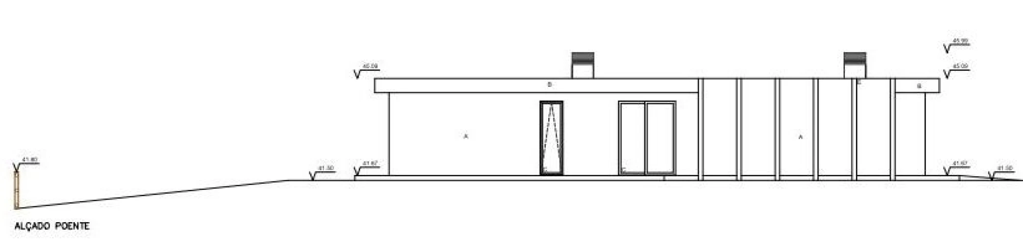
> Moradia T4 projetada com:
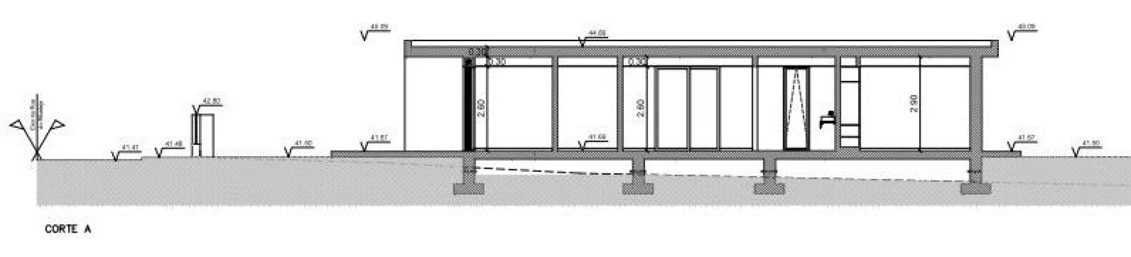
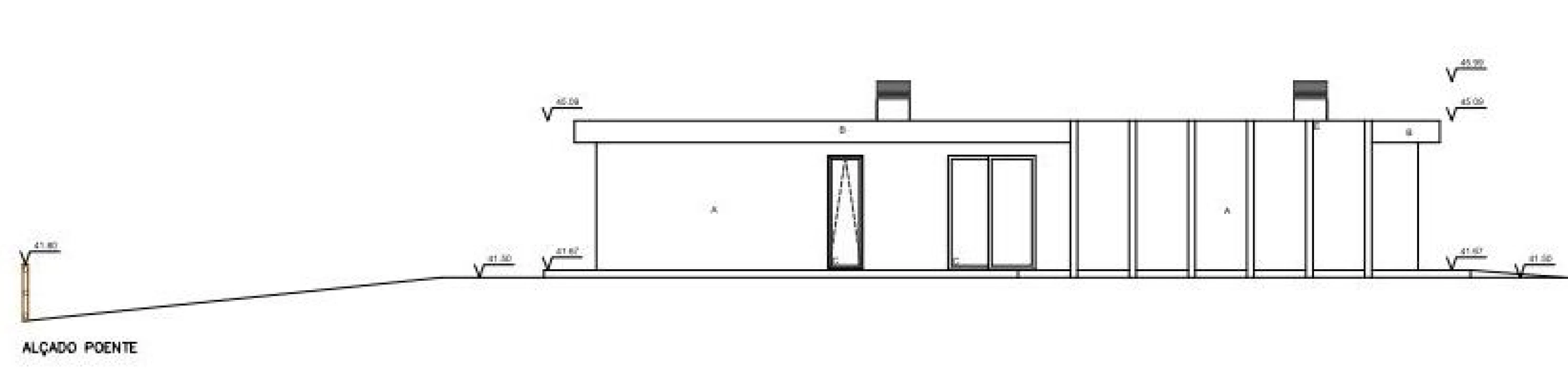
203,63 m² de área bruta de construção
Piscina com 44,16 m²
404,88 m² de área impermeável
613,12 m² de área verde permeável

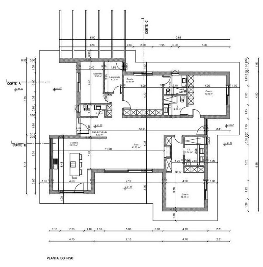
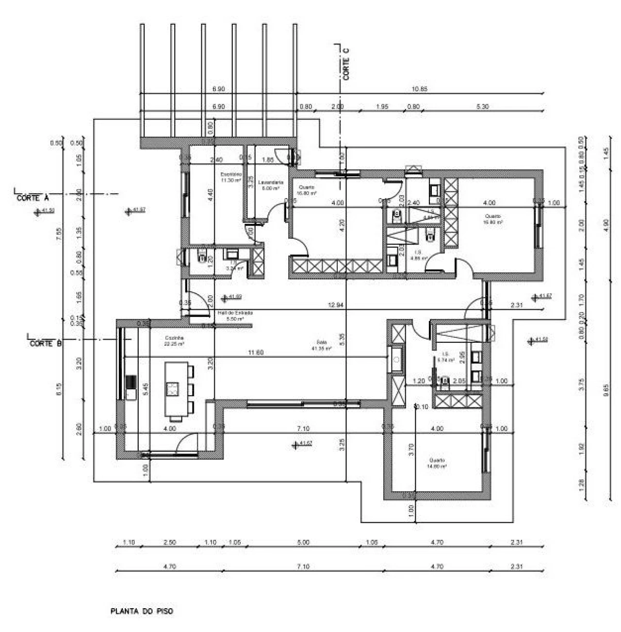
> Distribuição Interior da Moradia
Hall de entrada: 5,50 m²
Sala comum ampla e luminosa: 41,35 m²
Cozinha moderna: 22,25 m²
Escritório: 11,30 m²
Lavandaria: 6,00 m²
Suite 1: 16,80 m² + WC privativo 4,86 m²
Suite 2: 16,80 m² + WC privativo 4,86 m²
Suite 3: 14,80 m² + WC privativo 5,74 m²

> Estacionamento automóvel dentro e fora do lote
> A Herdade de Santo Estêvão é reconhecida pela sua segurança, privacidade e elevada qualidade de vida, a Herdade de Santo Estêvão oferece um estilo de vida exclusivo, ideal para quem valoriza o conforto sem abdicar da proximidade à cidade.
> Aqui poderá desfrutar de: Campos de golfe de referência, Paisagens naturais únicas, Ambiente tranquilo, elegante e reservado, Uma oportunidade a não perder
> Este projeto foi cuidadosamente desenvolvido para proporcionar um ambiente moderno, funcional e confortável, com foco na eficiência energética, no design contemporâneo e no bem-estar familiar.
> Contacte-nos hoje mesmo para mais informações ou para agendar a sua visita.
> Dispomos ainda de parcerias com intermediários de crédito, prontos para o ajudar a encontrar a melhor solução de financiamento.

Caso pretenda adquirir o terreno com o projeto aprovado e incluir a construção da moradia, o valor global do investimento será de 780.000 €.

Localização

Santo Estêvão, Benavente, Santarém

Informação do anúncio

ID do anúncio 1522185
Referência Externa NS076
Atualizado em 17/12/2025 10:57:37
N Soluções Imobiliárias AMI 20765
Referência do imóvel: NS076
Phone
Chamada para a rede móvel nacional
Novas Soluções Imobiliárias
Novas Soluções Imobiliárias
Phone
Chamada para a rede móvel nacional
N Soluções Imobiliárias AMI 20765
Referência do imóvel: NS076
Phone
Chamada para a rede móvel nacional
Novas Soluções Imobiliárias
Novas Soluções Imobiliárias
Phone
Chamada para a rede móvel nacional
1 / 18
Terreno para Venda em Santo Estêvão Foto 1
Terreno para Venda em Santo Estêvão Foto 2
Terreno para Venda em Santo Estêvão Foto 3
Terreno para Venda em Santo Estêvão Foto 4
Terreno para Venda em Santo Estêvão Foto 5
Terreno para Venda em Santo Estêvão Foto 6
Terreno para Venda em Santo Estêvão Foto 7
Terreno para Venda em Santo Estêvão Foto 8
Terreno para Venda em Santo Estêvão Foto 9
Terreno para Venda em Santo Estêvão Foto 10
Terreno para Venda em Santo Estêvão Foto 11
Terreno para Venda em Santo Estêvão Foto 12
Terreno para Venda em Santo Estêvão Foto 13
Terreno para Venda em Santo Estêvão Foto 14
Terreno para Venda em Santo Estêvão Foto 15
Terreno para Venda em Santo Estêvão Foto 16
Terreno para Venda em Santo Estêvão Foto 17
Terreno para Venda em Santo Estêvão Foto 18
Clicky