Voltar
Moradia T3 para Venda em Loule (São Sebastião) Foto 1
Moradia T3 para Venda em Loule (São Sebastião) Foto 2
Moradia T3 para Venda em Loule (São Sebastião) Foto 3
Moradia T3 para Venda em Loule (São Sebastião) Foto 4
Moradia T3 para Venda em Loule (São Sebastião) Foto 5

Moradia T3 para Venda em Loule (São Sebastião)

820.000 €

Tipo
Moradia
Negócio
Venda
Ano de Construção
2025
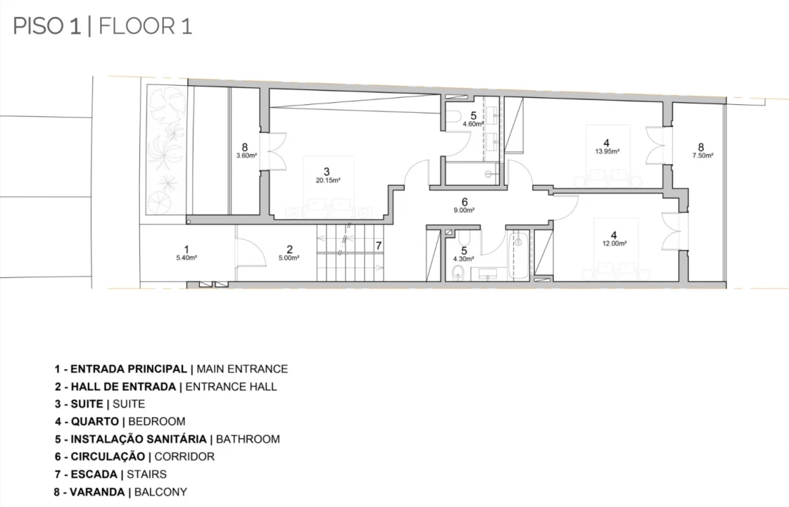
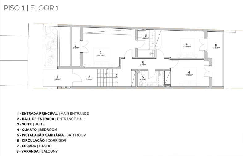
Quartos
3
Casas de Banho
4
Área Bruta
400 m²
Área Útil
240 m²
Condição
Como novo
Certificado Energético
A

Moradia T3+1 com 400m2 em Loule a 15 minutos da praia

Moradia T3+1 em Loulé – Onde o conforto encontra a serenidade.
Imagine-se a viver num espaço onde o silêncio do campo se mistura com a brisa suave do Algarve, a poucos minutos das praias douradas da Quinta do Lago e do aeroporto de Faro.
Esta moradia T3+1 com 400m² de construção é muito mais do que uma casa — é um convite para viver com qualidade, equilíbrio e elegância.
Com áreas generosas e uma orientação solar nascente/poente, cada divisão é inundada por luz natural ao longo do dia.
Os espaços abrem-se para varandas panorâmicas e um terraço de 50m², onde pode desfrutar do pôr do sol sobre o campo e a cidade — com a possibilidade de instalar um jacuzzi ou uma pequena piscina privada.
Concebida para o conforto do dia a dia, esta moradia dispõe de bomba de calor, ar condicionado e recuperador de calor a pellets que garantem conforto em todas as estações.
Cozinha moderna equipada com eletrodomésticos Bosch, onde cada detalhe foi pensado para inspirar momentos de partilha.
Sistema de som integrado em toda a casa, perfeito para criar o ambiente ideal em cada ocasião.
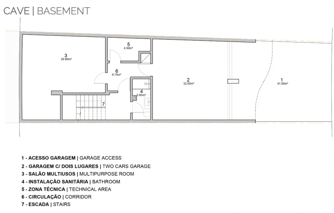
Uma sala versátil na cave, preparada para cinema em casa ou ginásio privado, que se adapta ao seu estilo de vida.
Espaço e privacidade com garagem fechada para dois automóveis e ainda dois lugares de estacionamento exteriores privativos.
A zona envolvente é residencial, muito calma e segura, e fica a apenas 10 minutos a pé dos mercados e do centro histórico de Loulé.
Aqui, cada dia começa com luz e termina com tranquilidade.
Se procura uma moradia que combina elegância, conforto e localização privilegiada, agende já a sua visita.

46.

Localização

Loule (São Sebastião), Loulé, Faro

Informação do anúncio

ID do anúncio 1522228
Referência Externa 27/2025
Atualizado em 17/12/2025 11:09:28
Castelo Imobiliária AMI 11821
Referência do imóvel: 27/2025
Phone
Chamada para a rede móvel nacional
Castelo Imobiliária AMI 11821
Referência do imóvel: 27/2025
Phone
Chamada para a rede móvel nacional
1 / 38
Moradia T3 para Venda em Loule (São Sebastião) Foto 1
Moradia T3 para Venda em Loule (São Sebastião) Foto 2
Moradia T3 para Venda em Loule (São Sebastião) Foto 3
Moradia T3 para Venda em Loule (São Sebastião) Foto 4
Moradia T3 para Venda em Loule (São Sebastião) Foto 5
Moradia T3 para Venda em Loule (São Sebastião) Foto 6
Moradia T3 para Venda em Loule (São Sebastião) Foto 7
Moradia T3 para Venda em Loule (São Sebastião) Foto 8
Moradia T3 para Venda em Loule (São Sebastião) Foto 9
Moradia T3 para Venda em Loule (São Sebastião) Foto 10
Moradia T3 para Venda em Loule (São Sebastião) Foto 11
Moradia T3 para Venda em Loule (São Sebastião) Foto 12
Moradia T3 para Venda em Loule (São Sebastião) Foto 13
Moradia T3 para Venda em Loule (São Sebastião) Foto 14
Moradia T3 para Venda em Loule (São Sebastião) Foto 15
Moradia T3 para Venda em Loule (São Sebastião) Foto 16
Moradia T3 para Venda em Loule (São Sebastião) Foto 17
Moradia T3 para Venda em Loule (São Sebastião) Foto 18
Moradia T3 para Venda em Loule (São Sebastião) Foto 19
Moradia T3 para Venda em Loule (São Sebastião) Foto 20
Moradia T3 para Venda em Loule (São Sebastião) Foto 21
Moradia T3 para Venda em Loule (São Sebastião) Foto 22
Moradia T3 para Venda em Loule (São Sebastião) Foto 23
Moradia T3 para Venda em Loule (São Sebastião) Foto 24
Moradia T3 para Venda em Loule (São Sebastião) Foto 25
Moradia T3 para Venda em Loule (São Sebastião) Foto 26
Moradia T3 para Venda em Loule (São Sebastião) Foto 27
Moradia T3 para Venda em Loule (São Sebastião) Foto 28
Moradia T3 para Venda em Loule (São Sebastião) Foto 29
Moradia T3 para Venda em Loule (São Sebastião) Foto 30
Moradia T3 para Venda em Loule (São Sebastião) Foto 31
Moradia T3 para Venda em Loule (São Sebastião) Foto 32
Moradia T3 para Venda em Loule (São Sebastião) Foto 33
Moradia T3 para Venda em Loule (São Sebastião) Foto 34
Moradia T3 para Venda em Loule (São Sebastião) Foto 35
Moradia T3 para Venda em Loule (São Sebastião) Foto 36
Moradia T3 para Venda em Loule (São Sebastião) Foto 37
Moradia T3 para Venda em Loule (São Sebastião) Foto 38
Clicky