Prédio para Venda em Barreiro e Lavradio
395.000 €
Tipo
Prédio
Negócio
Venda
Ano de Construção
1937
Área Útil
393 m²
Condição
Certificado Energético
F
Prédio para venda
Prédio com projeto aprovado para reabilitação na zona ribeirinha do Barreiro
Situado no coração do centro histórico do Barreiro, este edifício em propriedade total encontra-se com projeto de arquitetura aprovado de reconstrução e ampliação.
Atualmente, o prédio constituído em regime de propriedade total, está localizado na Rua Marquês de Pombal 76 e na Rua Conselheiro Joaquim António Aguiar, 93, 95, 97, e é composto por dois edifícios contíguos de construção tradicional com acessos por ruas diferentes, sendo que tem 2 pisos de um lado e apenas 1 piso do outro.
Ambos possuem acesso a sótão, cobertura de quatro águas em telha cerâmica e revestimento de azulejo nas fachadas. O edifício encontra-se devoluto e mau estado de conservação, no piso 0 chegou a funcionar uma loja e respetivos arrumos, bem como uma garagem. No piso 1 uma habitação de tipologia T2, e aproveitamento dos sótãos para arrumos.
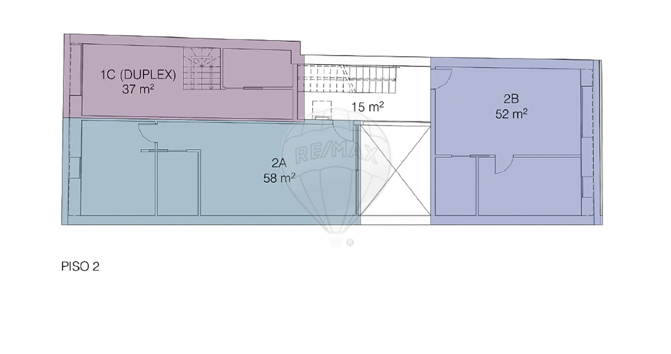
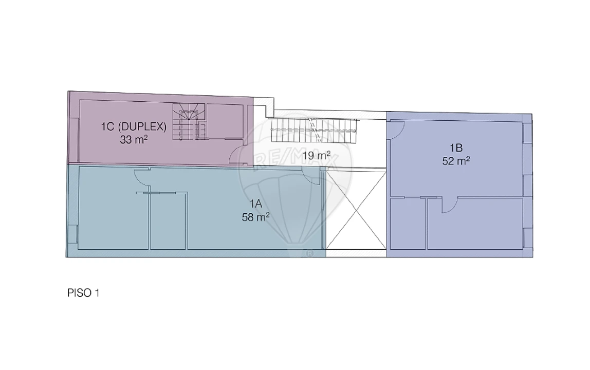
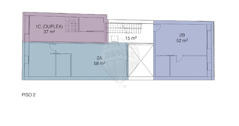
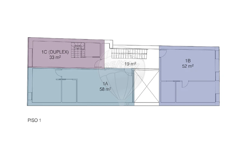
O projeto de arquitetura aprovado contempla a junção dos dois blocos existentes e contíguos, num único edifício de habitação coletiva, sendo dividido em 7 apartamentos de tipologia T1 com uma área bruta de construção prevista de 486 m2. A organização espacial prevê a criação de um pátio interior, garantindo luz natural para os apartamentos bem como para áreas comuns do prédio.
Dados principais:
Edifício com 267 m2 ABC e 175 área implantação
Projeto com 486 m2 ABC e 163 área implantação
Atualmente com 2 pisos, projeto com 3 pisos
Projeto para 7 apartamentos T1 com áreas entre 50 m2 e 70 m2
Um dos apartamentos T1 será duplex
Localizado em plena zona ribeirinha do Barreiro, uma zona bem servida por transportes públicos, comércio local, cafés e restaurantes típicos. A proximidade ao rio Tejo proporciona uma qualidade de vida invejável. Com ligação fluvial direta a Lisboa através do terminal Rodo-Ferro-Fluvial, é o cenário perfeito para quem procura investir fora da capital, mas com toda a conveniência de acesso rápido e cómodo.
Para mais informações contacte-me.
;ID RE/MAX: 120261777-70
Situado no coração do centro histórico do Barreiro, este edifício em propriedade total encontra-se com projeto de arquitetura aprovado de reconstrução e ampliação.
Atualmente, o prédio constituído em regime de propriedade total, está localizado na Rua Marquês de Pombal 76 e na Rua Conselheiro Joaquim António Aguiar, 93, 95, 97, e é composto por dois edifícios contíguos de construção tradicional com acessos por ruas diferentes, sendo que tem 2 pisos de um lado e apenas 1 piso do outro.
Ambos possuem acesso a sótão, cobertura de quatro águas em telha cerâmica e revestimento de azulejo nas fachadas. O edifício encontra-se devoluto e mau estado de conservação, no piso 0 chegou a funcionar uma loja e respetivos arrumos, bem como uma garagem. No piso 1 uma habitação de tipologia T2, e aproveitamento dos sótãos para arrumos.
O projeto de arquitetura aprovado contempla a junção dos dois blocos existentes e contíguos, num único edifício de habitação coletiva, sendo dividido em 7 apartamentos de tipologia T1 com uma área bruta de construção prevista de 486 m2. A organização espacial prevê a criação de um pátio interior, garantindo luz natural para os apartamentos bem como para áreas comuns do prédio.
Dados principais:
Edifício com 267 m2 ABC e 175 área implantação
Projeto com 486 m2 ABC e 163 área implantação
Atualmente com 2 pisos, projeto com 3 pisos
Projeto para 7 apartamentos T1 com áreas entre 50 m2 e 70 m2
Um dos apartamentos T1 será duplex
Localizado em plena zona ribeirinha do Barreiro, uma zona bem servida por transportes públicos, comércio local, cafés e restaurantes típicos. A proximidade ao rio Tejo proporciona uma qualidade de vida invejável. Com ligação fluvial direta a Lisboa através do terminal Rodo-Ferro-Fluvial, é o cenário perfeito para quem procura investir fora da capital, mas com toda a conveniência de acesso rápido e cómodo.
Para mais informações contacte-me.
;ID RE/MAX: 120261777-70
Localização
Barreiro e Lavradio, Barreiro, Setúbal
Informação do anúncio
ID do anúncio
1523484
Referência Externa
120261777-70
Atualizado em
26/04/2026 12:48:23
Anunciante
Chamada para a rede fixa nacional
Vantagem Avenida
AMI 7772
Referência do imóvel:
120261777-70
Prédio para Venda em Barreiro e Lavradio