Voltar
Apartamento para Venda em São Vicente Foto 1
Apartamento para Venda em São Vicente Foto 2
Apartamento para Venda em São Vicente Foto 3
Apartamento para Venda em São Vicente Foto 4
Apartamento para Venda em São Vicente Foto 5

Apartamento para Venda em São Vicente

315.000 €

Tipo
Apartamento
Negócio
Venda
Ano de Construção
2003
Casas de Banho
1
Área Útil
31 m²
Condição
Certificado Energético
B
Área do Terreno
38 m²

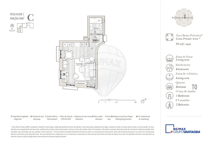
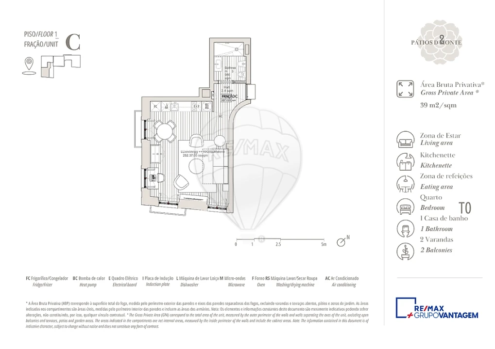
Apartamento T0 para venda

Pátios do Monte – Bairro da Graça | Lisboa

O Pátios do Monte é um exclusivo empreendimento
residencial em construção, situado na Calçada do Monte, no emblemático bairro
da Graça, em Lisboa. Inserido numa das zonas mais autênticas e elevadas da
cidade, o projeto combina arquitetura contemporânea com o caráter histórico
da envolvente, proporcionando um ambiente residencial tranquilo no centro
urbano.

Com conclusão prevista para o último trimestre de 2026,
o empreendimento foi concebido para oferecer conforto, funcionalidade e
qualidade de vida, destacando-se pelos seus espaços exteriores privativos,
acabamentos modernos e localização privilegiada, próxima de miradouros,
comércio local, serviços e transportes públicos. O Pátios do Monte
representa uma excelente oportunidade tanto para habitação própria como
para investimento imobiliário.



Apartamento T0 – 1.º Andar com Varandas (38 m²)

Apartamento T0 com 38 m², localizado no 1.º
andar, com duas varandas que proporcionam boa luminosidade natural.

A zona social é composta por uma kitchenette com 24 m²,
equipada com cozinha totalmente equipada, e uma casa de banho
completa.

Dispõe de ar condicionado, soalho flutuante
vinílico e estores elétricos, sendo uma solução prática e moderna,
ideal para residência própria ou investimento.



Venha Visitar



;ID RE/MAX: 120261638-83

Localização

São Vicente, Lisboa, Lisboa

Informação do anúncio

ID do anúncio 1529439
Referência Externa 120261638-83
Atualizado em 03/04/2026 13:48:25
Vantagem Avenida AMI 7772
Referência do imóvel: 120261638-83
Phone
Chamada para a rede fixa nacional
Vantagem Avenida AMI 7772
Referência do imóvel: 120261638-83
Phone
Chamada para a rede fixa nacional
1 / 6
Apartamento para Venda em São Vicente Foto 1
Apartamento para Venda em São Vicente Foto 2
Apartamento para Venda em São Vicente Foto 3
Apartamento para Venda em São Vicente Foto 4
Apartamento para Venda em São Vicente Foto 5
Apartamento para Venda em São Vicente Foto 6
Clicky