Apartamento T2 para Arrendamento em Campo de Ourique
1.400 €
Tipo
Apartamento
Negócio
Arrendamento
Ano de Construção
2025
Quartos
2
Casas de Banho
1
Área Bruta
74 m²
Área Útil
66 m²
Certificado Energético
D
Apartamento T2 em Campo de Ourique - Excelente Localização
Um T2 em Campo de Ourique? Conte-me mais!
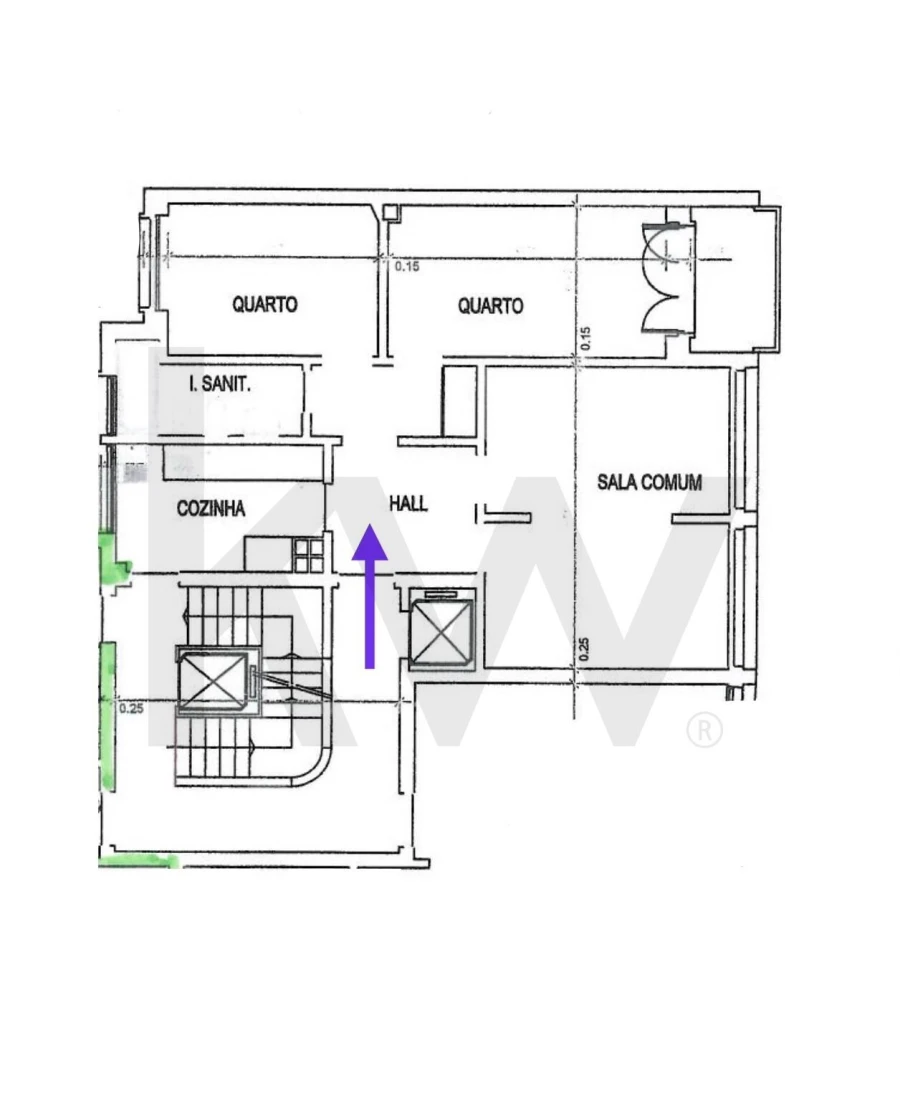
Este apartamento T2 remodelado, com 74 m² de área bruta, situa-se em Campo de Ourique, um dos bairros mais desejados de Lisboa, conhecido pelo seu ambiente acolhedor, comércio tradicional e excelente qualidade de vida.
E o apartamento, como é?
O imóvel oferece dois quartos luminosos, uma sala ampla, uma casa de banho completa e uma varanda, proporcionando conforto e momentos de lazer ao ar livre.
A cozinha encontra-se equipada com forno, fogão, exaustor e esquentador ou termoacumulador, assegurando praticidade e comodidade para o dia a dia.
E o edifício?
O apartamento localiza-se no 2.º andar de um edifício com elevador, garantindo maior comodidade no acesso.
E a localização?
Viver em Campo de Ourique é usufruir de uma das zonas mais completas da cidade: restaurantes, cafés, supermercados, comércio local e uma excelente rede de transportes públicos, tudo a poucos minutos a pé. Um bairro vibrante, ideal para quem valoriza conveniência, charme e qualidade de vida.
Interessado?
Entre em contacto connosco para mais informações ou para agendar a sua visita!
Licença de utilização: 111
Este site utiliza cookies. Ao navegar no site estará a consentir a sua utilização. Para mais informações sobre os cookies pode consultar a
política de privacidade.