Terreno para Venda em Meirinhas
250.000 €
Tipo
Terreno
Negócio
Venda
Ano de Construção
2026
Área Bruta
621 m²
Certificado Energético
N/A
Área do Terreno
621 m²
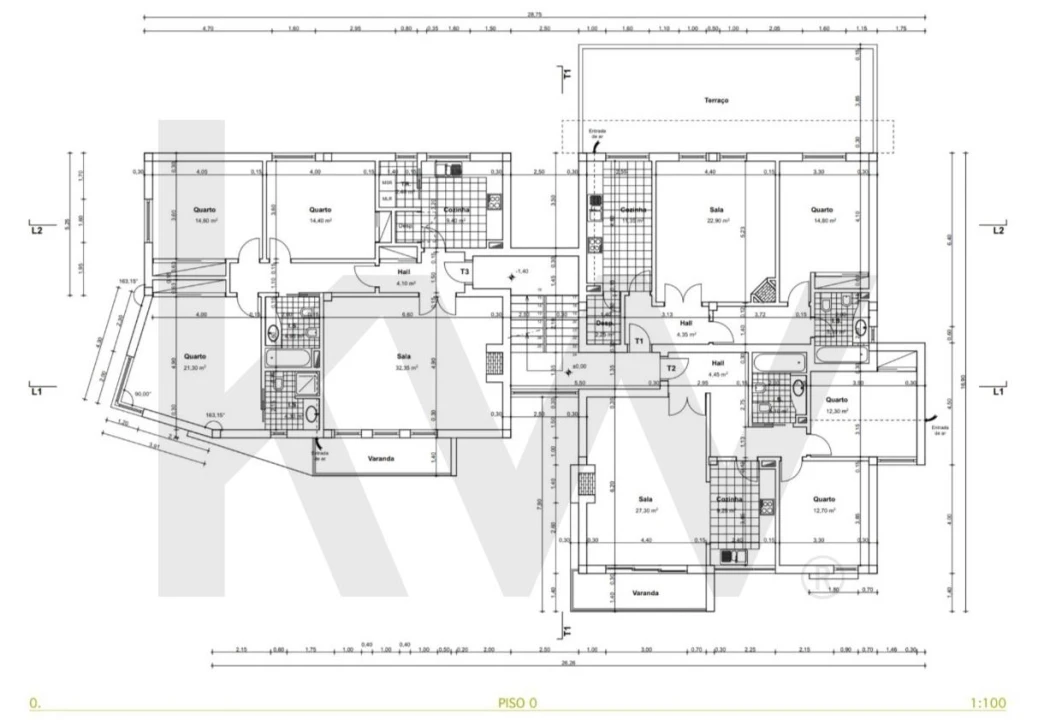
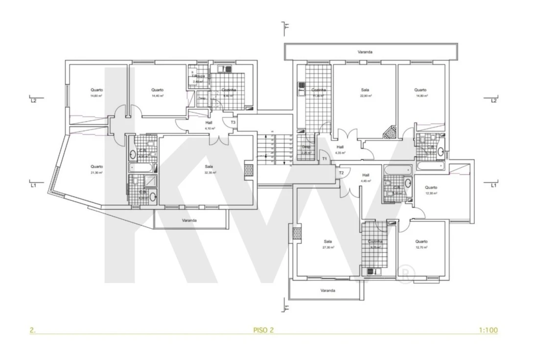
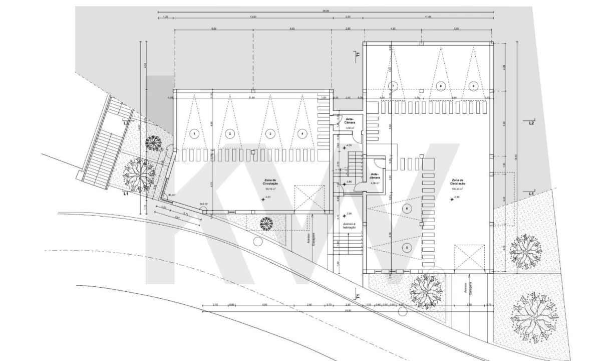
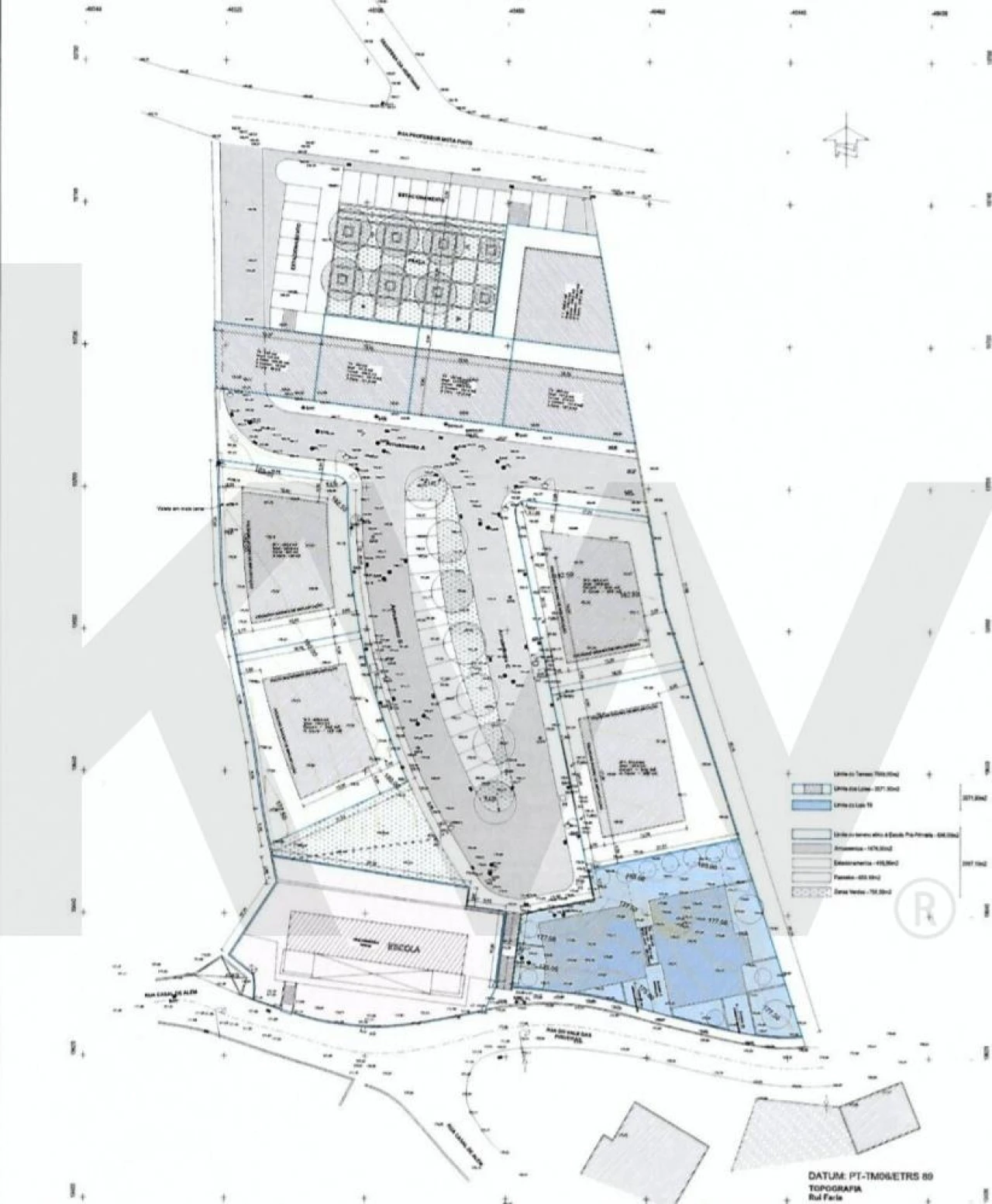
Terreno para Prédio com 9 Apartamentos | Entregue com PIP aprovado | Meirinhas | Pombal
Terreno urbano localizado nas Meirinhas em Pombal, com 621m2 e com uma capacidade construtiva de até 3 pisos, com 600m2 de área bruta de construção.
Foi desenvolvido, submetido, mas não finalizado, um projeto para a construção de um prédio com 9 apartamentos conforme se pode verificar pelas fotografias do anuncio.
Atualmente esta a ser desenvolvida uma nova versão deste projeto, com fachadas e acabamentos mais recentes junto de um equipa de arquitetos e será entregue para apreciação e aprovação na Câmara Municipal brevemente. O terreno será escriturado com PIP aprovado ou conforme decorrer as negociações, poderá ser entregue com a licença de construção a levantamento.
Se procura desenvolver um projeto imobiliário de requinte, numa zona já infraestruturada junto a um colégio, escolas e todo o tipo de comercios e servicos ao redor, sem concorrência de outros empreendimentos esta é a oportunidade certa.
Ao dispor para mais informações
Ao escolher Um Consultor - KW Union obtém :
- Um Consultor imobiliário com uma excelente formação do mercado
- Visualização das casas com antecedência
- Informação sobre novas casas no mercado
- Informação sobre outras casas vendidas e por que valores
- Apresentação das melhores soluções financeiras para aquisição do imóvel
- Apoio no processo de financiamento (se requerido)
- Presença na avaliação do imóvel
- Apoio na marcação da escritura
- Se é um consultor imobiliário, não hesite em contactar-me, a KW UNION COIMBRA orgulha-se de partilhar negócios 50-50 com todas as imobiliárias no mercado.
- Se é profissional do sector e tem um cliente comprador qualificado, contacte-me e agende a sua visita.
- Para maior facilidade na identificação deste imóvel, por favor, refira o respetivo ID. Em caso de agendamento de visita, faça-se acompanhar de um documento de identificação.
Muito obrigado!
Foi desenvolvido, submetido, mas não finalizado, um projeto para a construção de um prédio com 9 apartamentos conforme se pode verificar pelas fotografias do anuncio.
Atualmente esta a ser desenvolvida uma nova versão deste projeto, com fachadas e acabamentos mais recentes junto de um equipa de arquitetos e será entregue para apreciação e aprovação na Câmara Municipal brevemente. O terreno será escriturado com PIP aprovado ou conforme decorrer as negociações, poderá ser entregue com a licença de construção a levantamento.
Se procura desenvolver um projeto imobiliário de requinte, numa zona já infraestruturada junto a um colégio, escolas e todo o tipo de comercios e servicos ao redor, sem concorrência de outros empreendimentos esta é a oportunidade certa.
Ao dispor para mais informações
Ao escolher Um Consultor - KW Union obtém :
- Um Consultor imobiliário com uma excelente formação do mercado
- Visualização das casas com antecedência
- Informação sobre novas casas no mercado
- Informação sobre outras casas vendidas e por que valores
- Apresentação das melhores soluções financeiras para aquisição do imóvel
- Apoio no processo de financiamento (se requerido)
- Presença na avaliação do imóvel
- Apoio na marcação da escritura
- Se é um consultor imobiliário, não hesite em contactar-me, a KW UNION COIMBRA orgulha-se de partilhar negócios 50-50 com todas as imobiliárias no mercado.
- Se é profissional do sector e tem um cliente comprador qualificado, contacte-me e agende a sua visita.
- Para maior facilidade na identificação deste imóvel, por favor, refira o respetivo ID. Em caso de agendamento de visita, faça-se acompanhar de um documento de identificação.
Muito obrigado!
Localização
Meirinhas, Pombal, Leiria
Informação do anúncio
ID do anúncio
1535602
Referência Externa
KWPT-025747
Atualizado em
27/04/2026 00:05:28
Anunciante
Chamada para a rede fixa nacional
KW Union Coimbra
AMI 16772
Referência do imóvel:
KWPT-025747
Terreno para Venda em Meirinhas
Vídeo