Voltar
Moradia T3 para Venda em Olhão Foto 1
Moradia T3 para Venda em Olhão Foto 2
Moradia T3 para Venda em Olhão Foto 3
Moradia T3 para Venda em Olhão Foto 4
Moradia T3 para Venda em Olhão Foto 5
Visita Virtual Visita Virtual

Moradia T3 para Venda em Olhão

630.000 €

Tipo
Moradia
Negócio
Venda
Quartos
3
Casas de Banho
4
Área Bruta
256 m²
Área Útil
256 m²
Condição
Novo
Certificado Energético
A
Área do Terreno
218 m²

Moradia T3 a estrear no centro de Moncarapacho e perto de Olhão

Moradia nova de arquitetura moderna, distribuída por vários pisos e pensada para oferecer conforto, funcionalidade e qualidade de vida.

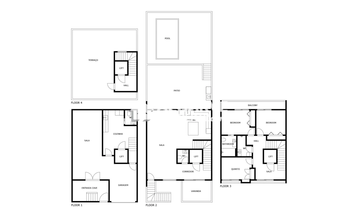
No rés-do-chão, encontra-se uma lavandaria, uma casa de banho completa e uma garagem com capacidade para um automóvel.

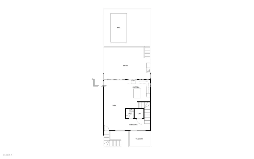
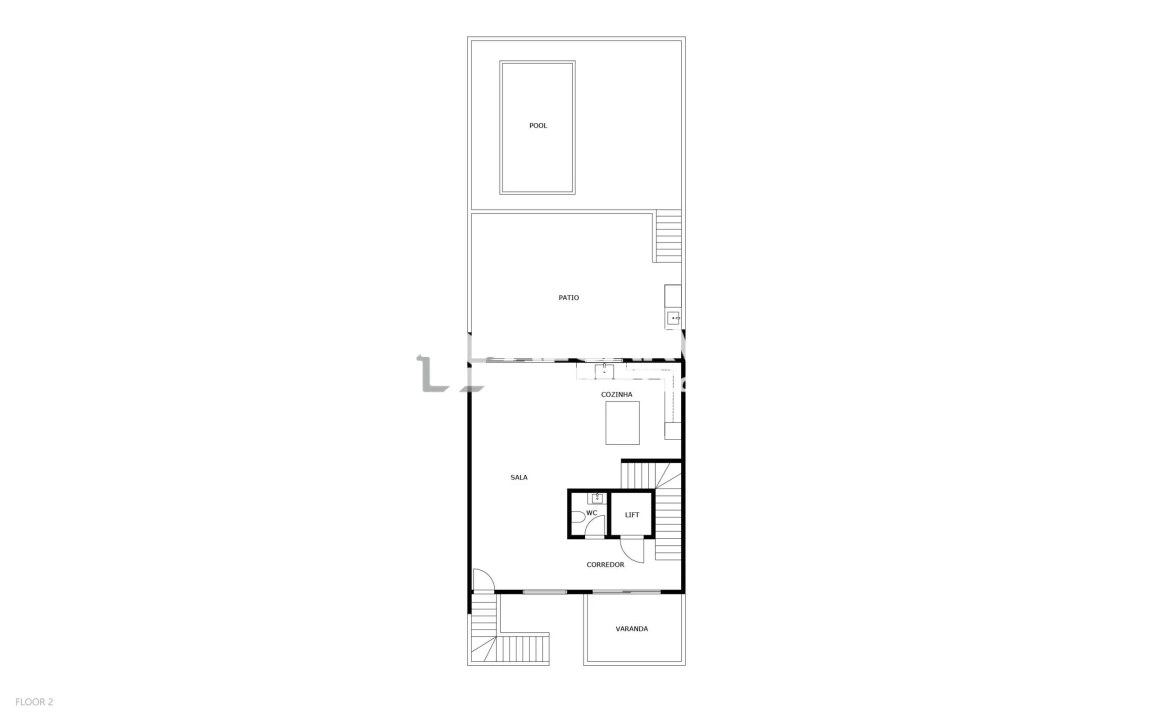
O primeiro piso dispõe de um elegante hall de entrada, cozinha totalmente equipada, ampla sala de jantar e estar em open space, com acesso direto a um grande terraço, ideal para momentos de lazer, equipado com zona de barbecue e piscina.

No segundo piso, a área privada da habitação é composta por três quartos, sendo um deles em suíte, garantindo conforto e privacidade.

O terceiro piso oferece um terraço de topo, com espaço preparado para instalação de jacuzzi, proporcionando uma vista privilegiada e um ambiente exclusivo.

A moradia está equipada com elevador a servir todos os pisos, painéis solares, sistema de isolamento térmico exterior (capoto), ar condicionado, vidros duplos com corte térmico e estores elétricos com comando central, assegurando eficiência energética, conforto e modernidade.

AlgarveProperty.com - AMI: 2196 - T.: 00351 289310310

Localização

Olhão, Olhão, Faro

Informação do anúncio

ID do anúncio 1538802
Referência Externa MB258335J
Atualizado em 11/01/2026 02:54:31
Algarve Property Lda AMI 2196
Referência do imóvel: MB258335J
Phone
Chamada para a rede fixa nacional
Algarve Property Lda AMI 2196
Referência do imóvel: MB258335J
Phone
Chamada para a rede fixa nacional
1 / 19
Moradia T3 para Venda em Olhão Foto 1
Moradia T3 para Venda em Olhão Foto 2
Moradia T3 para Venda em Olhão Foto 3
Moradia T3 para Venda em Olhão Foto 4
Moradia T3 para Venda em Olhão Foto 5
Moradia T3 para Venda em Olhão Foto 6
Moradia T3 para Venda em Olhão Foto 7
Moradia T3 para Venda em Olhão Foto 8
Moradia T3 para Venda em Olhão Foto 9
Moradia T3 para Venda em Olhão Foto 10
Moradia T3 para Venda em Olhão Foto 11
Moradia T3 para Venda em Olhão Foto 12
Moradia T3 para Venda em Olhão Foto 13
Moradia T3 para Venda em Olhão Foto 14
Moradia T3 para Venda em Olhão Foto 15
Moradia T3 para Venda em Olhão Foto 16
Moradia T3 para Venda em Olhão Foto 17
Moradia T3 para Venda em Olhão Foto 18
Moradia T3 para Venda em Olhão Foto 19
Moradia T3 para Venda em Olhão
Clicky