Apartamento T3 para Venda em Esgueira
450.000 €
Tipo
Apartamento
Negócio
Venda
Ano de Construção
2025
Quartos
3
Casas de Banho
4
Área Útil
136 m²
Certificado Energético
B
Área do Terreno
44 m²
Apartamento T3 em Esgueira de 136,00 m²
Apartamento T3 Duplex em Esgueira
Apartamento de áreas generosas, distribuído por 2 pisos, localizado numa zona residencial tranquila.
A poucos minutos do centro de Aveiro e próximo de comércio, serviços e transportes. Bons acessos à A25, com ligação à A1, A17 e A8. Localizado a cerca de 15 minutos das praias da Barra e Costa Nova e a poucos minutos da estação ferroviária de Aveiro.
Áreas:
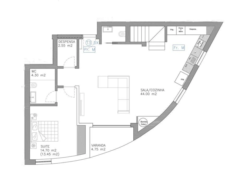
•136,41m2 de área habitável situado no 1.º Piso.
•Dois lugares de estacionamentos na cave com 21,57m2.
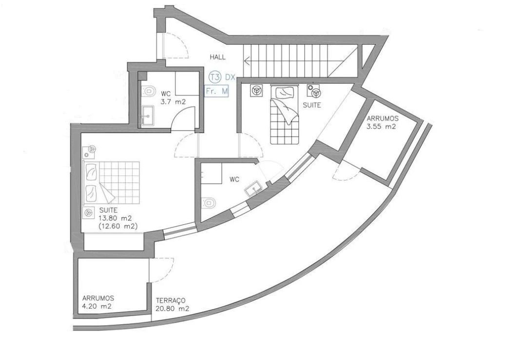
•Terraço na cobertura com 20,80m2.
•Varandas com 4,75m2.
•Arrumo na cobertura e cave com 9,85m2.
Distribuição 1.º Piso:
•1 quarto suite, equipado com roupeiro embutido, quarto banho completo.
•Cozinha e sala em open space.
•Despensa
Distribuição 2.º Piso:
• 2 quartos suites, equipados com roupeiros embutidos, quarto banho completo.
Equipamentos:
•Caixilharia em alumínio de corte térmico série LT, vidro duplo Stadip + caixa de ar + Planitherm.
•Estores elétricos automatizados.
•Estores térmicos.
•Ar condicionado, em todas as divisões, marca Bosh.
•Cozinha equipada com micro-ondas; forno; placa; exaustor e máquina de lavar louça, tudo marca Bosh.
•Aquecimento das águas por bomba de calor marca Termobrasa sem necessidade de troca do ânodo de magnésio.
•Louças sanitárias suspensas da Sanitana modelo Ruby, tampo da sanita com queda amortecida.
•Base de duche marca Planstone.
•Torneira e chuveiro marca Grohe.
•Pré-instalação de painéis fotovoltaicos.
•Pré-instalação para carregamento de viaturas elétricas.
•Pavimentos, na generalidade, em flutuante Vinílico, nas casas de banho revestimento cerâmico.
#ref: 154611
Apartamento de áreas generosas, distribuído por 2 pisos, localizado numa zona residencial tranquila.
A poucos minutos do centro de Aveiro e próximo de comércio, serviços e transportes. Bons acessos à A25, com ligação à A1, A17 e A8. Localizado a cerca de 15 minutos das praias da Barra e Costa Nova e a poucos minutos da estação ferroviária de Aveiro.
Áreas:
•136,41m2 de área habitável situado no 1.º Piso.
•Dois lugares de estacionamentos na cave com 21,57m2.
•Terraço na cobertura com 20,80m2.
•Varandas com 4,75m2.
•Arrumo na cobertura e cave com 9,85m2.
Distribuição 1.º Piso:
•1 quarto suite, equipado com roupeiro embutido, quarto banho completo.
•Cozinha e sala em open space.
•Despensa
Distribuição 2.º Piso:
• 2 quartos suites, equipados com roupeiros embutidos, quarto banho completo.
Equipamentos:
•Caixilharia em alumínio de corte térmico série LT, vidro duplo Stadip + caixa de ar + Planitherm.
•Estores elétricos automatizados.
•Estores térmicos.
•Ar condicionado, em todas as divisões, marca Bosh.
•Cozinha equipada com micro-ondas; forno; placa; exaustor e máquina de lavar louça, tudo marca Bosh.
•Aquecimento das águas por bomba de calor marca Termobrasa sem necessidade de troca do ânodo de magnésio.
•Louças sanitárias suspensas da Sanitana modelo Ruby, tampo da sanita com queda amortecida.
•Base de duche marca Planstone.
•Torneira e chuveiro marca Grohe.
•Pré-instalação de painéis fotovoltaicos.
•Pré-instalação para carregamento de viaturas elétricas.
•Pavimentos, na generalidade, em flutuante Vinílico, nas casas de banho revestimento cerâmico.
#ref: 154611
Localização
Esgueira, Aveiro, Aveiro
Informação do anúncio
ID do anúncio
1545063
Referência Externa
154611
Atualizado em
25/04/2026 23:26:44
Apartamento T3 para Venda em Esgueira
Vídeo