Terreno para Venda em Algueirão-Mem Martins
750.000 €
Tipo
Terreno
Negócio
Venda
Ano de Construção
2024
Certificado Energético
N/A
Área do Terreno
7023 m²
Terreno com PiP aprovado | 2.400m2 de Construção acima do solo | vista Serra Sintra
Senhor Construtor / Senhor Promotor:
Escolha comprar este Terreno urbano com 7.023m2 (área de solo), com PiP aprovado para construção de 2.400m2 de construção acima do solo e vista Serra Sintra.
Aqui poderá construir um Condomínio Privado com moradias.
E que tal um condomínio de Residências Sénior?
+++++++++++++++++++++++++++++++++++++++++++++++++++++++++++++++++++++++++++++++++
Gostaria de viver num condomínio privado com os seus 11 ou 5 melhores amigos? Esta é a oportunidade!
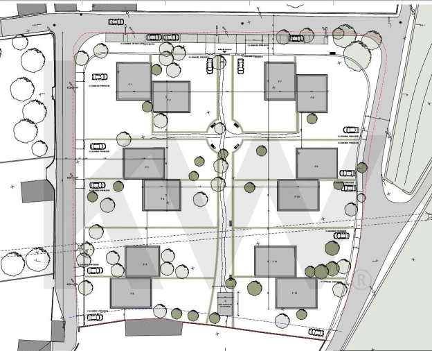
O PiP aprovado trata da viabilidade de construção de um "condomínio" composto por 12 moradias unifamiliares agrupadas em seis pares de moradias geminadas de dois pisos, com uma área bruta de construção de aproximadamente 200 m2 (cada) e com jardim, em Propriedade Horizontal (PH).
É possível serem apenas 6 moradias.
O terreno é um prédio urbano inserido na ARU simples de Algueirão / Mem Martins e Rio de Mouro, em localidade composta por várias zonas delimitadas.
O Terreno fica em Mem Martins, com vista da Serra de Sintra, numa zona bem tranquila com terrenos amplos e quintas e árvores, na zona menos densa de Mem Martins: é o ultimo lote, o último terreno virgem!
Depois desta construção, não vai acontecer mais nada ali.
«Quando passamos por Mem Martins, de repente aquilo é um paraíso»:
O nosso terreno é um quadrado com 3 frentes de rua e cada casa terá acesso directo à via pública; tem árvores pequenas (que podem ser tiradas) e tem umas belas azinheiras antigas que confinam com uma estrada de terra; estamos no meio de tudo, à porta de 2 autoestradas.
Características:
Área de Solo com 7.023m2 (7.000m2 a dividir por 12 = 583m2).
Área Bruta de Construção de 2.465m2 acima do solo, eventuais caves destinadas a estacionamento automóvel.
Por definir no PiP a área de permeabilização, sendo o índice de permeabilidade de 30%.
Em cada "lote" poderá construir-se uma piscina grande ou uma piscina pequena; também se poderá optar por uma piscina comum.
Existem pré instalações na rua (electricidade, etc.).
A operação urbanística está sujeita à apresentação de um pedido de licenciamento de obras de construção e de um pedido de licenciamento de obras de urbanização, devendo estes pedidos ser apresentados simultaneamente.
O deferimento do pedido de licenciamento de obras de edificação do condomínio só poderá ocorrer após o deferimento do pedido de licenciamento de obras de urbanização e a sua autorização de utilização só poderá ser concedida depois de recepcionadas provisoriamente as obras de urbanização.
+++++++++++++++++++++++++++++++++++++++++++++++++++++++++++++++++++
Aqui, vai poder viver num condomínio privado com boa vista para a mágica Serra de Sintra, a 10 minutos de Cascais e das Praias, a 20 minutos de carro de Lisboa e a 30 minutos do Aeroporto de Lisboa (Humberto Delgado).
Mem Martins é uma localidade portuguesa pertencente à vila e freguesia de Algueirão, Município de Sintra, distrito de Lisboa.
Sintra é uma encantadora Villa portuguesa no distrito e área metropolitana de Lisboa, integrando a sua parte norte (Grande Lisboa), situada dentro das colinas da Serra de Sintra. Escondidos entre essas colinas cobertas de pinheiros estão palácios extravagantes, mansões luxuosas e ruínas de um antigo castelo. A variedade de fascinantes edifícios históricos e atrações encantadoras transformam esta localização num lugar mágico, onde se pode desfrutar da Natureza na sua plenitude. Este anúncio foi efetuado por uma rotina informática, todos os dados carecem de validação com a equipa comercial.
Escolha comprar este Terreno urbano com 7.023m2 (área de solo), com PiP aprovado para construção de 2.400m2 de construção acima do solo e vista Serra Sintra.
Aqui poderá construir um Condomínio Privado com moradias.
E que tal um condomínio de Residências Sénior?
+++++++++++++++++++++++++++++++++++++++++++++++++++++++++++++++++++++++++++++++++
Gostaria de viver num condomínio privado com os seus 11 ou 5 melhores amigos? Esta é a oportunidade!
O PiP aprovado trata da viabilidade de construção de um "condomínio" composto por 12 moradias unifamiliares agrupadas em seis pares de moradias geminadas de dois pisos, com uma área bruta de construção de aproximadamente 200 m2 (cada) e com jardim, em Propriedade Horizontal (PH).
É possível serem apenas 6 moradias.
O terreno é um prédio urbano inserido na ARU simples de Algueirão / Mem Martins e Rio de Mouro, em localidade composta por várias zonas delimitadas.
O Terreno fica em Mem Martins, com vista da Serra de Sintra, numa zona bem tranquila com terrenos amplos e quintas e árvores, na zona menos densa de Mem Martins: é o ultimo lote, o último terreno virgem!
Depois desta construção, não vai acontecer mais nada ali.
«Quando passamos por Mem Martins, de repente aquilo é um paraíso»:
O nosso terreno é um quadrado com 3 frentes de rua e cada casa terá acesso directo à via pública; tem árvores pequenas (que podem ser tiradas) e tem umas belas azinheiras antigas que confinam com uma estrada de terra; estamos no meio de tudo, à porta de 2 autoestradas.
Características:
Área de Solo com 7.023m2 (7.000m2 a dividir por 12 = 583m2).
Área Bruta de Construção de 2.465m2 acima do solo, eventuais caves destinadas a estacionamento automóvel.
Por definir no PiP a área de permeabilização, sendo o índice de permeabilidade de 30%.
Em cada "lote" poderá construir-se uma piscina grande ou uma piscina pequena; também se poderá optar por uma piscina comum.
Existem pré instalações na rua (electricidade, etc.).
A operação urbanística está sujeita à apresentação de um pedido de licenciamento de obras de construção e de um pedido de licenciamento de obras de urbanização, devendo estes pedidos ser apresentados simultaneamente.
O deferimento do pedido de licenciamento de obras de edificação do condomínio só poderá ocorrer após o deferimento do pedido de licenciamento de obras de urbanização e a sua autorização de utilização só poderá ser concedida depois de recepcionadas provisoriamente as obras de urbanização.
+++++++++++++++++++++++++++++++++++++++++++++++++++++++++++++++++++
Aqui, vai poder viver num condomínio privado com boa vista para a mágica Serra de Sintra, a 10 minutos de Cascais e das Praias, a 20 minutos de carro de Lisboa e a 30 minutos do Aeroporto de Lisboa (Humberto Delgado).
Mem Martins é uma localidade portuguesa pertencente à vila e freguesia de Algueirão, Município de Sintra, distrito de Lisboa.
Sintra é uma encantadora Villa portuguesa no distrito e área metropolitana de Lisboa, integrando a sua parte norte (Grande Lisboa), situada dentro das colinas da Serra de Sintra. Escondidos entre essas colinas cobertas de pinheiros estão palácios extravagantes, mansões luxuosas e ruínas de um antigo castelo. A variedade de fascinantes edifícios históricos e atrações encantadoras transformam esta localização num lugar mágico, onde se pode desfrutar da Natureza na sua plenitude. Este anúncio foi efetuado por uma rotina informática, todos os dados carecem de validação com a equipa comercial.
Localização
Algueirão-Mem Martins, Sintra, Lisboa
Informação do anúncio
ID do anúncio
1550730
Referência Externa
KWPT-026340
Atualizado em
27/04/2026 00:04:14
Terreno para Venda em Algueirão-Mem Martins
Vídeo