Armazém T2 Venda em Montijo e Afonsoeiro,Montijo
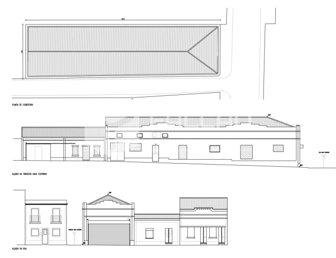
Apresenta-se uma excelente oportunidade de investimento imobiliário no coração do Montijo, situada na Rua Gago Coutinho n.º 28 e 30 e Travessa Gago Coutinho n.º 2 e 4. Trata-se de um edifício antigo, inserido em plena zona ARU (Área de Reabilitação Urbana), beneficiando de um enquadramento urbanístico favorável à reabilitação e valorização do património edificado.
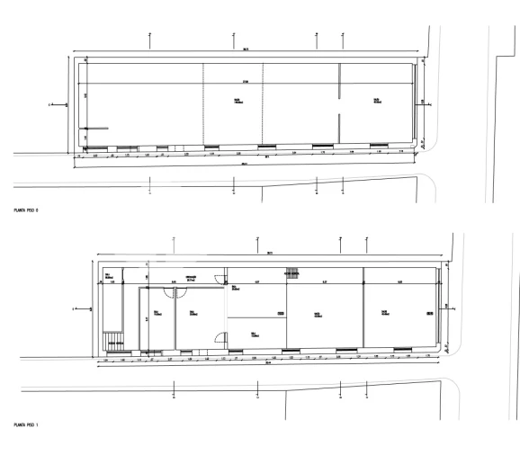
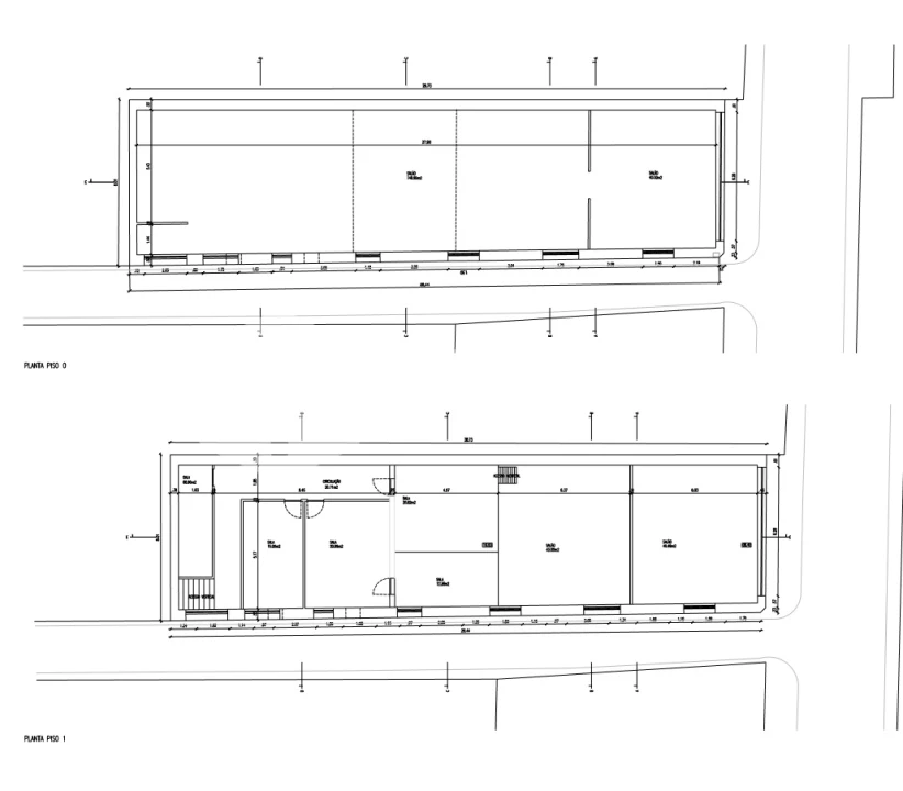
O imóvel teve originalmente uso habitacional, tendo sido posteriormente adaptado a armazém/indústria, encontrando-se atualmente devoluto e sem funcionalidade. Dispõe de PIP aprovado (PIP 48/19-E), o que confere segurança e viabilidade ao desenvolvimento de um programa de habitação multifamiliar, permitindo a construção de 4 fogos habitacionais duplex de tipologia T2.
Este projeto representa uma aposta sólida num mercado residencial em crescimento, numa localização central, com elevada procura para habitação própria e arrendamento, beneficiando da proximidade a comércio, serviços, transportes e acessos rápidos a Lisboa.
Quadro Sinóptico dos Fogos Projetados
- Fração A – Duplex T2
Área útil total: 88,20 m²
Área bruta: 114,40 m²
- Fração B – Duplex T2
Área útil total: 87,85 m²
Área bruta: 110,68 m²
- Fração C – Duplex T2
Área útil total: 88,05 m²
Área bruta: 109,30 m²
- Fração D – Duplex T2
Área útil total: 87,40 m²
Área bruta: 113,26 m²
A combinação entre localização privilegiada, enquadramento em ARU, PIP aprovado e tipologias equilibradas torna este imóvel particularmente atrativo para promotores, investidores ou construtores que procurem um projeto de reabilitação com forte potencial de valorização e retorno.
Porque deve escolher a Falcão Real Estate:
Optar pela nossa agência é escolher excelência, confiança e resultados. Com uma equipa dedicada, atendimento personalizado e uma abordagem inovadora, estamos comprometidos em tornar a sua experiência imobiliária única e bem-sucedida. Do primeiro contato à realização do seu sonho, estamos aqui para ajudá-lo(a) a cada passo do caminho. Escolha qualidade, escolha a Falcão Real Estate!