Moradia T3 para Venda em Salamonde
535.000 €
Tipo
Moradia
Negócio
Venda
Quartos
3
Casas de Banho
1
Área Bruta
251 m²
Área Útil
251 m²
Certificado Energético
C
Área do Terreno
2060 m²
Descrição
Identificação do imóvel: ZMPT584211
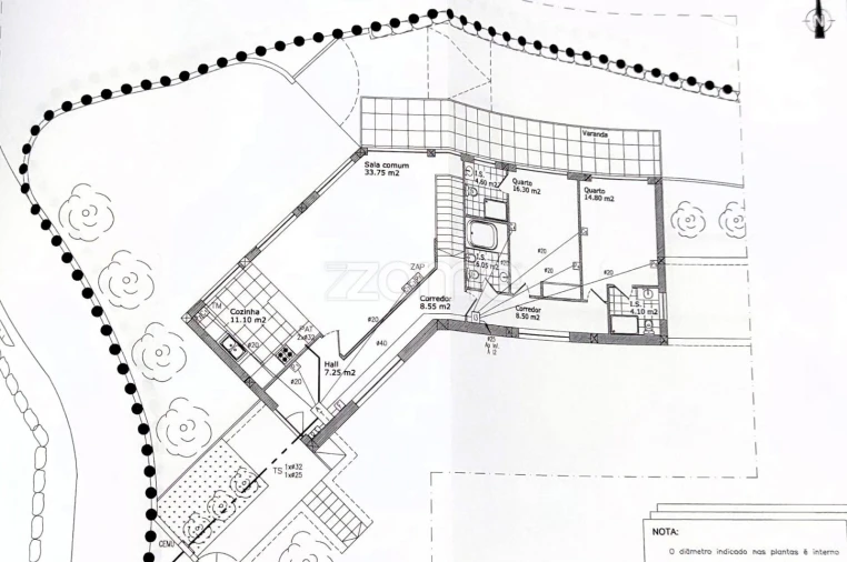
Apresentamos uma exclusiva moradia T2+1 em pedra granítica, situada em Salamonde, inserida num cenário natural de rara beleza, com magníficas vistas panorâmicas sobre a serra.
Um imóvel que alia autenticidade, conforto moderno e uma forte componente de investimento turístico, ideal para quem procura mais do que uma casa: um estilo de vida e uma oportunidade de negócio.
Implantada num terreno com cerca de 760 m2, com um terreno rustico extra de 1.300 m², esta propriedade oferece excelente potencial para desenvolvimento turístico, nomeadamente a instalação de bungalows ou unidades de alojamento local, tirando partido da envolvente natural e da crescente procura por turismo de natureza e bem-estar.
Características da Moradia
A habitação destaca-se pela qualidade construtiva, acabamentos modernos e uma distribuição funcional dos espaços:
- Sala ampla e contemporânea, com grandes vãos envidraçados e vistas privilegiadas para a serra, proporcionando uma ligação permanente com a natureza
- Cozinha moderna e equipada com forno, placa e exaustor
- Duas suites confortáveis, pensadas para o máximo de privacidade e conforto
- Casa de banho de apoio
No rés do chão, encontra-se um amplo salão multifuncional, ideal para momentos de convívio, eventos familiares ou lazer, complementado por uma terceira suite, perfeita para receber convidados ou potenciar a vertente turística do imóvel.
Conforto, Tecnologia e Segurança
- Ar condicionado por conduta em toda a casa
- Estores elétricos
- Caixilharias em PVC, garantindo excelente isolamento térmico e acústico
- Sistema de alarme e câmaras de video vigilância, assegurando total tranquilidade e segurança
- Furo de água
Oportunidade Única
Esta moradia representa uma combinação rara entre habitação de qualidade, enquadramento natural excecional e elevado potencial de valorização. Ideal como residência permanente, casa de férias ou investimento turístico diferenciador. Mais do que uma casa, este é o lugar onde o conforto, a natureza e o investimento se encontram.
Aqui, compra o seu um sonho.
3 razões para comprar com a Zome
+ acompanhamento
Com uma preparação e experiência única no mercado imobiliário, os consultores Zome põem toda a sua dedicação em dar-lhe o melhor acompanhamento, orientando-o com a máxima confiança, na direção certa das suas necessidades e ambições.
Daqui para a frente, vamos criar uma relação próxima e escutar com atenção as suas expectativas, porque a nossa prioridade é a sua felicidade! Porque é importante que sinta que está acompanhado, e que estamos consigo sempre.
+ simples
Os consultores Zome têm uma formação única no mercado, ancorada na partilha de experiência prática entre profissionais e fortalecida pelo conhecimento de neurociência aplicada que lhes permite simplificar e tornar mais eficaz a sua experiência imobiliária.
Deixe para trás os pesadelos burocráticos porque na Zome encontra o apoio total de uma equipa experiente e multidisciplinar que lhe dá suporte prático em todos os aspetos fundamentais, para que a sua experiência imobiliária supere as expectativas.
+ feliz
O nosso maior valor é entregar-lhe felicidade!
Liberte-se de preocupações e ganhe o tempo de qualidade que necessita para se dedicar ao que lhe faz mais feliz.
Agimos diariamente para trazer mais valor à sua vida com o aconselhamento fiável de que precisa para, juntos, conseguirmos atingir os melhores resultados.
Com a Zome nunca vai estar perdido ou desacompanhado e encontrará algo que não tem preço: a sua máxima tranquilidade!
É assim que se vai sentir ao longo de toda a experiência: Tranquilo, seguro, confortável e... FELIZ!
Notas:
1. Caso seja um consultor imobiliário, este imóvel está disponível para partilha de negócio. Não hesite em apresentar aos seus clientes compradores e fale connosco para agendar a sua visita.
2. Para maior facilidade na identificação deste imóvel, por favor, refira o respetivo ID ZMPT ou o respetivo agente que lhe tenha enviado a sugestão.
Apresentamos uma exclusiva moradia T2+1 em pedra granítica, situada em Salamonde, inserida num cenário natural de rara beleza, com magníficas vistas panorâmicas sobre a serra.
Um imóvel que alia autenticidade, conforto moderno e uma forte componente de investimento turístico, ideal para quem procura mais do que uma casa: um estilo de vida e uma oportunidade de negócio.
Implantada num terreno com cerca de 760 m2, com um terreno rustico extra de 1.300 m², esta propriedade oferece excelente potencial para desenvolvimento turístico, nomeadamente a instalação de bungalows ou unidades de alojamento local, tirando partido da envolvente natural e da crescente procura por turismo de natureza e bem-estar.
Características da Moradia
A habitação destaca-se pela qualidade construtiva, acabamentos modernos e uma distribuição funcional dos espaços:
- Sala ampla e contemporânea, com grandes vãos envidraçados e vistas privilegiadas para a serra, proporcionando uma ligação permanente com a natureza
- Cozinha moderna e equipada com forno, placa e exaustor
- Duas suites confortáveis, pensadas para o máximo de privacidade e conforto
- Casa de banho de apoio
No rés do chão, encontra-se um amplo salão multifuncional, ideal para momentos de convívio, eventos familiares ou lazer, complementado por uma terceira suite, perfeita para receber convidados ou potenciar a vertente turística do imóvel.
Conforto, Tecnologia e Segurança
- Ar condicionado por conduta em toda a casa
- Estores elétricos
- Caixilharias em PVC, garantindo excelente isolamento térmico e acústico
- Sistema de alarme e câmaras de video vigilância, assegurando total tranquilidade e segurança
- Furo de água
Oportunidade Única
Esta moradia representa uma combinação rara entre habitação de qualidade, enquadramento natural excecional e elevado potencial de valorização. Ideal como residência permanente, casa de férias ou investimento turístico diferenciador. Mais do que uma casa, este é o lugar onde o conforto, a natureza e o investimento se encontram.
Aqui, compra o seu um sonho.
3 razões para comprar com a Zome
+ acompanhamento
Com uma preparação e experiência única no mercado imobiliário, os consultores Zome põem toda a sua dedicação em dar-lhe o melhor acompanhamento, orientando-o com a máxima confiança, na direção certa das suas necessidades e ambições.
Daqui para a frente, vamos criar uma relação próxima e escutar com atenção as suas expectativas, porque a nossa prioridade é a sua felicidade! Porque é importante que sinta que está acompanhado, e que estamos consigo sempre.
+ simples
Os consultores Zome têm uma formação única no mercado, ancorada na partilha de experiência prática entre profissionais e fortalecida pelo conhecimento de neurociência aplicada que lhes permite simplificar e tornar mais eficaz a sua experiência imobiliária.
Deixe para trás os pesadelos burocráticos porque na Zome encontra o apoio total de uma equipa experiente e multidisciplinar que lhe dá suporte prático em todos os aspetos fundamentais, para que a sua experiência imobiliária supere as expectativas.
+ feliz
O nosso maior valor é entregar-lhe felicidade!
Liberte-se de preocupações e ganhe o tempo de qualidade que necessita para se dedicar ao que lhe faz mais feliz.
Agimos diariamente para trazer mais valor à sua vida com o aconselhamento fiável de que precisa para, juntos, conseguirmos atingir os melhores resultados.
Com a Zome nunca vai estar perdido ou desacompanhado e encontrará algo que não tem preço: a sua máxima tranquilidade!
É assim que se vai sentir ao longo de toda a experiência: Tranquilo, seguro, confortável e... FELIZ!
Notas:
1. Caso seja um consultor imobiliário, este imóvel está disponível para partilha de negócio. Não hesite em apresentar aos seus clientes compradores e fale connosco para agendar a sua visita.
2. Para maior facilidade na identificação deste imóvel, por favor, refira o respetivo ID ZMPT ou o respetivo agente que lhe tenha enviado a sugestão.
Localização
Rua Chã do Carro
Salamonde, Vieira do Minho, Braga
A localização exacta do imóvel não está disponível. O mapa apresenta a zona aproximada.
Informação do anúncio
ID do anúncio
1567833
Referência Externa
ZMPT584211
Atualizado em
26/04/2026 06:03:05
Moradia T3 para Venda em Salamonde