Voltar
Moradia T3 para Venda em São Mamede de Infesta e Senhora da Hora Foto 1
Moradia T3 para Venda em São Mamede de Infesta e Senhora da Hora Foto 2
Moradia T3 para Venda em São Mamede de Infesta e Senhora da Hora Foto 3
Moradia T3 para Venda em São Mamede de Infesta e Senhora da Hora Foto 4
Moradia T3 para Venda em São Mamede de Infesta e Senhora da Hora Foto 5

Moradia T3 para Venda em São Mamede de Infesta e Senhora da Hora

277.500 €

Tipo
Moradia
Negócio
Venda
Quartos
3
Casas de Banho
3
Área Bruta
294 m²
Área Útil
294 m²
Garagem
2 lugares
Condição
Ruína
Certificado Energético
Isento
Área do Terreno
508 m²

Descrição

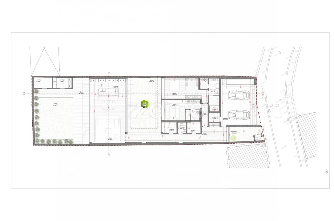
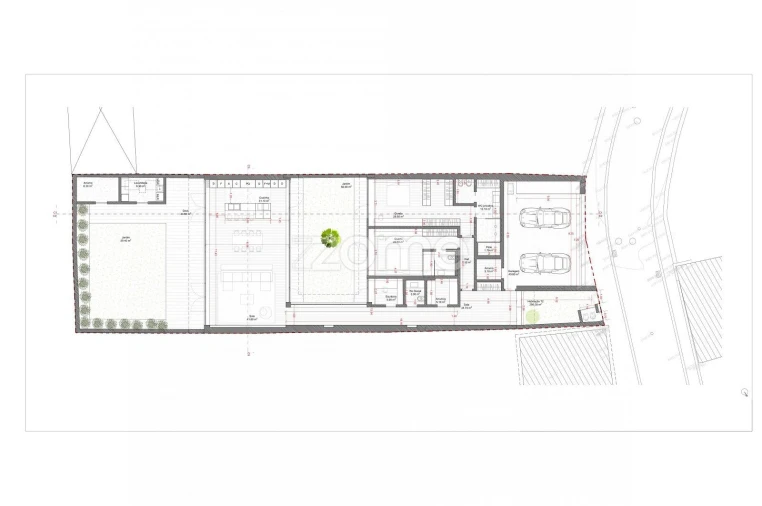
Identificação do imóvel: ZMPT584482

Descrição do imóvel:

Terreno com ruína e projecto aprovado de moradia térrea. S. Mamede

Localização e envolvente:
Localização na RuaCentral do Seixo, 454 / 458 em S. Mamede de Infesta , Matosinhos em área urbana. Zona calma. Fácil acesso/distribuição automóvel e pedonal.
Na envolvente existe oferta de comércio e serviços. Próxima à Via Norte e Pavilhão Municipal Padrão da Légua.

Prédio (de acordo com a Caderneta Predial Urbana):
“Tipo de Prédio: Prédio em Prop Total sem Andares ou Div. Susc. de Utiliz. Independente. Descrição: Casa de 1 pavimento e quintal com 4 divisões e 4 vãos. Afectação: Habitação Nº de piso: 1 Tipologia/Divisões: 4”

Projecto Aprovado – Quadro Sinóptico:
- Área do terreno, de acordo com a CRP: 507,90m2
- Área do terreno de acordo com o levantamento topográfico: 507,90m2
- Área total de implantação: 204,90m2
- Área de impermeabilização: 340,05m2
- Área de construção destinada a habitação: 294,90m2
- Área total de construção acima da cota do solo: 309, 90m2
- Área total de construção abaixo da cota do solo: 0,0m2
- Nº de pisos acima da cota do solo: 1
- Nº de pisos abaixo da cota do solo: 0
- Cércea: 3,50m
- Índice de ocupação acima da cota do solo: 0,91
- Índice de impermeabilização: 0,66
- Volume de construção: 929,70m3
- Uso: Habitação
- Nº de fogos: 1
- Nº de lugares de estacionamento privado (automóvel): 2

Principais características:
- terreno com ruína
- projecto aprovado para construção de moradia térrea T2 ou T3
- moradia térrea com 2 lugares de estacionamento
- projectos de especialidades prontos para serem submetidos

P.D.M.
“SECÇÃO II
Espaços centrais
Artigo 34.º Identificação
Os espaços centrais encontram-se delimitados na Planta de Ordenamento — I e traduzem o modelo de ocupação urbana preconizado, correspondendo às áreas de maior densidade e compacidade

Artigo 35.º Utilizações e índices
1 — Nos espaços centrais são permitidas todas as utilizações com exceção das atividades logísticas nas tipologias de ator definidas no anexo V, do presente regulamento.
2 — Sem prejuízo do disposto no artigo seguinte, são aplicáveis os seguintes índices máximos: a) Índice de impermeabilização do solo: 0,7; b) Índice de utilização acima do solo: 0,8.
3 — Para efeitos de aplicação do disposto no artigo 92.º, é fixada a edificabilidade abstrata correspondente a 0,7 m2 a.c./m2.
4 — Nas operações de loteamento e nas Áreas Urbanas Disponíveis a Consolidar não devem ser ultrapassados os índices máximos definidos no n.º 2.
5 — Nas alterações a licenças de loteamento, com alvarás emitidos em data anterior à publicação da 1.ª revisão do PDMM, por razões de integração do edificado em morfotipologia do tecido urbano envolvente, podem ser ultrapassados os índices máximos definidos no n.º 2 do presente artigo, aplicando-se, neste caso, o disposto no n.º 1 do artigo 26.º

Artigo 36.º Altura máxima da fachada
1 — Nas novas edificações ou ampliação das existentes, é sempre admitida uma altura máxima de fachada correspondente a 75 % da largura do arruamento que confronta com a parcela, tendo como referência os limites do espaço público.
2 — Excecionam-se do número anterior as seguintes situações:
a) Admite -se a colmatação entre duas edificações de altura superior a 75 % da largura do arruamento, desde que a extensão da frente urbana a colmatar seja menor do que a altura da fachada do edifício mais baixo que excede 75 % da largura do arruamento, sendo que, nesta colmatação, a altura de fachada fica definida pela do edifício mais baixo que excede 75 % largura do arruamento;
b) No caso da altura dominante das fachadas da frente urbana em que se insere a nova edificação ou ampliação da existente, ser superior aos 75 % da largura do arruamento, a altura máxima da fachada é definida por essa altura dominante das fachadas;
c) Quando estiver em causa a salvaguarda de valores patrimoniais, como tal identificados na Planta de Ordenamento — V e no n.º 2 do artigo 72.º, ou a manutenção de morfotipologias de imagem urbana estabilizada, são ponderadas alturas de fachada diferentes das resultantes da aplicação do número e alíneas anteriores deste artigo, desde que demonstrada a correta integração urbanística na frente urbana onde o prédio se localiza.
3 — (Revogado.)
4 — Nas novas edificações, ou na ampliação das existentes, não se admitem andares recuados, para além da altura máxima da fachada, exceto quando tal seja dominante na frente urbana onde a operação urbanística se insere, ou ainda, quando sirva de colmatação a empena existente.
5 — Para efeitos de aferição da largura do arruamento, os limites do espaço público resultam dos alinhamentos dominantes, da frente urbana em que o prédio se integra e da frente ou frentes urbanas opostas, na extensão estritamente confrontante com a frente urbana em que o prédio se integra, exceto nas situações em que a CMM tenha estabelecido ou venha a estabelecer novos alinhamentos, considerando:
a) O espaço público destinado à circulação de pessoas e ou veículos, compreendendo faixas de rodagem, separadores, baias de estacionamento e passeios, excluindo alargamentos excecionais tais como rotundas ou outras morfologias de separador, espaços verdes, praças e jardins ou
outros espaços de estadia e lazer, sem prejuízo da alínea seguinte;
b) Em caso de existência de praça ou outro espaço de estadia e lazer, que se destine igualmente à circulação de pessoas, mas sem definição de passeio, para aferição da largura do arruamento, são considerados 2,25 metros de largura como passeio.”

Pontos de interesse:
- a 400m do Laboratório Nacional de Energia e Geologia
- a 400m o Continente Bom Dia Padrão da Légua
- a 400 do Burger King Monte dos Burgos
- a 550m do Lidl - Monte dos Burgos
- a 700m da Igreja Paroquial do Padrão da Légua
- a 750m do Auditório Padrão da Légua
- a 800m do Pavilhão Municipal Padrão da Légua
- a 1,0km do Padroense Futebol Clube
- a 1,0km da Farmácia Padrão da Légua
- a 2,6km do Colégio Luso Francês
- a 3,2km da Universidade Fernando Pessoa

Transportes e acessos:
- a 260m da Via Norte
- a 500m do BUS (estação Fogueteiros (Sul) - linhas 3M, 508, 602 e 5002)
- 6,20km da Ponte da Arrábida
- a 8,2km do Aeroporto Francisco Sá Carneiro
- a 8,6km da Ponte do Freixo

Áreas (de acordo com a Caderneta Predial Urbana):
- Área total do terreno: 507,9000 m2
- Área de implantação: 89,0000 m2
- Área bruta de construção: 89,0000 m2
- Área bruta dependente: 14,0000 m2
- Área bruta privativa: 75,0000 m2

NOTA: para maior facilidade na identificação deste imóvel, por favor, refira o respectivo ID. Em caso de agendamento de visita, faça-se acompanhar de um documento de identificação. Muito obrigado!

***

3 razões para comprar com a Zome

+ acompanhamento

Com uma preparação e experiência única no mercado imobiliário, os consultores Zome põem toda a sua dedicação em dar-lhe o melhor acompanhamento, orientando-o com a máxima confiança, na direção certa das suas necessidades e ambições.

Daqui para a frente, vamos criar uma relação próxima e escutar com atenção as suas expectativas, porque a nossa prioridade é a sua felicidade! Porque é importante que sinta que está acompanhado, e que estamos consigo sempre.

+ simples

Os consultores Zome têm uma formação única no mercado, ancorada na partilha de experiência prática entre profissionais e fortalecida pelo conhecimento de neurociência aplicada que lhes permite simplificar e tornar mais eficaz a sua experiência imobiliária.

Deixe para trás os pesadelos burocráticos porque na Zome encontra o apoio total de uma equipa experiente e multidisciplinar que lhe dá suporte prático em todos os aspetos fundamentais, para que a sua experiência imobiliária supere as expectativas.

+ feliz

O nosso maior valor é entregar-lhe felicidade!

Liberte-se de preocupações e ganhe o tempo de qualidade que necessita para se dedicar ao que lhe faz mais feliz.

Agimos diariamente para trazer mais valor à sua vida com o aconselhamento fiável de que precisa para, juntos, conseguirmos atingir os melhores resultados.

Com a Zome nunca vai estar perdido ou desacompanhado e encontrará algo que não tem preço: a sua máxima tranquilidade!

É assim que se vai sentir ao longo de toda a experiência: Tranquilo, seguro, confortável e... FELIZ!

Notas:
1. Caso seja um consultor imobiliário, este imóvel está disponível para partilha de negócio. Não hesite em apresentar aos seus clientes compradores e fale connosco para agendar a sua visita.
2. Para maior facilidade na identificação deste imóvel, por favor, refira o respetivo ID ZMPT ou o respetivo agente que lhe tenha enviado a sugestão.

Localização

Rua Central do Seixo - Pares de 34 a 596

São Mamede de Infesta e Senhora da Hora, Matosinhos, Porto

A localização exacta do imóvel não está disponível. O mapa apresenta a zona aproximada.

Informação do anúncio

ID do anúncio 1574120
Referência Externa ZMPT584482
Atualizado em 15/03/2026 07:04:42
ZOME Porto - Damião de Góis AMI 17432
Referência do imóvel: ZMPT584482
Phone
Chamada para a rede fixa nacional
ZOME Porto - Damião de Góis AMI 17432
Referência do imóvel: ZMPT584482
Phone
Chamada para a rede fixa nacional
1 / 19
Moradia T3 para Venda em São Mamede de Infesta e Senhora da Hora Foto 1
Moradia T3 para Venda em São Mamede de Infesta e Senhora da Hora Foto 2
Moradia T3 para Venda em São Mamede de Infesta e Senhora da Hora Foto 3
Moradia T3 para Venda em São Mamede de Infesta e Senhora da Hora Foto 4
Moradia T3 para Venda em São Mamede de Infesta e Senhora da Hora Foto 5
Moradia T3 para Venda em São Mamede de Infesta e Senhora da Hora Foto 6
Moradia T3 para Venda em São Mamede de Infesta e Senhora da Hora Foto 7
Moradia T3 para Venda em São Mamede de Infesta e Senhora da Hora Foto 8
Moradia T3 para Venda em São Mamede de Infesta e Senhora da Hora Foto 9
Moradia T3 para Venda em São Mamede de Infesta e Senhora da Hora Foto 10
Moradia T3 para Venda em São Mamede de Infesta e Senhora da Hora Foto 11
Moradia T3 para Venda em São Mamede de Infesta e Senhora da Hora Foto 12
Moradia T3 para Venda em São Mamede de Infesta e Senhora da Hora Foto 13
Moradia T3 para Venda em São Mamede de Infesta e Senhora da Hora Foto 14
Moradia T3 para Venda em São Mamede de Infesta e Senhora da Hora Foto 15
Moradia T3 para Venda em São Mamede de Infesta e Senhora da Hora Foto 16
Moradia T3 para Venda em São Mamede de Infesta e Senhora da Hora Foto 17
Moradia T3 para Venda em São Mamede de Infesta e Senhora da Hora Foto 18
Moradia T3 para Venda em São Mamede de Infesta e Senhora da Hora Foto 19
Clicky