Apartamento T3 para Venda em Arcozelo
495.000 €
Tipo
Apartamento
Negócio
Venda
Quartos
3
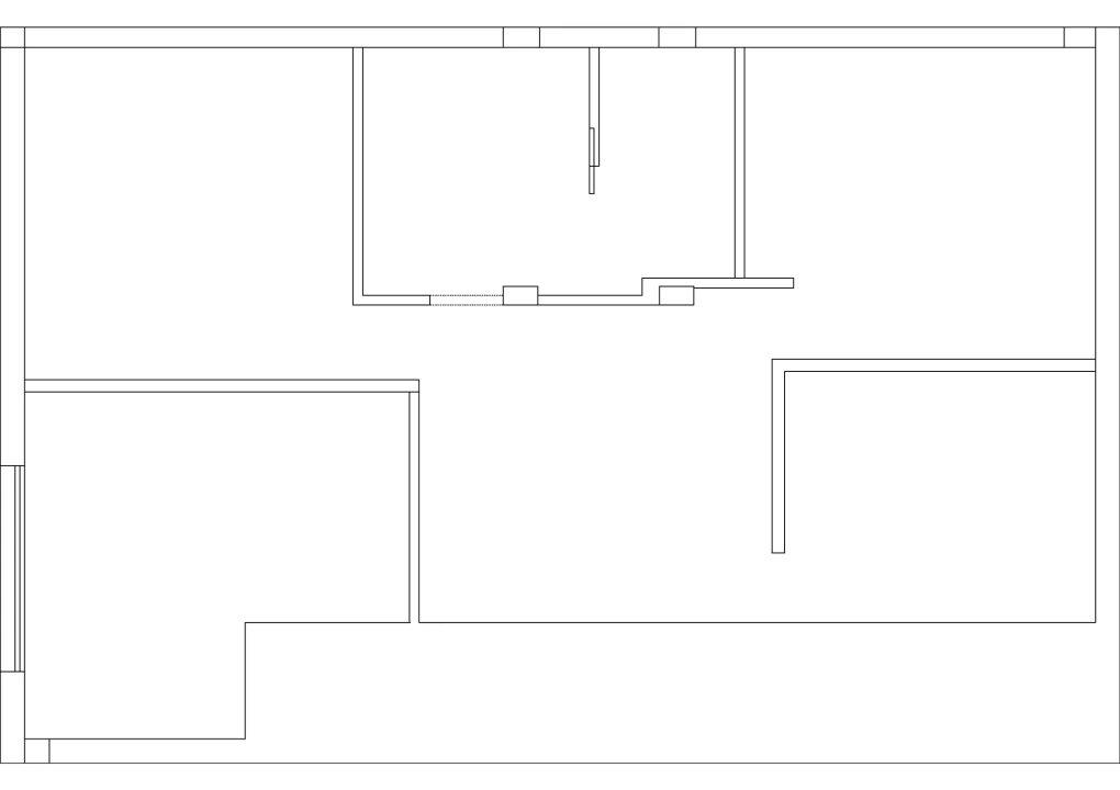
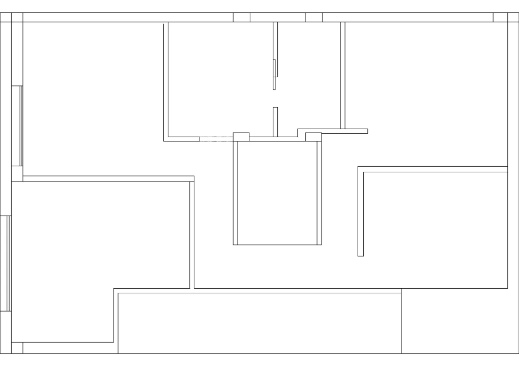
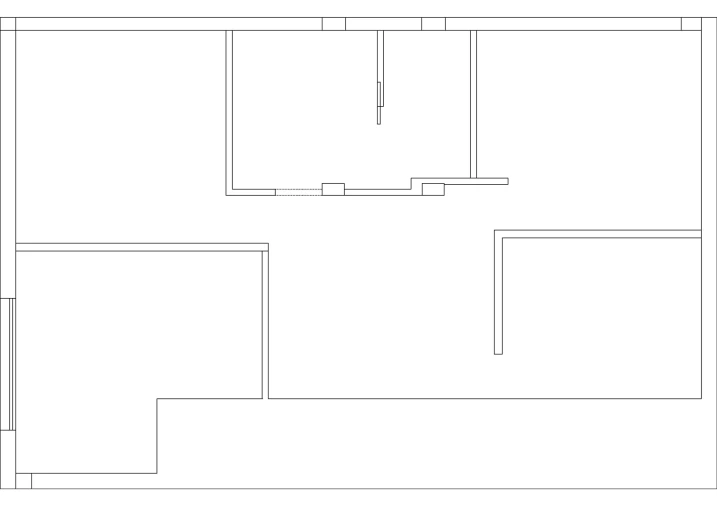
Área Bruta
185 m²
Área Útil
140 m²
Condição
Usado
Certificado Energético
B
Área do Terreno
15 m²
Apartamento T2+1 Venda em Arcozelo,Vila Nova de Gaia
Onde o Luxo encontra o Pôr do Sol: T2+1 Único na Granja com Vistas de Mar!
Já imaginou terminar o dia com o sol a pôr-se no horizonte do mar, no conforto da sua varanda? Este magnífico apartamento T2+1, situado num dos condomínios mais prestigiados da Granja, oferece uma experiência de vida irrepreensível.
Com uma generosa área bruta de 185 m², este imóvel destaca-se pelos seus acabamentos de luxo e uma fluidez de espaço pensada ao detalhe. A disposição solar Nascente-Poente garante luminosidade natural durante todo o dia, culminando numa magnífica varanda virada a poente com vista panorâmica de mar.
Destaques do Imóvel:
Área: 185 m² de construção de alta qualidade.
Conforto: 2 quartos espaçosos + 1 divisão versátil (escritório ou quarto extra).
Condomínio Privado: Ginásio totalmente equipado, balneários e parque infantil para os mais novos.
Garagem: Box fechada para 2 viaturas com excelente arrumação.
Viva a exclusividade de um condomínio fechado a poucos passos da praia. Venha conhecer o seu próximo refúgio.
MARQUE JÁ A SUA VISITA!
Ligue
221 132 739
A Solução Casa é uma empresa do setor imobiliário que atua no mercado de Mediação e Vendas de Imóveis há mais de 25 anos.
Com um padrão de seriedade na prestação de serviços imobiliários, procura realizar bons negócios com eficiência, proporcionando assim, tranquilidade aos seus clientes.
Criada originalmente para vender imóveis residenciais, ao longo dos anos a Solução Casa tem ampliado a sua atuação para outros segmentos do mercado, incluindo imóveis comerciais, industriais e de lazer em todo o país.
A nossa equipa de colaboradores é formada por profissionais experientes, com vasto conhecimento para sugerir as melhores alternativas. Além disso, dispomos de um sistema totalmente informatizado, o que permite uma maior agilidade na pesquisa e adequação do perfil do imóvel às solicitações do cliente.
Apoiada pelo profissionalismo e seriedade, a Solução Casa está colocada entre as maiores imobiliárias do Porto - Vila Nova de Gaia.
TODOS OS SERVIÇOS QUE DISPONIBILIZAMOS PARA GARANTIR UMA VENDA EFICAZ:
- Aconselhamento Imobiliário;
- Intermediação de Crédito:
* Entidade autorizada pelo Banco de Portugal 001348;
- Gabinete Jurídico;
- Gabinete de Marketing e Publicidade.
Prestamos um acompanhamento constante em todo o processo de compra ou venda do seu imóvel.
Já imaginou terminar o dia com o sol a pôr-se no horizonte do mar, no conforto da sua varanda? Este magnífico apartamento T2+1, situado num dos condomínios mais prestigiados da Granja, oferece uma experiência de vida irrepreensível.
Com uma generosa área bruta de 185 m², este imóvel destaca-se pelos seus acabamentos de luxo e uma fluidez de espaço pensada ao detalhe. A disposição solar Nascente-Poente garante luminosidade natural durante todo o dia, culminando numa magnífica varanda virada a poente com vista panorâmica de mar.
Destaques do Imóvel:
Área: 185 m² de construção de alta qualidade.
Conforto: 2 quartos espaçosos + 1 divisão versátil (escritório ou quarto extra).
Condomínio Privado: Ginásio totalmente equipado, balneários e parque infantil para os mais novos.
Garagem: Box fechada para 2 viaturas com excelente arrumação.
Viva a exclusividade de um condomínio fechado a poucos passos da praia. Venha conhecer o seu próximo refúgio.
MARQUE JÁ A SUA VISITA!
Ligue
221 132 739
A Solução Casa é uma empresa do setor imobiliário que atua no mercado de Mediação e Vendas de Imóveis há mais de 25 anos.
Com um padrão de seriedade na prestação de serviços imobiliários, procura realizar bons negócios com eficiência, proporcionando assim, tranquilidade aos seus clientes.
Criada originalmente para vender imóveis residenciais, ao longo dos anos a Solução Casa tem ampliado a sua atuação para outros segmentos do mercado, incluindo imóveis comerciais, industriais e de lazer em todo o país.
A nossa equipa de colaboradores é formada por profissionais experientes, com vasto conhecimento para sugerir as melhores alternativas. Além disso, dispomos de um sistema totalmente informatizado, o que permite uma maior agilidade na pesquisa e adequação do perfil do imóvel às solicitações do cliente.
Apoiada pelo profissionalismo e seriedade, a Solução Casa está colocada entre as maiores imobiliárias do Porto - Vila Nova de Gaia.
TODOS OS SERVIÇOS QUE DISPONIBILIZAMOS PARA GARANTIR UMA VENDA EFICAZ:
- Aconselhamento Imobiliário;
- Intermediação de Crédito:
* Entidade autorizada pelo Banco de Portugal 001348;
- Gabinete Jurídico;
- Gabinete de Marketing e Publicidade.
Prestamos um acompanhamento constante em todo o processo de compra ou venda do seu imóvel.
Localização
Arcozelo, Vila Nova de Gaia, Porto
Informação do anúncio
ID do anúncio
1577797
Referência Externa
8308
Atualizado em
23/01/2026 03:04:12
Apartamento T3 para Venda em Arcozelo