Terreno Urbano de 2062m2 com PROJETO APROVADO e licença de construção paga - Mafra
Terreno Urbano com área de 2062m2, com projeto aprovado e licença de construção paga para uma moradia unifamiliar T3 com piscina, dotado de excelente exposição solar e localização privilegiada a 30 minutos de Lisboa, apenas 5 minutos de Mafra e 10 minutos das praias da Ericeira.
Com uma envolvente de natureza e excelentes acessos, permite desfrutar do sossego da aldeia, tendo todo o tipo de comércio, serviços e escolas apenas a 5 minutos, para além da oferta cultural e desportiva disponível na Vila de Mafra.
O Projeto Aprovado, também inclui Projeto de Execução e Projeto Paisagístico com todos os detalhes construtivos e respectiva quantificação para uma orçamentação adequada da obra.
A Moradia projetada destaca-se pela sua perfeita integração no terreno, maximização da exposição solar e vivência do espaço em plena privacidade.
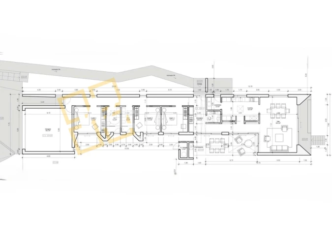
Com 240m2 de área de construção, dispõe de ampla garagem para 2 viaturas, 3 quartos, 3 casas de banho, cozinha com ligação à lavandaria e sala comum com vista desafogada sobre a zona ajardinada onde se integra a piscina, tendo no horizonte o vale verdejante.
Todos os espaços se interligam e comunicam com o exterior, proporcionando uma modulação da luminosidade natural e o usufruto dos espaços exteriores em simultâneo com as zonas sociais interiores, tudo em perfeita harmonia e funcionalidade.
Referencia 5977WM
* Todas as informações apresentadas não têm qualquer carácter vinculativo, não dispensa a confirmação por parte da mediadora, bem como a consulta da documentação do imóvel *
.
.
Procuramos proporcionar bons negócios e simplificar os processos aos nossos clientes. O nosso crescimento tem sido exponencial e sustentado.
.
.
Precisa de crédito habitação? Sem preocupações, nós tratamos de todo o processo até ao dia da escritura. Explique-nos a sua situação e nós procuramos o banco que lhe proporciona as melhores condições de financiamento.
.
.
Certificação energética? Se está a pensar vender ou arrendar o seu imóvel, saiba que o certificado energético é OBRIGATÓRIO. E nós em parceria, tratamos de tudo por si.
.
.
Mafra é um local de experiências e emoções; conheça a sua riqueza histórica e cultural, sabores e tradições. Visite os fantásticos monumentos, jardins e artesanato local.
Este site utiliza cookies. Ao navegar no site estará a consentir a sua utilização. Para mais informações sobre os cookies pode consultar a
política de privacidade.