Voltar
Moradia T4 para Venda em Caldas da Rainha - Santo Onofre e Serra do Bouro Foto 1
Moradia T4 para Venda em Caldas da Rainha - Santo Onofre e Serra do Bouro Foto 2
Moradia T4 para Venda em Caldas da Rainha - Santo Onofre e Serra do Bouro Foto 3
Moradia T4 para Venda em Caldas da Rainha - Santo Onofre e Serra do Bouro Foto 4
Moradia T4 para Venda em Caldas da Rainha - Santo Onofre e Serra do Bouro Foto 5

Moradia T4 para Venda em Caldas da Rainha - Santo Onofre e Serra do Bouro

749.000 €

Tipo
Moradia
Negócio
Venda
Ano de Construção
2023
Quartos
4
Casas de Banho
4
Área Bruta
255 m²
Área Útil
235 m²
Condição
Novo
Certificado Energético
A+
Área do Terreno
774 m²

Moradia Contemporânea T4 com Piscina – Costa de Prata

Moradia Contemporânea T4 com Piscina Costa de Prata

Descubra o conforto moderno e a elegância costeira nesta moradia T4 de design contemporâneo, localizada na prestigiada Costa de Prata, entre a Praia da Foz do Arelho e a Baía de São Martinho do Porto. Concluída em 2023, esta propriedade combina estilo atual, construção de elevada qualidade e excelente eficiência energética.

Destaques do Imóvel

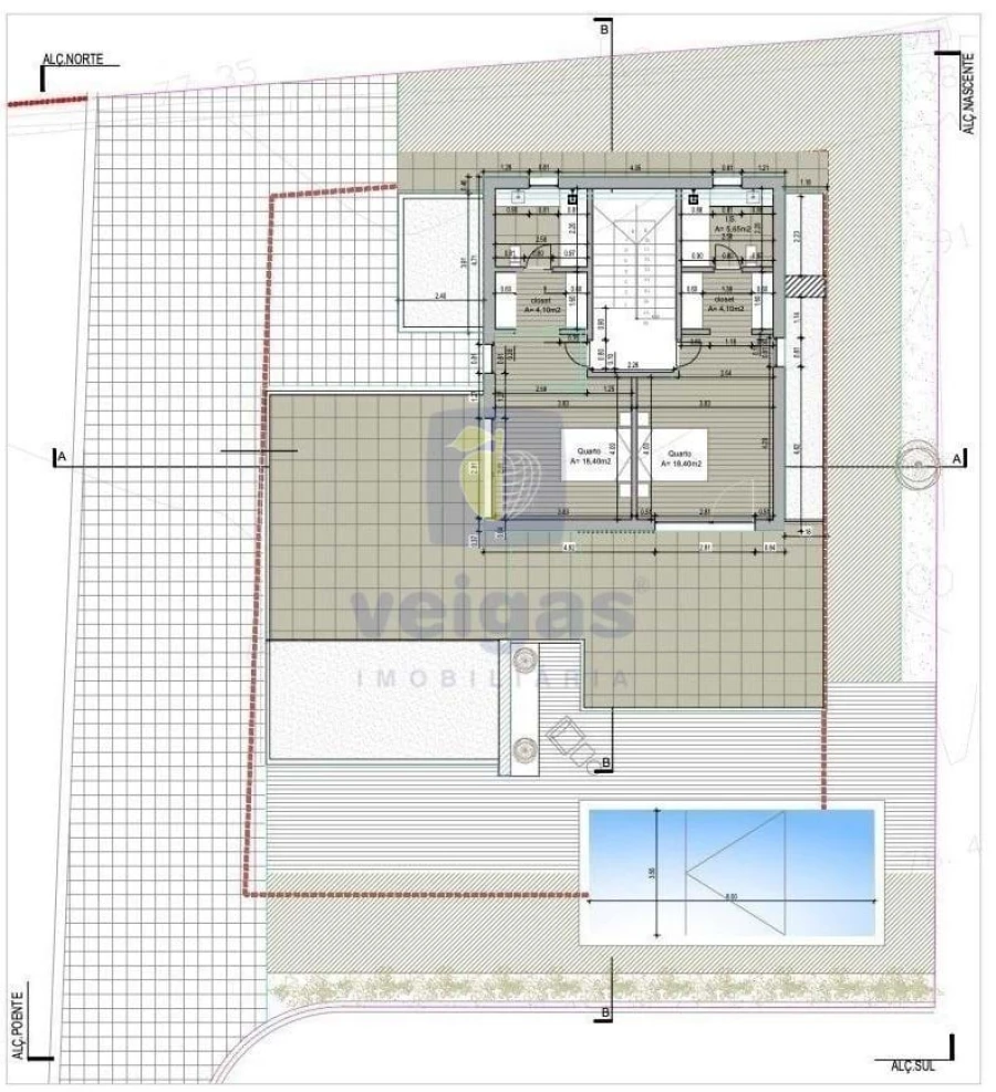
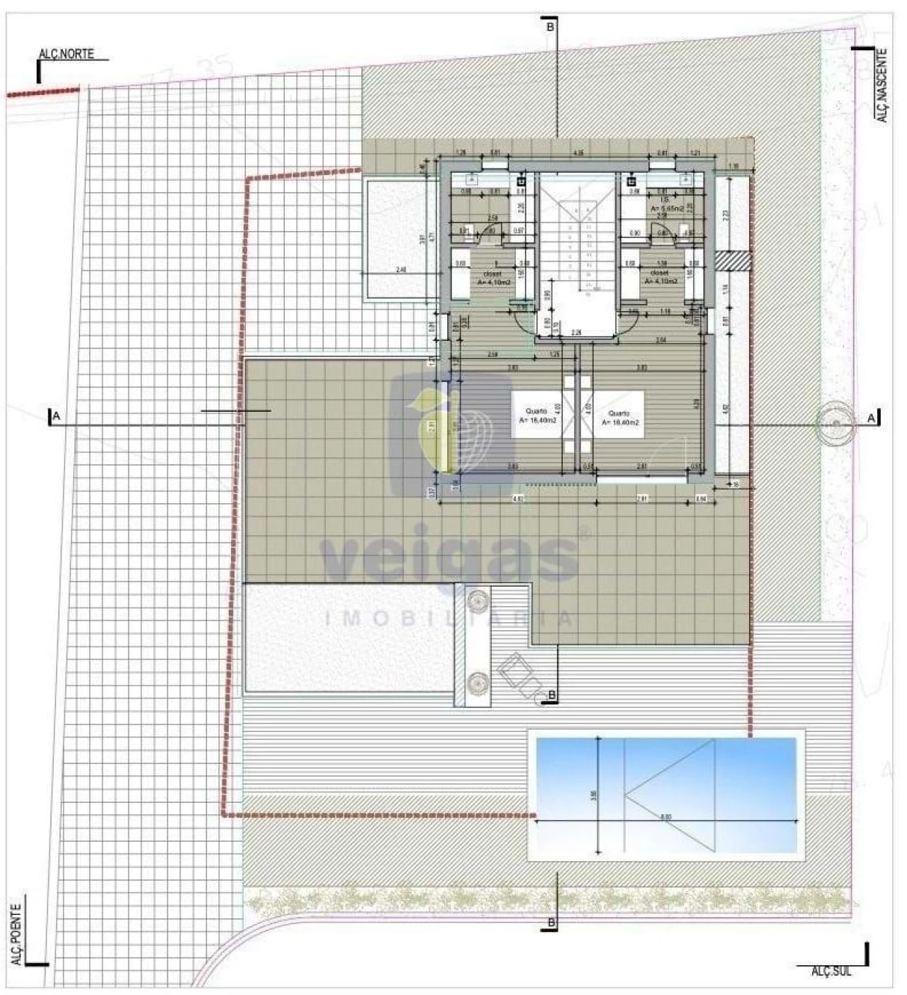
Tipologia T4 Espaçosa
Pensada para oferecer conforto e privacidade, a moradia dispõe de uma suite master no rés do chão e mais três quartos em suíte, ideal para vida familiar e para receber convidados.

Zona Social em Open Space
A ampla e luminosa área de estar apresenta um pé-direito alto, uma elegante parede em pedra e ligação direta à cozinha e ao terraço exterior, criando o ambiente perfeito para convívio e relaxamento.

Cozinha de Design
Totalmente equipada com eletrodomésticos premium, incluindo placa a gás, forno e micro-ondas encastrados e exaustor em inox com iluminação LED. A ilha central oferece uma generosa área de trabalho e funciona como ponto de encontro natural.

Despensa, Lavandaria e Arrumação
Inclui despensa e lavandaria dedicada com máquina de lavar e secar roupa, amplas soluções de arrumação e sistema de aspiração central que serve toda a casa e a garagem.

Conforto e Eficiência Energética
Equipada com ar condicionado de elevada eficiência para aquecimento e arrefecimento ao longo de todo o ano, garantindo conforto e excelente desempenho energético.

Qualidade de Construção Superior
Construída com materiais premium e com excelente isolamento acústico, esta moradia proporciona um ambiente tranquilo, confortável e com atenção a cada detalhe.

Espaços Exteriores
Desfrute de uma piscina privada, amplos terraços soalheiros e jardins paisagísticos, ideais para refeições ao ar livre, lazer e momentos de convívio.

Localização Privilegiada
Situada entre a Praia da Foz do Arelho e a Baía de São Martinho do Porto, esta moradia beneficia de um enquadramento único, combinando tranquilidade, proximidade ao mar e fácil acesso a serviços. Lisboa encontra-se a cerca de 1 hora, tornando esta propriedade ideal tanto para residência permanente como para casa de férias.

Sofisticação e conforto num só lugar. Descubra este imóvel exclusivo, pensado para quem valoriza qualidade e bom gosto.

Agende já a sua visita.

Localização

Caldas da Rainha - Santo Onofre e Serra do Bouro, Caldas da Rainha, Leiria

Informação do anúncio

ID do anúncio 1580532
Referência Externa CPT-216610
Atualizado em 24/01/2026 01:42:09
Veigas Costa Prata AMI 2845
Referência do imóvel: CPT-216610
Veigas Costa Prata AMI 2845
Referência do imóvel: CPT-216610
1 / 29
Moradia T4 para Venda em Caldas da Rainha - Santo Onofre e Serra do Bouro Foto 1
Moradia T4 para Venda em Caldas da Rainha - Santo Onofre e Serra do Bouro Foto 2
Moradia T4 para Venda em Caldas da Rainha - Santo Onofre e Serra do Bouro Foto 3
Moradia T4 para Venda em Caldas da Rainha - Santo Onofre e Serra do Bouro Foto 4
Moradia T4 para Venda em Caldas da Rainha - Santo Onofre e Serra do Bouro Foto 5
Moradia T4 para Venda em Caldas da Rainha - Santo Onofre e Serra do Bouro Foto 6
Moradia T4 para Venda em Caldas da Rainha - Santo Onofre e Serra do Bouro Foto 7
Moradia T4 para Venda em Caldas da Rainha - Santo Onofre e Serra do Bouro Foto 8
Moradia T4 para Venda em Caldas da Rainha - Santo Onofre e Serra do Bouro Foto 9
Moradia T4 para Venda em Caldas da Rainha - Santo Onofre e Serra do Bouro Foto 10
Moradia T4 para Venda em Caldas da Rainha - Santo Onofre e Serra do Bouro Foto 11
Moradia T4 para Venda em Caldas da Rainha - Santo Onofre e Serra do Bouro Foto 12
Moradia T4 para Venda em Caldas da Rainha - Santo Onofre e Serra do Bouro Foto 13
Moradia T4 para Venda em Caldas da Rainha - Santo Onofre e Serra do Bouro Foto 14
Moradia T4 para Venda em Caldas da Rainha - Santo Onofre e Serra do Bouro Foto 15
Moradia T4 para Venda em Caldas da Rainha - Santo Onofre e Serra do Bouro Foto 16
Moradia T4 para Venda em Caldas da Rainha - Santo Onofre e Serra do Bouro Foto 17
Moradia T4 para Venda em Caldas da Rainha - Santo Onofre e Serra do Bouro Foto 18
Moradia T4 para Venda em Caldas da Rainha - Santo Onofre e Serra do Bouro Foto 19
Moradia T4 para Venda em Caldas da Rainha - Santo Onofre e Serra do Bouro Foto 20
Moradia T4 para Venda em Caldas da Rainha - Santo Onofre e Serra do Bouro Foto 21
Moradia T4 para Venda em Caldas da Rainha - Santo Onofre e Serra do Bouro Foto 22
Moradia T4 para Venda em Caldas da Rainha - Santo Onofre e Serra do Bouro Foto 23
Moradia T4 para Venda em Caldas da Rainha - Santo Onofre e Serra do Bouro Foto 24
Moradia T4 para Venda em Caldas da Rainha - Santo Onofre e Serra do Bouro Foto 25
Moradia T4 para Venda em Caldas da Rainha - Santo Onofre e Serra do Bouro Foto 26
Moradia T4 para Venda em Caldas da Rainha - Santo Onofre e Serra do Bouro Foto 27
Moradia T4 para Venda em Caldas da Rainha - Santo Onofre e Serra do Bouro Foto 28
Moradia T4 para Venda em Caldas da Rainha - Santo Onofre e Serra do Bouro Foto 29
Moradia T4 para Venda em Caldas da Rainha - Santo Onofre e Serra do Bouro
Clicky