Voltar
Terreno para Venda em Lourinhã e Atalaia Foto 1
Terreno para Venda em Lourinhã e Atalaia Foto 2
Terreno para Venda em Lourinhã e Atalaia Foto 3
Terreno para Venda em Lourinhã e Atalaia Foto 4
Terreno para Venda em Lourinhã e Atalaia Foto 5

Terreno para Venda em Lourinhã e Atalaia

99.900 €

Tipo
Terreno
Negócio
Venda
Área do Terreno
664 m²

Descrição

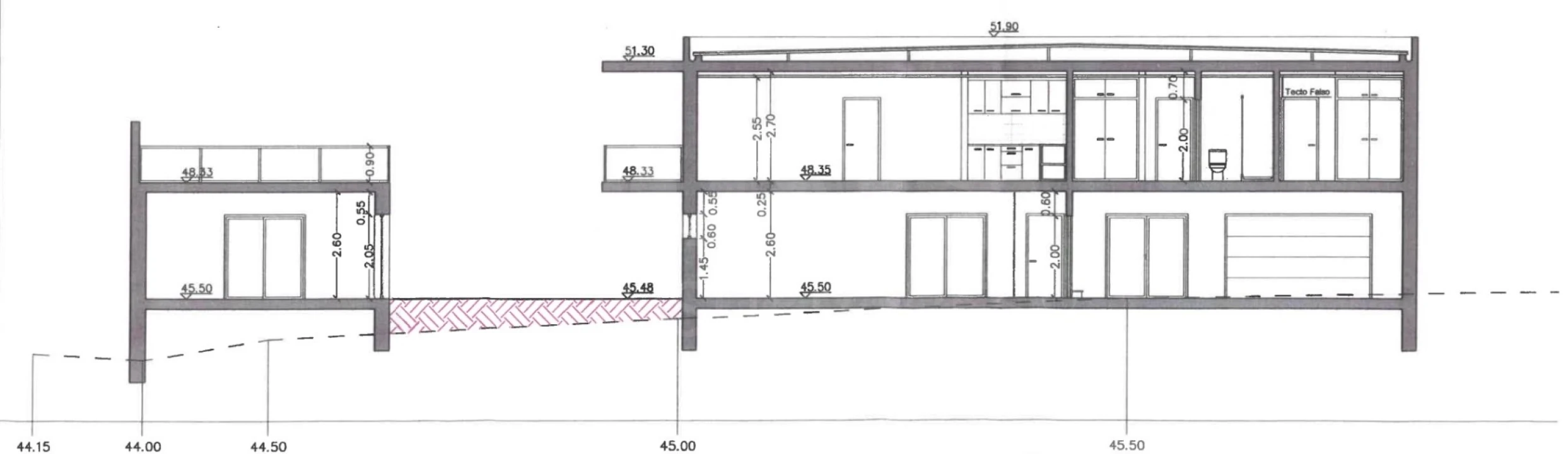
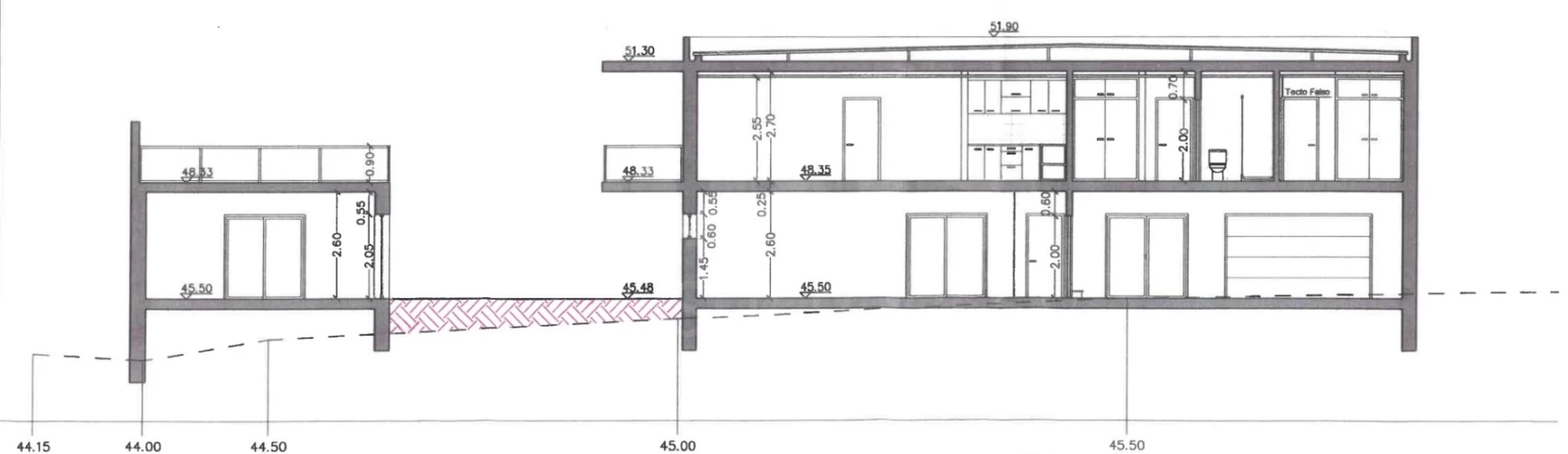
Excelente oportunidade para habitação própria ou investimento: moradia T4 com anexos, inserida numa parcela de terreno com 1.791 m², já com projeto de arquitetura desenvolvido para moradia unifamiliar de grandes dimensões.



O projeto prevê uma área de construção total de cerca de 664 m², distribuída por dois pisos e anexos, com uma implantação aproximada de 393 m², permitindo uma solução moderna, funcional e com excelentes áreas interiores e exteriores.



Um dos grandes diferenciais deste imóvel é o facto de a linha de água existente se encontrar regularizada, com estudo hidrológico/hidráulico aprovado, garantindo segurança jurídica e previsibilidade no desenvolvimento do projeto.



? Principais destaques:



✔ Moradia T4 com anexos

✔ Parcela de terreno com 1.791 m²

✔ Projeto estruturado e bem dimensionado

✔ Zona tranquila, com bons acessos e envolvente residencial

✔ Infraestruturas hidráulicas regularizadas

✔ Imóvel com forte potencial de valorização, ideal para quem procura construir com segurança técnica e enquadramento legal claro.



Envolvente e acessos:



Inserido numa vila com comércio, escolas, serviços de saúde, supermercados e restauração, proporcionando excelente qualidade de vida e forte procura habitacional.



A zona conta com acessos rápidos às principais vias rodoviárias, facilitando ligações à região Oeste e à área metropolitana de Lisboa.



Lisboa: ~70 km (cerca de 1h)

Aeroporto de Lisboa: ~65 km (45–60 min)

Praias: ~2 km



Uma localização estratégica para projetos residenciais, combinando tranquilidade, acessibilidade e proximidade ao litoral.



Um terreno com viabilidade, características técnicas sólidas e potencial de rentabilidade para projeto imobiliário.



? Mais informações e visitas

Entre em contacto para obter mais informações técnicas, agendar uma visita ao local ou analisar o potencial do projeto.

Disponível para acompanhamento personalizado a construtores e investidores interessados.

Localização

Lourinhã e Atalaia, Lourinhã, Lisboa

Informação do anúncio

ID do anúncio 1582111
Referência Externa 66905-TEA260342
Atualizado em 22/02/2026 10:31:06
MaisConsultores #TeamPeniche AMI 23990
Referência do imóvel: 66905-TEA260342
MaisConsultores #TeamPeniche AMI 23990
Referência do imóvel: 66905-TEA260342
1 / 12
Terreno para Venda em Lourinhã e Atalaia Foto 1
Terreno para Venda em Lourinhã e Atalaia Foto 2
Terreno para Venda em Lourinhã e Atalaia Foto 3
Terreno para Venda em Lourinhã e Atalaia Foto 4
Terreno para Venda em Lourinhã e Atalaia Foto 5
Terreno para Venda em Lourinhã e Atalaia Foto 6
Terreno para Venda em Lourinhã e Atalaia Foto 7
Terreno para Venda em Lourinhã e Atalaia Foto 8
Terreno para Venda em Lourinhã e Atalaia Foto 9
Terreno para Venda em Lourinhã e Atalaia Foto 10
Terreno para Venda em Lourinhã e Atalaia Foto 11
Terreno para Venda em Lourinhã e Atalaia Foto 12
Clicky