Terreno para Venda em Barcarena
1.100.000 €
Tipo
Terreno
Negócio
Venda
Ano de Construção
2025
Área Bruta
530 m²
Certificado Energético
N/A
Área do Terreno
1234 m²
Lote de Terreno para Moradia de Luxo T5
Imagine viver rodeado pelo verde da natureza e por um campo de golfe, numa moradia T5 onde o design contemporâneo, as comodidades premium e os espaços amplos foram cuidadosamente planeados para proporcionar o máximo conforto e exclusividade.
O lote de terreno 14 permite-lhe construir uma luxuosa residência e desfrutar de uma posição privilegiada no prestigiado Oeiras Golf & Residence, a apenas 15 minutos das praias e das cidades de Lisboa, Cascais e Sintra.
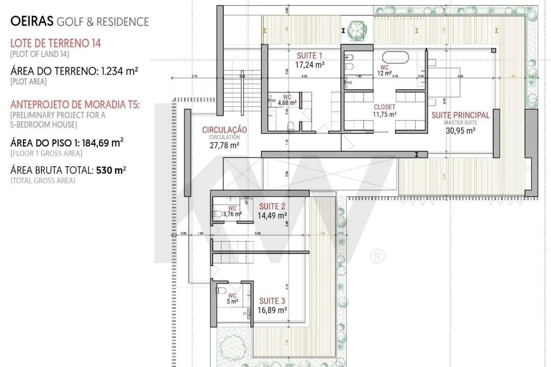
O Lote de terreno 14 possui 1 234 m² e fica localizado na zona mais nobre do Oeiras Golf & Residence, com vista para o campo de golf, e possui um anteprojeto para uma moradia T5.
O projeto desta moradia foi concebido pelo prestigiado Arquiteto João Rodolfo (Traçado Regulador), um nome incontornável na arquitetura de luxo em Portugal. Um fator diferenciador deste projeto é a possibilidade de ser adaptado ao seu gosto e às suas necessidades.
A casa oferece 5 suites harmoniosamente integradas no espaço, um jardim de inverno espaçoso, sala de cinema privada, ginásio, lareira exterior, firepit, piscina e zona de barbecue envolvida por paisagens verdejantes naturais e ainda uma cozinha aberta para a sala, onde uma ilha espaçosa aparece como um pormenor requintado, garantindo momentos de partilha e lazer imperdíveis.
Os 530 m² de área bruta de construção encontram-se distribuídos por 3 pisos, do seguinte modo:
- Piso Térreo (198 m²): uma ampla sala com 79,18 m², com ligação à cozinha (22,5 m²), uma suíte (23,88 m²), um lavabo social (2,87 m²).
- Piso Superior (184,69 m²): 1 Suíte Principal (30,95 m²) com Closet (11, 75m²) e uma ampla casa de banho (12 m²), 3 suítes (17,2 m², 16,9 m² e 14,5 m²) e amplas varandas a rodear todas as suítes.
- Na cave (136 m²): uma área de estacionamento coberto, com espaço para 3 viaturas, uma sala de cinema (20 m²), um ginásio / sala polivalente (39,34 m²) com luz natural de uma amplo jardim de inverno, a lavandaria (8 m²), 2 divisões de arrumos (3,87 m² e 3,3 m²) e uma casa de banho (2,6 m²).
- No exterior: uma piscina com zona de praia (56 m2), deck de madeira com Firepit, zona de refeições com barbecue e um WC de apoio.
A arquitetura contemporânea e elegante desta moradia, a par dos tons claros e naturais que a caracteriza, remete-nos imediatamente para um refúgio de luxo e conforto inigualável, onde cada pormenor foi desenhado para oferecer uma experiência e qualidade de vida únicas.
A moradia beneficia de espaço que se traduz em conforto, banhado a luz natural pelas suas vistas panorâmicas para o exterior, tornando-as bastante acolhedoras e relaxantes. Além do espaço interior e exterior excecionalmente pensados para a partilha, o lazer e o conforto que um lar pode proporcionar, os residentes poderão ainda desfrutar do campo de golf de 9 buracos do complexo ou aventurar-se no mundo equestre com aulas de equitação no Centro Hípico.
Localizada no Oeiras Golf & Residence, perto do Tagus Park, a moradia encontra-se perto das mais emblemáticas zonas empresariais e universitárias do país, estando a apenas 15 minutos de Lisboa e das praias do Estoril. Na área envolvente, encontram-se múltiplas opções de lazer, escolas internacionais e uma vasta gama de serviços comerciais e de saúde de elevada qualidade.
- Lazer e Desporto: Oeiras Golf, Fábrica da Pólvora (um espaço de cultura, lazer e zonas verdes), Academia e Centro Equestre João Cardiga (com restaurante, 3 picadeiros), praias do Estoril e Cascais, Marina de Oeiras, entre outros;
- Escolas: Oeiras International School, International Sharing School, Universidade Atlântica, Instituto Superior Técnico, Faculdade de Medicina (Universidade Católica Portuguesa), e colégios como S. Francisco de Assis, Colégio da Fonte e a futura Academia Aga Khan;
- Restaurantes: Restaurante Maria Pimenta, Restaurante 9&Meio Oeiras Golf, Picadeiro de Sabores;
- Comércio: Mercadona Taguspark, Centro Comercial São Marcos, Oeiras Parque, Fórum Sintra, etc.;
- Saúde: Hospital da Luz, Farmácia Tanara do Taguspark, Clínica Dentária Hospitalar Santa Madalena, entre outros;
- Empresas: O Taguspark, situado mesmo ao lado, aloja grandes empresas internacionais, tais como a LG, Novartis, ou o Novo Banco. A 10 minutos situa-se o Lagoas Park e o Parque Empresarial Quinta da Fonte;
Localizada próximo das vias rápidas de acesso à autoestrada A5 e ao IC19, a poucos minutos de Lisboa. Não perca esta oportunidade única para habitar e desfrutar do melhor que a vida tem! Marque já uma visita!
O lote de terreno 14 permite-lhe construir uma luxuosa residência e desfrutar de uma posição privilegiada no prestigiado Oeiras Golf & Residence, a apenas 15 minutos das praias e das cidades de Lisboa, Cascais e Sintra.
O Lote de terreno 14 possui 1 234 m² e fica localizado na zona mais nobre do Oeiras Golf & Residence, com vista para o campo de golf, e possui um anteprojeto para uma moradia T5.
O projeto desta moradia foi concebido pelo prestigiado Arquiteto João Rodolfo (Traçado Regulador), um nome incontornável na arquitetura de luxo em Portugal. Um fator diferenciador deste projeto é a possibilidade de ser adaptado ao seu gosto e às suas necessidades.
A casa oferece 5 suites harmoniosamente integradas no espaço, um jardim de inverno espaçoso, sala de cinema privada, ginásio, lareira exterior, firepit, piscina e zona de barbecue envolvida por paisagens verdejantes naturais e ainda uma cozinha aberta para a sala, onde uma ilha espaçosa aparece como um pormenor requintado, garantindo momentos de partilha e lazer imperdíveis.
Os 530 m² de área bruta de construção encontram-se distribuídos por 3 pisos, do seguinte modo:
- Piso Térreo (198 m²): uma ampla sala com 79,18 m², com ligação à cozinha (22,5 m²), uma suíte (23,88 m²), um lavabo social (2,87 m²).
- Piso Superior (184,69 m²): 1 Suíte Principal (30,95 m²) com Closet (11, 75m²) e uma ampla casa de banho (12 m²), 3 suítes (17,2 m², 16,9 m² e 14,5 m²) e amplas varandas a rodear todas as suítes.
- Na cave (136 m²): uma área de estacionamento coberto, com espaço para 3 viaturas, uma sala de cinema (20 m²), um ginásio / sala polivalente (39,34 m²) com luz natural de uma amplo jardim de inverno, a lavandaria (8 m²), 2 divisões de arrumos (3,87 m² e 3,3 m²) e uma casa de banho (2,6 m²).
- No exterior: uma piscina com zona de praia (56 m2), deck de madeira com Firepit, zona de refeições com barbecue e um WC de apoio.
A arquitetura contemporânea e elegante desta moradia, a par dos tons claros e naturais que a caracteriza, remete-nos imediatamente para um refúgio de luxo e conforto inigualável, onde cada pormenor foi desenhado para oferecer uma experiência e qualidade de vida únicas.
A moradia beneficia de espaço que se traduz em conforto, banhado a luz natural pelas suas vistas panorâmicas para o exterior, tornando-as bastante acolhedoras e relaxantes. Além do espaço interior e exterior excecionalmente pensados para a partilha, o lazer e o conforto que um lar pode proporcionar, os residentes poderão ainda desfrutar do campo de golf de 9 buracos do complexo ou aventurar-se no mundo equestre com aulas de equitação no Centro Hípico.
Localizada no Oeiras Golf & Residence, perto do Tagus Park, a moradia encontra-se perto das mais emblemáticas zonas empresariais e universitárias do país, estando a apenas 15 minutos de Lisboa e das praias do Estoril. Na área envolvente, encontram-se múltiplas opções de lazer, escolas internacionais e uma vasta gama de serviços comerciais e de saúde de elevada qualidade.
- Lazer e Desporto: Oeiras Golf, Fábrica da Pólvora (um espaço de cultura, lazer e zonas verdes), Academia e Centro Equestre João Cardiga (com restaurante, 3 picadeiros), praias do Estoril e Cascais, Marina de Oeiras, entre outros;
- Escolas: Oeiras International School, International Sharing School, Universidade Atlântica, Instituto Superior Técnico, Faculdade de Medicina (Universidade Católica Portuguesa), e colégios como S. Francisco de Assis, Colégio da Fonte e a futura Academia Aga Khan;
- Restaurantes: Restaurante Maria Pimenta, Restaurante 9&Meio Oeiras Golf, Picadeiro de Sabores;
- Comércio: Mercadona Taguspark, Centro Comercial São Marcos, Oeiras Parque, Fórum Sintra, etc.;
- Saúde: Hospital da Luz, Farmácia Tanara do Taguspark, Clínica Dentária Hospitalar Santa Madalena, entre outros;
- Empresas: O Taguspark, situado mesmo ao lado, aloja grandes empresas internacionais, tais como a LG, Novartis, ou o Novo Banco. A 10 minutos situa-se o Lagoas Park e o Parque Empresarial Quinta da Fonte;
Localizada próximo das vias rápidas de acesso à autoestrada A5 e ao IC19, a poucos minutos de Lisboa. Não perca esta oportunidade única para habitar e desfrutar do melhor que a vida tem! Marque já uma visita!
Localização
Barcarena, Oeiras, Lisboa
Informação do anúncio
ID do anúncio
1582436
Referência Externa
KWPT-010316
Atualizado em
26/04/2026 00:02:09
Anunciante
Chamada para a rede fixa nacional
KW Sol Oeiras
AMI 12223
Referência do imóvel:
KWPT-010316
Terreno para Venda em Barcarena
Vídeo