Terreno para Venda em Arrifana
120.000 €
Tipo
Terreno
Negócio
Venda
Condição
Usado
Certificado Energético
B
Área do Terreno
790 m²
Terreno Misto com 790 m2, para Venda na Arrifana, Aveiro
Terreno Misto com 790 m2, para Venda na Arrifana, Aveiro
Área do Terreno: 790 m2
Terreno muito bem localizado, mesmo em frente ao Lidl.
Segundo o PDF e possível construir Habitação ou Comércio.
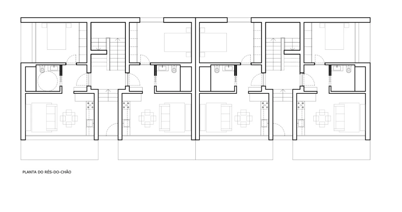
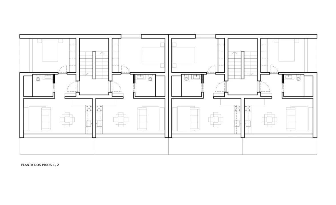
Foi feito um estudo que poderá analisar nas imagens para fazer um Prédio de Habitação com 12 Apartamentos T1.
----------
Alguma dúvida, não hesite em contactar-nos.
NOTA: Fazemos parceria e partilha com todas as imobiliárias profissionais.
----
SOBRE A LT REAL ESTATE.
Na LT Real Estate primamos pela DISCRIÇÃO, comprometemos-nos a trabalhar com EXCELÊNCIA e concedemos DISTINÇÃO.
Fundada por Marisa Guedes e Bruno Queirós, a LT Real Estate foi criada com a intenção de consolidar-se como referência de excelência no seletíssimo Mercado de Residências Premium/Luxo e no sofisticado âmbito dos Investimentos.
A exclusividade, celeridade e primor no atendimento são os alicerces mais preponderantes que fundamentam a essência da nossa marca.
Na LT, a nossa dedicação é focada na sublime meta de criar relações duradouras e de máxima satisfação para o nosso cliente.
'A verdadeira essência do luxo revela-se em cada minucioso detalhe. Luxo não é um privilégio, é uma estratégia de negócios.'
----
ltrealestate.pt
Área do Terreno: 790 m2
Terreno muito bem localizado, mesmo em frente ao Lidl.
Segundo o PDF e possível construir Habitação ou Comércio.
Foi feito um estudo que poderá analisar nas imagens para fazer um Prédio de Habitação com 12 Apartamentos T1.
----------
Alguma dúvida, não hesite em contactar-nos.
NOTA: Fazemos parceria e partilha com todas as imobiliárias profissionais.
----
SOBRE A LT REAL ESTATE.
Na LT Real Estate primamos pela DISCRIÇÃO, comprometemos-nos a trabalhar com EXCELÊNCIA e concedemos DISTINÇÃO.
Fundada por Marisa Guedes e Bruno Queirós, a LT Real Estate foi criada com a intenção de consolidar-se como referência de excelência no seletíssimo Mercado de Residências Premium/Luxo e no sofisticado âmbito dos Investimentos.
A exclusividade, celeridade e primor no atendimento são os alicerces mais preponderantes que fundamentam a essência da nossa marca.
Na LT, a nossa dedicação é focada na sublime meta de criar relações duradouras e de máxima satisfação para o nosso cliente.
'A verdadeira essência do luxo revela-se em cada minucioso detalhe. Luxo não é um privilégio, é uma estratégia de negócios.'
----
ltrealestate.pt
Localização
Arrifana, Santa Maria da Feira, Aveiro
Informação do anúncio
ID do anúncio
1587714
Referência Externa
SÒL_2000
Atualizado em
28/01/2026 07:05:14
Anunciante
Chamada para a rede móvel nacional
LT Real Estate
AMI 19915
Referência do imóvel:
SÒL_2000
Terreno para Venda em Arrifana