Apartamento T3 para Venda em Corroios
420.000 €
Tipo
Apartamento
Negócio
Venda
Ano de Construção
2025
Quartos
3
Casas de Banho
2
Área Útil
83 m²
Certificado Energético
A
Área do Terreno
98 m²
Apartamento T3 em Corroios de 83,00 m²
T3 Moderno - Santa Marta do Pinhal, Seixal
Apresento-lhe um apartamento de 4 assoalhadas, de elevada qualidade construtiva, situado em Santa Marta do Pinhal, numa zona residencial tranquila, mas central, amplamente reconhecida pela excelente acessibilidade a Lisboa, Almada, às praias e às principais vias rápidas. Um imóvel moderno, eficiente e cuidadosamente concebido para garantir conforto e bem-estar no dia a dia.
CARACTERÍSTICAS PRINCIPAIS DO IMÓVEL
• Sala e cozinha em open space, com ligação direta a varanda
• Três varandas
• três quartos, todos com roupeiros embutidos e amplas janelas, sendo um deles em suite
EFICIÊNCIA E TECNOLOGIA
• Classe Energética: A
• Caixilharia em PVC com janelas oscilo-batentes e vidros duplos
• Estores térmicos e elétricos
• Cozinha equipada com Exaustor, Placa, Forno, Micro-Ondas, Frigorifico/Arca Combinados, Máquinas de Lavar louça e Máquina de lavar roupa. Móveis brancos termo laminados com bancadas em silestone
• Sistema de aquecimento de águas através de bomba de calor
• Pré-instalação de ar condicionado
• Aspiração central
• Vídeo Porteiro
• Porta de entrada blindada Dierre
• Excelente orientação solar
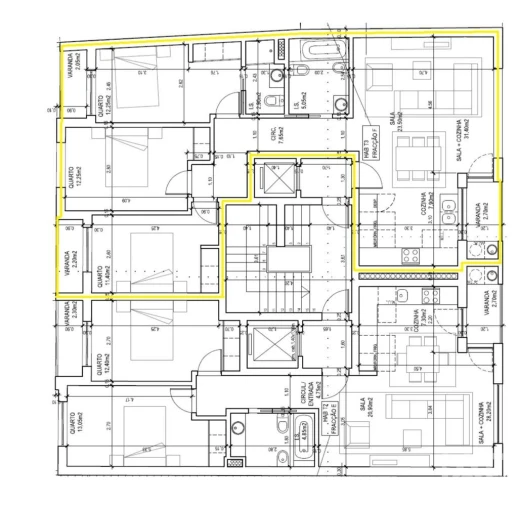
ÁREAS
• Área Bruta Privativa: 91 m²
• Área bruta de construção: 98 m²;
• Sala com excelente luminosidade e ligação direta a varanda: 23,5 m²;
• Cozinha, totalmente equipada, em open espace com a sala: 7,9 m²;
• Varanda com ligação à sala: 2,7 m²;
• Suite: 12,3 m²;
• Casa de banho da Suite: 2,9 m²;
• Dois quartos: 12,3 e 11,4 m²;
• Casa de banho: 5,1 m²;
• Duas varandas: 2,1m² e 2,2 m²;
LOCALIZAÇÃO PRIVILEGIADA
Este apartamento destaca-se pela centralidade e proximidade a tudo o que valorizamos num estilo de vida prático e equilibrado:
• Lisboa e Almada a poucos minutos
• Acesso rápido à A33, A2 e IC20
• Próximo da Estação de Comboios de Corroios
• Perto de escolas, colégios, jardins de infância, comércio e serviços
• A curta distância das praias da Costa da Caparica e Fonte da Telha
ESTADO DA OBRA
Edifício em fase avançada de construção.
________________________________________
Este é um imóvel que combina modernidade, conforto, eficiência energética e uma localização excecional, perfeito para residência própria ou investimento.
Agende a sua visita e conheça todos os detalhes deste magnífico imóvel.
NOTA: As imagens com “virtual staging” referentes ao open-space (sala e cozinha) deste imóvel, são meramente indicativas de como cada uma das divisões poderá vir a ser decorada.
Classificação Energética: A
AMI 11220
“A informação disponibilizada, ainda que precisa, não dispensa a sua confirmação nem pode ser considerada vinculativa.”
________________________________________
Se este imóvel não for exatamente o que procura, como consultor dedicado posso ajudá-lo a encontrar a solução certa, apoiar todo o processo de compra, financiamento, negociação e tratar de CPCV e escritura.
Se pretende vender a sua casa, apoio-o na definição do valor de mercado e em todo o processo de venda, desde a divulgação nacional e internacional do imóvel até à assinatura do CPCV e escritura.
#ref: 153521
Apresento-lhe um apartamento de 4 assoalhadas, de elevada qualidade construtiva, situado em Santa Marta do Pinhal, numa zona residencial tranquila, mas central, amplamente reconhecida pela excelente acessibilidade a Lisboa, Almada, às praias e às principais vias rápidas. Um imóvel moderno, eficiente e cuidadosamente concebido para garantir conforto e bem-estar no dia a dia.
CARACTERÍSTICAS PRINCIPAIS DO IMÓVEL
• Sala e cozinha em open space, com ligação direta a varanda
• Três varandas
• três quartos, todos com roupeiros embutidos e amplas janelas, sendo um deles em suite
EFICIÊNCIA E TECNOLOGIA
• Classe Energética: A
• Caixilharia em PVC com janelas oscilo-batentes e vidros duplos
• Estores térmicos e elétricos
• Cozinha equipada com Exaustor, Placa, Forno, Micro-Ondas, Frigorifico/Arca Combinados, Máquinas de Lavar louça e Máquina de lavar roupa. Móveis brancos termo laminados com bancadas em silestone
• Sistema de aquecimento de águas através de bomba de calor
• Pré-instalação de ar condicionado
• Aspiração central
• Vídeo Porteiro
• Porta de entrada blindada Dierre
• Excelente orientação solar
ÁREAS
• Área Bruta Privativa: 91 m²
• Área bruta de construção: 98 m²;
• Sala com excelente luminosidade e ligação direta a varanda: 23,5 m²;
• Cozinha, totalmente equipada, em open espace com a sala: 7,9 m²;
• Varanda com ligação à sala: 2,7 m²;
• Suite: 12,3 m²;
• Casa de banho da Suite: 2,9 m²;
• Dois quartos: 12,3 e 11,4 m²;
• Casa de banho: 5,1 m²;
• Duas varandas: 2,1m² e 2,2 m²;
LOCALIZAÇÃO PRIVILEGIADA
Este apartamento destaca-se pela centralidade e proximidade a tudo o que valorizamos num estilo de vida prático e equilibrado:
• Lisboa e Almada a poucos minutos
• Acesso rápido à A33, A2 e IC20
• Próximo da Estação de Comboios de Corroios
• Perto de escolas, colégios, jardins de infância, comércio e serviços
• A curta distância das praias da Costa da Caparica e Fonte da Telha
ESTADO DA OBRA
Edifício em fase avançada de construção.
________________________________________
Este é um imóvel que combina modernidade, conforto, eficiência energética e uma localização excecional, perfeito para residência própria ou investimento.
Agende a sua visita e conheça todos os detalhes deste magnífico imóvel.
NOTA: As imagens com “virtual staging” referentes ao open-space (sala e cozinha) deste imóvel, são meramente indicativas de como cada uma das divisões poderá vir a ser decorada.
Classificação Energética: A
AMI 11220
“A informação disponibilizada, ainda que precisa, não dispensa a sua confirmação nem pode ser considerada vinculativa.”
________________________________________
Se este imóvel não for exatamente o que procura, como consultor dedicado posso ajudá-lo a encontrar a solução certa, apoiar todo o processo de compra, financiamento, negociação e tratar de CPCV e escritura.
Se pretende vender a sua casa, apoio-o na definição do valor de mercado e em todo o processo de venda, desde a divulgação nacional e internacional do imóvel até à assinatura do CPCV e escritura.
#ref: 153521
Localização
Corroios, Seixal, Setúbal
Informação do anúncio
ID do anúncio
1593393
Referência Externa
153521
Atualizado em
26/04/2026 23:39:23
Apartamento T3 para Venda em Corroios
Vídeo