Voltar
Moradia T4 para Venda em Lourinhã e Atalaia Foto 1
Moradia T4 para Venda em Lourinhã e Atalaia Foto 2
Moradia T4 para Venda em Lourinhã e Atalaia Foto 3
Moradia T4 para Venda em Lourinhã e Atalaia Foto 4
Moradia T4 para Venda em Lourinhã e Atalaia Foto 5

Moradia T4 para Venda em Lourinhã e Atalaia

600.000 €

Tipo
Moradia
Negócio
Venda
Ano de Construção
2023
Quartos
4
Casas de Banho
4
Área Bruta
245 m²
Área Útil
156 m²
Condição
Como novo
Certificado Energético
A
Área do Terreno
317 m²

Moradia em Condomínio do Areal

Descubra o equilíbrio perfeito entre sofisticação e bem-estar nesta magnífica moradia inserida num dos condomínios mais prestigiados da região. Com um design que privilegia a luz natural, esta casa destaca-se pelas suas janelas amplas, acabamentos de alta gama.

Destaques do Interior:
Conceito Open-Space: Uma sala inundada de luz que se funde com uma cozinha de sonho, totalmente equipada com tecnologia de ponta e acabamentos em madeira nobre.
Suítes de Luxo: No primeiro andar, acessível por elegantes escadas em Silestone, encontrará duas suítes pensadas para o máximo relaxamento, complementadas por dois quartos generosos e um espaço flexível (+1) ideal para o seu novo home office.
Conforto Moderno: Estores elétricos, vidros duplos de alta eficiência e climatização pensada para o seu conforto.
O Exterior e o Condomínio: Relaxe no seu jardim privativo com churrasqueira ou aproveite as comodidades exclusivas do condomínio, que incluem uma piscina deslumbrante e áreas verdes meticulosamente cuidadas.

Localização: A apenas 5 minutos a pé da areia e a 5 minutos de carro da Lourinhã.

Aqui, o despertar é feito com o aroma do mar e a tranquilidade do Oeste, sem abdicar da proximidade aos melhores restaurantes de peixe fresco da região.

Não deixe escapar esta oportunidade única e agende já a sua visita.

Localização

Lourinhã e Atalaia, Lourinhã, Lisboa

Informação do anúncio

ID do anúncio 1602256
Referência Externa 2026/0008
Atualizado em 05/02/2026 09:31:51
OesteDomus AMI 21983
Referência do imóvel: 2026/0008
Phone
Chamada para a rede móvel nacional
OesteDomus AMI 21983
Referência do imóvel: 2026/0008
Phone
Chamada para a rede móvel nacional
1 / 66
Moradia T4 para Venda em Lourinhã e Atalaia Foto 1
Moradia T4 para Venda em Lourinhã e Atalaia Foto 2
Moradia T4 para Venda em Lourinhã e Atalaia Foto 3
Moradia T4 para Venda em Lourinhã e Atalaia Foto 4
Moradia T4 para Venda em Lourinhã e Atalaia Foto 5
Moradia T4 para Venda em Lourinhã e Atalaia Foto 6
Moradia T4 para Venda em Lourinhã e Atalaia Foto 7
Moradia T4 para Venda em Lourinhã e Atalaia Foto 8
Moradia T4 para Venda em Lourinhã e Atalaia Foto 9
Moradia T4 para Venda em Lourinhã e Atalaia Foto 10
Moradia T4 para Venda em Lourinhã e Atalaia Foto 11
Moradia T4 para Venda em Lourinhã e Atalaia Foto 12
Moradia T4 para Venda em Lourinhã e Atalaia Foto 13
Moradia T4 para Venda em Lourinhã e Atalaia Foto 14
Moradia T4 para Venda em Lourinhã e Atalaia Foto 15
Moradia T4 para Venda em Lourinhã e Atalaia Foto 16
Moradia T4 para Venda em Lourinhã e Atalaia Foto 17
Moradia T4 para Venda em Lourinhã e Atalaia Foto 18
Moradia T4 para Venda em Lourinhã e Atalaia Foto 19
Moradia T4 para Venda em Lourinhã e Atalaia Foto 20
Moradia T4 para Venda em Lourinhã e Atalaia Foto 21
Moradia T4 para Venda em Lourinhã e Atalaia Foto 22
Moradia T4 para Venda em Lourinhã e Atalaia Foto 23
Moradia T4 para Venda em Lourinhã e Atalaia Foto 24
Moradia T4 para Venda em Lourinhã e Atalaia Foto 25
Moradia T4 para Venda em Lourinhã e Atalaia Foto 26
Moradia T4 para Venda em Lourinhã e Atalaia Foto 27
Moradia T4 para Venda em Lourinhã e Atalaia Foto 28
Moradia T4 para Venda em Lourinhã e Atalaia Foto 29
Moradia T4 para Venda em Lourinhã e Atalaia Foto 30
Moradia T4 para Venda em Lourinhã e Atalaia Foto 31
Moradia T4 para Venda em Lourinhã e Atalaia Foto 32
Moradia T4 para Venda em Lourinhã e Atalaia Foto 33
Moradia T4 para Venda em Lourinhã e Atalaia Foto 34
Moradia T4 para Venda em Lourinhã e Atalaia Foto 35
Moradia T4 para Venda em Lourinhã e Atalaia Foto 36
Moradia T4 para Venda em Lourinhã e Atalaia Foto 37
Moradia T4 para Venda em Lourinhã e Atalaia Foto 38
Moradia T4 para Venda em Lourinhã e Atalaia Foto 39
Moradia T4 para Venda em Lourinhã e Atalaia Foto 40
Moradia T4 para Venda em Lourinhã e Atalaia Foto 41
Moradia T4 para Venda em Lourinhã e Atalaia Foto 42
Moradia T4 para Venda em Lourinhã e Atalaia Foto 43
Moradia T4 para Venda em Lourinhã e Atalaia Foto 44
Moradia T4 para Venda em Lourinhã e Atalaia Foto 45
Moradia T4 para Venda em Lourinhã e Atalaia Foto 46
Moradia T4 para Venda em Lourinhã e Atalaia Foto 47
Moradia T4 para Venda em Lourinhã e Atalaia Foto 48
Moradia T4 para Venda em Lourinhã e Atalaia Foto 49
Moradia T4 para Venda em Lourinhã e Atalaia Foto 50
Moradia T4 para Venda em Lourinhã e Atalaia Foto 51
Moradia T4 para Venda em Lourinhã e Atalaia Foto 52
Moradia T4 para Venda em Lourinhã e Atalaia Foto 53
Moradia T4 para Venda em Lourinhã e Atalaia Foto 54
Moradia T4 para Venda em Lourinhã e Atalaia Foto 55
Moradia T4 para Venda em Lourinhã e Atalaia Foto 56
Moradia T4 para Venda em Lourinhã e Atalaia Foto 57
Moradia T4 para Venda em Lourinhã e Atalaia Foto 58
Moradia T4 para Venda em Lourinhã e Atalaia Foto 59
Moradia T4 para Venda em Lourinhã e Atalaia Foto 60
Moradia T4 para Venda em Lourinhã e Atalaia Foto 61
Moradia T4 para Venda em Lourinhã e Atalaia Foto 62
Moradia T4 para Venda em Lourinhã e Atalaia Foto 63
Moradia T4 para Venda em Lourinhã e Atalaia Foto 64
Moradia T4 para Venda em Lourinhã e Atalaia Foto 65
Moradia T4 para Venda em Lourinhã e Atalaia Foto 66
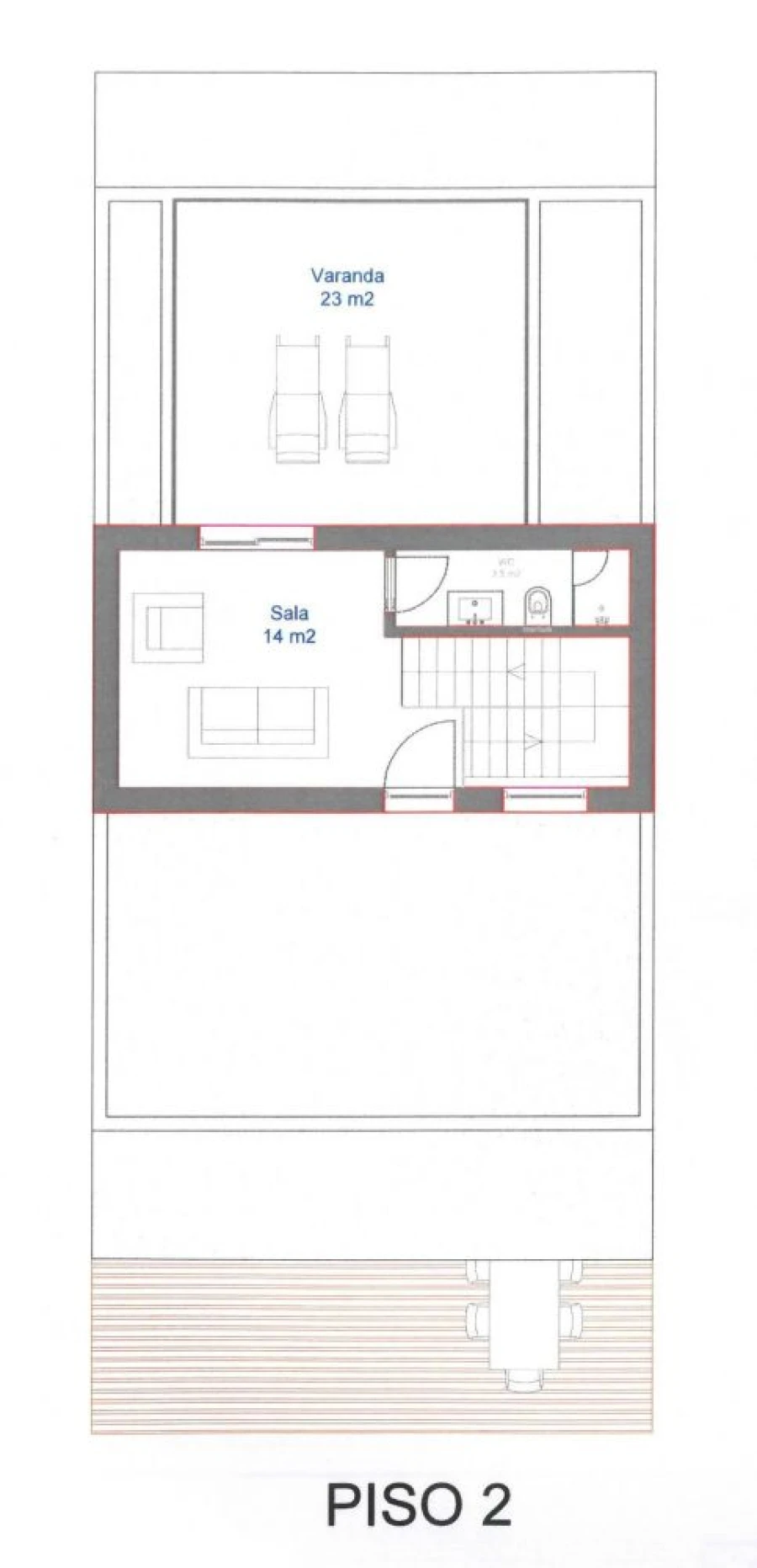
Planta 1 / 4
Moradia T4 para Venda em Lourinhã e Atalaia Planta 1
Moradia T4 para Venda em Lourinhã e Atalaia Planta 2
Moradia T4 para Venda em Lourinhã e Atalaia Planta 3
Moradia T4 para Venda em Lourinhã e Atalaia Planta 4
Clicky