Apartamento T3 para Venda em São João Baptista
260.000 €
Tipo
Apartamento
Negócio
Venda
Quartos
3
Casas de Banho
2
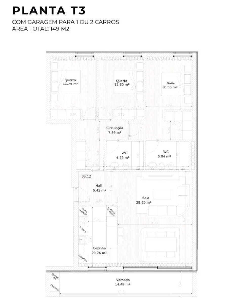
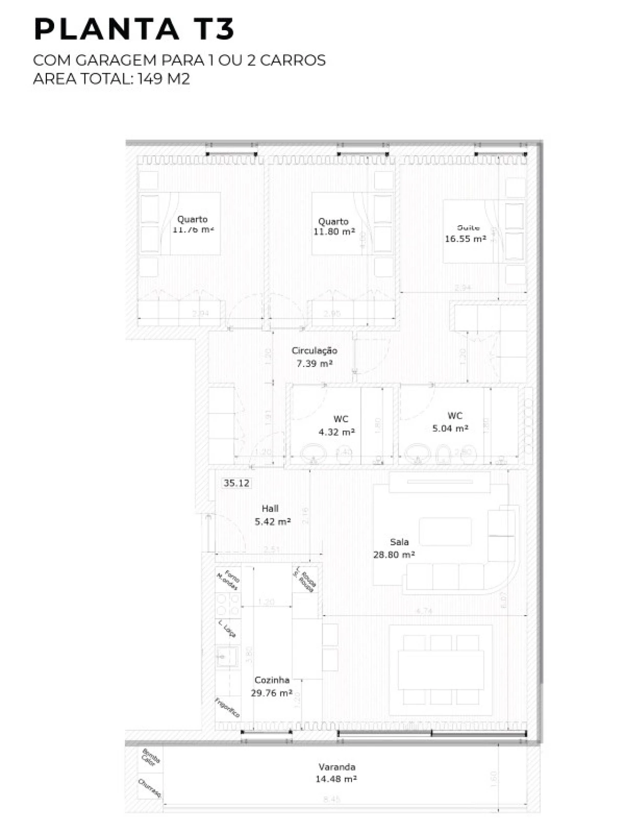
Área Bruta
149 m²
Condição
Em construção
Certificado Energético
A
Entroncamento Premium - T3 NOVO garagem, elevador, varandas, SUITE
Bem-vindo ao Entroncamento Premium, um empreendimento de referência que combina o conforto moderno com uma localização privilegiada no coração de Portugal. Concebido para oferecer uma qualidade de vida única, este edifício de habitação multifamiliar apresenta apartamentos T3 de alto padrão, com garagem privativa para 1 ou 2 carros.
Com a construção a iniciar-se em setembro de 2025 e a conclusão prevista para o segundo semestre de 2027, este é o investimento ideal para quem procura um lar onde a tranquilidade e a conectividade se encontram.
Localização de Excelência
Situado na Rua de São Caetano, no Entroncamento, o empreendimento beneficia de uma localização estratégica:
Cidade Calma e em Crescimento: O Entroncamento é uma cidade segura e acolhedora, com cerca de 20.000 habitantes, afirmando-se cada vez mais como uma cidade de eleição.
Proximidade a Serviços: Localizado perto de escolas e espaços verdes, ideal para famílias.
Coração dos Transportes: Herdando uma identidade única da sua história ferroviária, oferece excelentes acessos.
À Porta de Praias Famosas: A curta distância de destinos balneares de renome como a Praia da Nazaré e a Praia de Peniche.
Acabamentos e Equipamentos de Alto Padrão
O Entroncamento Premium foi pensado ao pormenor para garantir o máximo conforto e qualidade. Todos os apartamentos incluem:
Cozinha Equipada: Móveis com frente lacada, tampo em Compac Quartz e eletrodomésticos BEKO (Frigorífico, Máquina de Loiça, Forno, Placa de Indução e Exaustor).
Caixilharia de Alta Performance: Alumínio térmico Cortizo com vidro duplo.
Climatização e Eficiência Energética: Pré-instalação de Ar Condicionado, Aquecimento Central e Painéis Solares.
Conforto e Segurança: Elevador, portas de segurança corta-fogo Vicaima, estores elétricos e portões de garagem automatizados.
Interiores de Qualidade: Pavimento vinílico OneFlor Europe (6mm) nas áreas sociais, revestimentos cerâmicos Porcelanosa nas casas de banho e sanita Sanitana suspensa.
Isolamento Térmico e Acústico: Paredes exteriores e entre frações com isolamento em lã de rocha para maior eficiência energética e privacidade.
(Nota: O mapa de acabamentos é indicativo e pode estar sujeito a alterações por motivos técnicos ou comerciais.)
Tipologias e Tabela de Vendas (Lote 65)
O empreendimento oferece várias frações T3, com áreas totais entre 120,6 m² e 152,4 m², incluindo varanda e garagem.
Viva no Entroncamento
Para além de um ótimo lar, o Entroncamento oferece uma excelente qualidade de vida:
Cultura e Lazer: Visite o Museu Nacional Ferroviário, um dos mais importantes da Europa.
Natureza: Desfrute da tranquilidade do Parque Verde do Bonito, um pulmão verde com 18 hectares.
Património: Conheça a histórica Igreja Matriz do Entroncamento.
Com a construção a iniciar-se em setembro de 2025 e a conclusão prevista para o segundo semestre de 2027, este é o investimento ideal para quem procura um lar onde a tranquilidade e a conectividade se encontram.
Localização de Excelência
Situado na Rua de São Caetano, no Entroncamento, o empreendimento beneficia de uma localização estratégica:
Cidade Calma e em Crescimento: O Entroncamento é uma cidade segura e acolhedora, com cerca de 20.000 habitantes, afirmando-se cada vez mais como uma cidade de eleição.
Proximidade a Serviços: Localizado perto de escolas e espaços verdes, ideal para famílias.
Coração dos Transportes: Herdando uma identidade única da sua história ferroviária, oferece excelentes acessos.
À Porta de Praias Famosas: A curta distância de destinos balneares de renome como a Praia da Nazaré e a Praia de Peniche.
Acabamentos e Equipamentos de Alto Padrão
O Entroncamento Premium foi pensado ao pormenor para garantir o máximo conforto e qualidade. Todos os apartamentos incluem:
Cozinha Equipada: Móveis com frente lacada, tampo em Compac Quartz e eletrodomésticos BEKO (Frigorífico, Máquina de Loiça, Forno, Placa de Indução e Exaustor).
Caixilharia de Alta Performance: Alumínio térmico Cortizo com vidro duplo.
Climatização e Eficiência Energética: Pré-instalação de Ar Condicionado, Aquecimento Central e Painéis Solares.
Conforto e Segurança: Elevador, portas de segurança corta-fogo Vicaima, estores elétricos e portões de garagem automatizados.
Interiores de Qualidade: Pavimento vinílico OneFlor Europe (6mm) nas áreas sociais, revestimentos cerâmicos Porcelanosa nas casas de banho e sanita Sanitana suspensa.
Isolamento Térmico e Acústico: Paredes exteriores e entre frações com isolamento em lã de rocha para maior eficiência energética e privacidade.
(Nota: O mapa de acabamentos é indicativo e pode estar sujeito a alterações por motivos técnicos ou comerciais.)
Tipologias e Tabela de Vendas (Lote 65)
O empreendimento oferece várias frações T3, com áreas totais entre 120,6 m² e 152,4 m², incluindo varanda e garagem.
Viva no Entroncamento
Para além de um ótimo lar, o Entroncamento oferece uma excelente qualidade de vida:
Cultura e Lazer: Visite o Museu Nacional Ferroviário, um dos mais importantes da Europa.
Natureza: Desfrute da tranquilidade do Parque Verde do Bonito, um pulmão verde com 18 hectares.
Património: Conheça a histórica Igreja Matriz do Entroncamento.
Localização
São João Baptista, Entroncamento, Santarém
Informação do anúncio
ID do anúncio
1604689
Referência Externa
Entron64_C
Atualizado em
27/04/2026 01:59:55
Apartamento T3 para Venda em São João Baptista
Vídeo