Terreno para Venda em São Domingos de Rana
420.000 €
Tipo
Terreno
Negócio
Venda
Ano de Construção
2026
Área Bruta
188 m²
Certificado Energético
N/A
Área do Terreno
377 m²
Terreno Urbano com Projeto Aprovado para Moradia T3 com Mezanine e Piscina | Arneiro, Casc
Lote de terreno urbano com 377 m², localizado em zona residencial consolidada no Arneiro, destinado à construção de moradia unifamiliar.
O terreno dispõe de projeto de arquitetura aprovado para moradia T3, composta por dois pisos acima da cota soleira e cave, com uma área bruta de construção de 188,5 m². Encontra-se inserido numa área de baixa densidade, com boa exposição solar e vistas desafogadas, incluindo vista mar.
Enquadramento Urbanístico
• Lote urbano destinado a habitação unifamiliar
• Área total do terreno: 377 m²
• Área bruta de construção: 188,5 m²
• Nº de pisos: 2 acima do solo + cave
• Projeto de arquitetura aprovado
• Estacionamento em cave
• Piscina prevista em projeto
Descrição do Projeto Aprovado
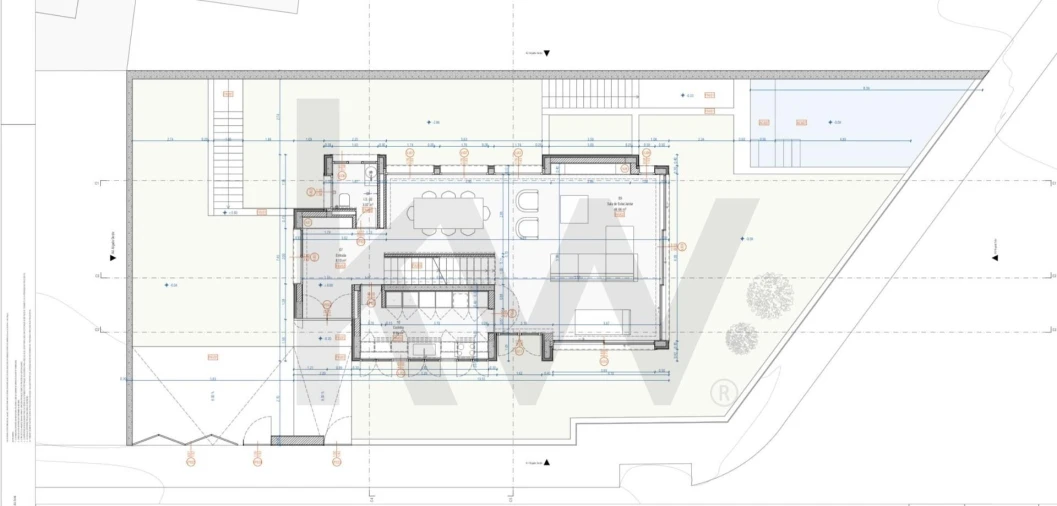
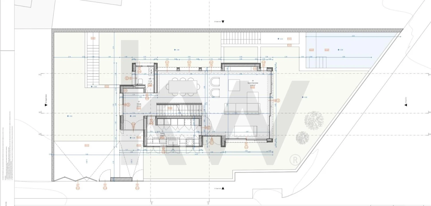
Piso 0 – Zona Social
Área social em open space, composta por sala de estar, sala de jantar e cozinha. A organização do piso privilegia a relação com o exterior através de vãos envidraçados com acesso direto ao terraço e à área da piscina.
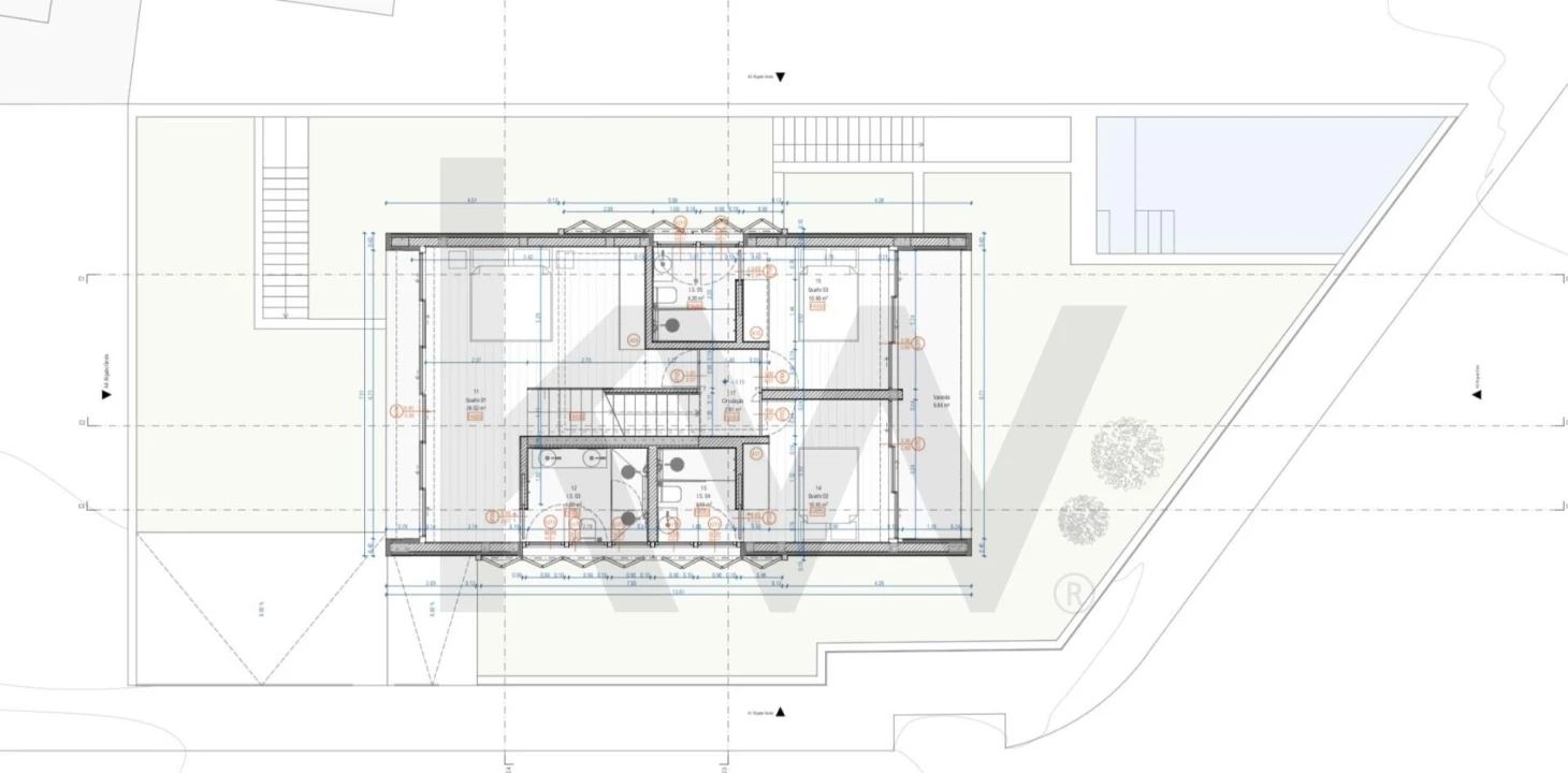
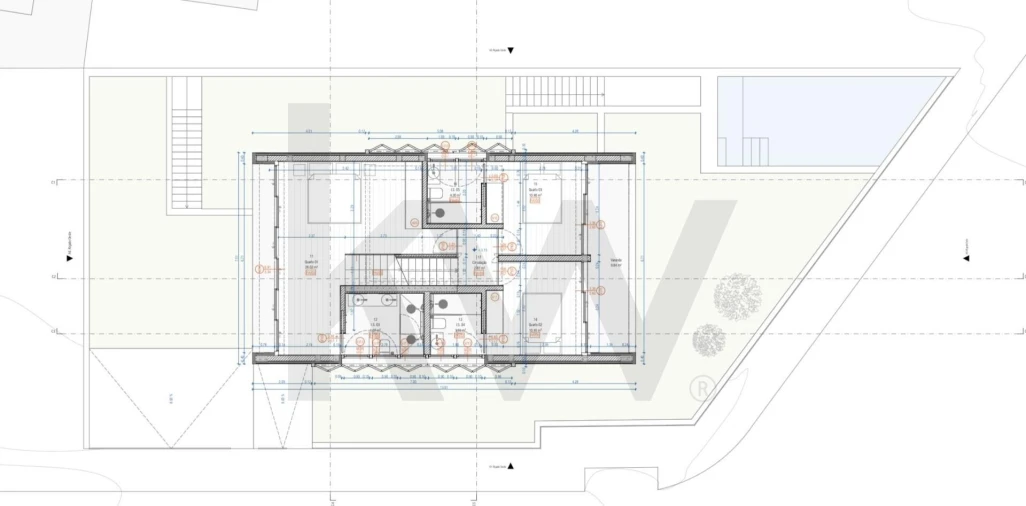
Piso 1 – Zona Privada
Distribuição de três quartos, incluindo uma suíte principal, e instalações sanitárias de apoio. O piso apresenta circulação funcional e boa separação entre áreas privadas e sociais.
Mezanine
Espaço em mezanino sobre a área social, previsto para utilização como escritório, zona de leitura ou área multifuncional, beneficiando de pé-direito duplo.
Cave
Área destinada a estacionamento, arrumos e áreas técnicas, garantindo organização funcional da habitação.
Características Arquitetónicas
• Linguagem contemporânea
• Volumetria simples e funcional
• Fachadas com amplos vãos envidraçados
• Boa iluminação natural
• Integração entre espaços interiores e exteriores
Localização e Acessos
Inserido em zona residencial tranquila e valorizada, com proximidade a comércio, serviços, escolas públicas e privadas, incluindo colégios internacionais. Bons acessos rodoviários à A5, A16 e Marginal, permitindo ligações rápidas a Lisboa, centro de Cascais, Oeiras e praias da linha.
Contate-nos para mais informações.
O terreno dispõe de projeto de arquitetura aprovado para moradia T3, composta por dois pisos acima da cota soleira e cave, com uma área bruta de construção de 188,5 m². Encontra-se inserido numa área de baixa densidade, com boa exposição solar e vistas desafogadas, incluindo vista mar.
Enquadramento Urbanístico
• Lote urbano destinado a habitação unifamiliar
• Área total do terreno: 377 m²
• Área bruta de construção: 188,5 m²
• Nº de pisos: 2 acima do solo + cave
• Projeto de arquitetura aprovado
• Estacionamento em cave
• Piscina prevista em projeto
Descrição do Projeto Aprovado
Piso 0 – Zona Social
Área social em open space, composta por sala de estar, sala de jantar e cozinha. A organização do piso privilegia a relação com o exterior através de vãos envidraçados com acesso direto ao terraço e à área da piscina.
Piso 1 – Zona Privada
Distribuição de três quartos, incluindo uma suíte principal, e instalações sanitárias de apoio. O piso apresenta circulação funcional e boa separação entre áreas privadas e sociais.
Mezanine
Espaço em mezanino sobre a área social, previsto para utilização como escritório, zona de leitura ou área multifuncional, beneficiando de pé-direito duplo.
Cave
Área destinada a estacionamento, arrumos e áreas técnicas, garantindo organização funcional da habitação.
Características Arquitetónicas
• Linguagem contemporânea
• Volumetria simples e funcional
• Fachadas com amplos vãos envidraçados
• Boa iluminação natural
• Integração entre espaços interiores e exteriores
Localização e Acessos
Inserido em zona residencial tranquila e valorizada, com proximidade a comércio, serviços, escolas públicas e privadas, incluindo colégios internacionais. Bons acessos rodoviários à A5, A16 e Marginal, permitindo ligações rápidas a Lisboa, centro de Cascais, Oeiras e praias da linha.
Contate-nos para mais informações.
Localização
São Domingos de Rana, Cascais, Lisboa
Informação do anúncio
ID do anúncio
1606837
Referência Externa
KWPT-026649
Atualizado em
26/04/2026 00:04:59
Terreno para Venda em São Domingos de Rana