Voltar
Terreno para Venda em Almancil Foto 1
Terreno para Venda em Almancil Foto 2
Terreno para Venda em Almancil Foto 3
Terreno para Venda em Almancil Foto 4
Terreno para Venda em Almancil Foto 5

Terreno para Venda em Almancil

500.000 €

Tipo
Terreno
Negócio
Venda
Condição
Em projecto
Certificado Energético
Isento
Área do Terreno
5000 m²

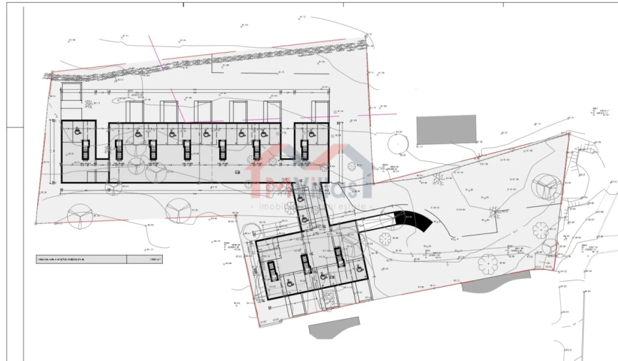
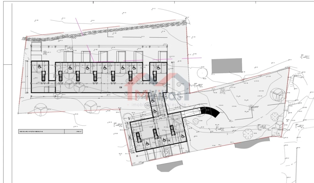
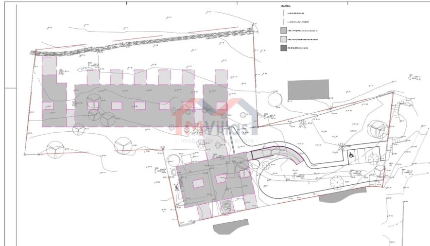
Terreno para construção de 10 moradias no centro com projeto aprovado - Almancil

Terreno para construção de 10 moradias no centro com projeto aprovado - Almancil
O proprietário além do preço pedido, pretende também a permuta de uma moradia independente construida.
Terreno localizado em Almancil, numa zona tranquila a distância a pé de comodidades e a cerca de 7 minutos de carro de praias.
Possui um projeto aprovado que contempla a construção de 10 moradias (8 geminadas e 2 individuais) V4 de 200m² com 2 pisos, cada uma com piscina e estacionamento privativo em garagem comum na cave, sendo que cada moradia terá 3 lugares de estacionamento .
As moradias desfrutam de vista campo.
A propriedade conta com acesso em asfalto e com todas as infra-estruturas.
Adoraríamos que viesse visita-lo.

Localização

Almancil, Loulé, Faro

Informação do anúncio

ID do anúncio 1621130
Referência Externa 2406
Atualizado em 11/02/2026 08:59:17
MVillas AMI 14067
Referência do imóvel: 2406
Phone
MVillas AMI 14067
Referência do imóvel: 2406
Phone
1 / 10
Terreno para Venda em Almancil Foto 1
Terreno para Venda em Almancil Foto 2
Terreno para Venda em Almancil Foto 3
Terreno para Venda em Almancil Foto 4
Terreno para Venda em Almancil Foto 5
Terreno para Venda em Almancil Foto 6
Terreno para Venda em Almancil Foto 7
Terreno para Venda em Almancil Foto 8
Terreno para Venda em Almancil Foto 9
Terreno para Venda em Almancil Foto 10
Clicky