Apartamento T2 para Venda em Gafanha da Boa Hora
355.250 €
Tipo
Apartamento
Negócio
Venda
Ano de Construção
2026
Quartos
2
Casas de Banho
2
Área Bruta
92 m²
Área Útil
86 m²
Condição
Em construção
Certificado Energético
A
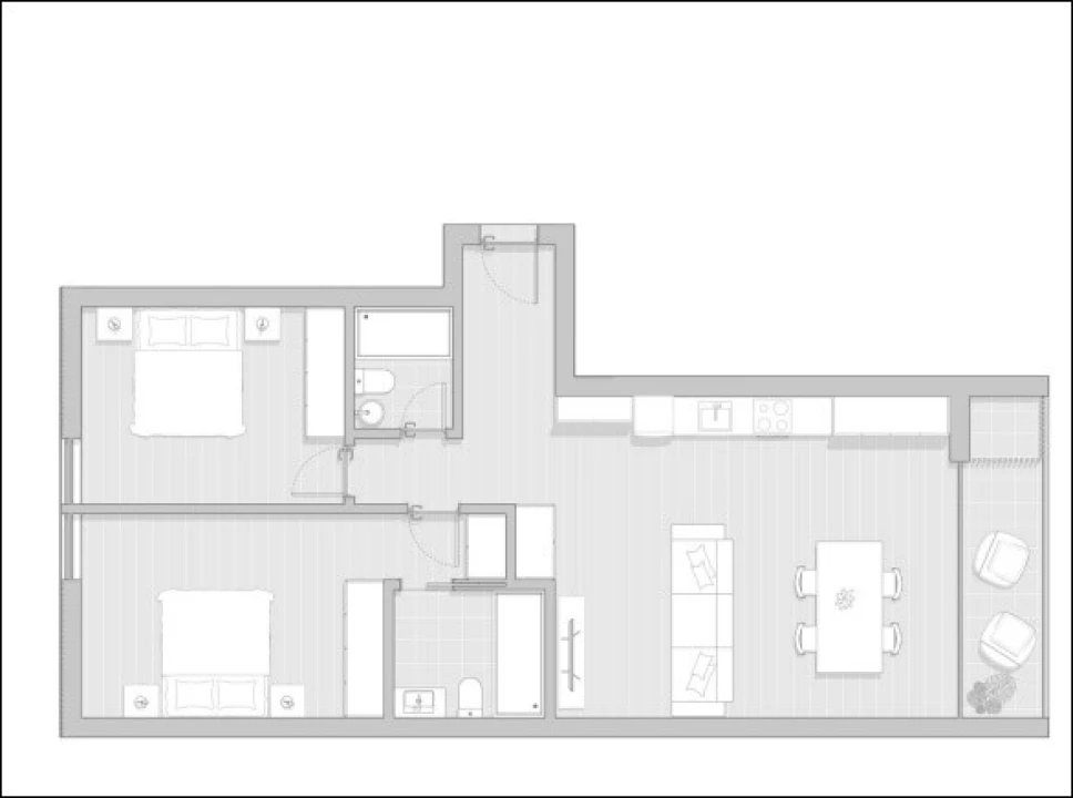
Apartamento T2 com dois lugares de garagem e varanda em (Praia da Vagueira)
Apartamento T2, localizado no prestigiado Edifício 'Boa Terra' na Praia da Vagueira, inserido no (Rés do chão)a escolha perfeita para quem procura conforto, e proximidade ao mar numa das mais belas praias da região de Aveiro.
De design moderno, muita luz natural, os espaços encontram-se bem distribuídos em que cada divisão deste apartamento, oferece conforto e funcionalidade.
Data prevista de conclusão em 2026 (Fotos em 3D)
Composto por: Sala comum com varanda, cozinha mobilada e equipada com eletrodomésticos de alta qualidade e tecnologia avançada, inclui: Exaustor forno, micro ondas, frigorífico combinado, com placa de Indução, máquina de lavar loiça, maquina de lavar roupa, quarto com roupeiro embutido, uma suite e wc completo.
Carateristicas:
-A cozinha está disponivel em 3 opções de cores elegantes (carvalho branco e preto); permitindo que cada espaço seja personalizado de acordo com o gosto de cada morador.
-Os wc's são revestidos a marmore e louças suspensas
-Zona da piscina está estratégicamente localizada na garagem, diretamente abaixo para facilitar o acesso e manutenção, garantindo funcionalidadesem comprometer o design. Área envolvente com pavimento em lajetas cerâmicas de grandes dimensões.
-Portas de segurança e porta fogo em todos os acessos verticais (escadas e garagem)
-Sistema de detenção de incêndios nas áreas comuns.
-Infraestrutura completa para TV a cabo, telefonia internet de alta velocidade e video porteiro com visor a cores.
Soluções sustentáveis com bomba de calor e depósito de alta eficiência para produção de água quente sanitários(AQS)
-Elevadores.
Estacionameto privativo na cave com acessos controlados por portão automático (comando à distância)
Ar condicionado
Caixilharia em aluminio
Blackouts
CURIOSIDADES:
A Praia da Vagueira é a praia mais popular de toda a região. Com um areal extenso e o paredão que convida a longos passeios com vista para o mar, é pela pesca com Arte Xávega que esta praia se distingue de todas as outras. Venha testemunhar a mais antiga forma de pesca no mundo, na qual pequenos barcos enfrentam as ondas da rebentação para largar as redes; e onde pode ajudar os pescadores locais a puxar as redes de volta a terra, com a ajuda de bois ou tratores. Uma tradição que não pode perder.
Assim, desde que o tempo e a maré permitam, haverá́ peixe fresco, acabado de apanhar, à sua espera no mercado ou nos restaurantes locais. Descubra o sabor e a força do Atlântico nesta praia única. É um local tão especial, que a qualidade da água garante a atribuição da bandeira azul desde 1989. Um motivo mais que suficiente para dar um revigorante mergulho no mar.
Venha ainda descobrir o cinema de verão; as aulas de ginástica; os concertos; e as feiras, que animam esta praia durante o Verão. E, no resto do ano, aproveite os fantásticos passadiços para absorver toda a energia do ar do mar.
NÃO DEIXE DE CONCRETIZAR O SEU SONHO!
CONTACTE-NOS, ESPERAMOS POR SI!!!
De design moderno, muita luz natural, os espaços encontram-se bem distribuídos em que cada divisão deste apartamento, oferece conforto e funcionalidade.
Data prevista de conclusão em 2026 (Fotos em 3D)
Composto por: Sala comum com varanda, cozinha mobilada e equipada com eletrodomésticos de alta qualidade e tecnologia avançada, inclui: Exaustor forno, micro ondas, frigorífico combinado, com placa de Indução, máquina de lavar loiça, maquina de lavar roupa, quarto com roupeiro embutido, uma suite e wc completo.
Carateristicas:
-A cozinha está disponivel em 3 opções de cores elegantes (carvalho branco e preto); permitindo que cada espaço seja personalizado de acordo com o gosto de cada morador.
-Os wc's são revestidos a marmore e louças suspensas
-Zona da piscina está estratégicamente localizada na garagem, diretamente abaixo para facilitar o acesso e manutenção, garantindo funcionalidadesem comprometer o design. Área envolvente com pavimento em lajetas cerâmicas de grandes dimensões.
-Portas de segurança e porta fogo em todos os acessos verticais (escadas e garagem)
-Sistema de detenção de incêndios nas áreas comuns.
-Infraestrutura completa para TV a cabo, telefonia internet de alta velocidade e video porteiro com visor a cores.
Soluções sustentáveis com bomba de calor e depósito de alta eficiência para produção de água quente sanitários(AQS)
-Elevadores.
Estacionameto privativo na cave com acessos controlados por portão automático (comando à distância)
Ar condicionado
Caixilharia em aluminio
Blackouts
CURIOSIDADES:
A Praia da Vagueira é a praia mais popular de toda a região. Com um areal extenso e o paredão que convida a longos passeios com vista para o mar, é pela pesca com Arte Xávega que esta praia se distingue de todas as outras. Venha testemunhar a mais antiga forma de pesca no mundo, na qual pequenos barcos enfrentam as ondas da rebentação para largar as redes; e onde pode ajudar os pescadores locais a puxar as redes de volta a terra, com a ajuda de bois ou tratores. Uma tradição que não pode perder.
Assim, desde que o tempo e a maré permitam, haverá́ peixe fresco, acabado de apanhar, à sua espera no mercado ou nos restaurantes locais. Descubra o sabor e a força do Atlântico nesta praia única. É um local tão especial, que a qualidade da água garante a atribuição da bandeira azul desde 1989. Um motivo mais que suficiente para dar um revigorante mergulho no mar.
Venha ainda descobrir o cinema de verão; as aulas de ginástica; os concertos; e as feiras, que animam esta praia durante o Verão. E, no resto do ano, aproveite os fantásticos passadiços para absorver toda a energia do ar do mar.
NÃO DEIXE DE CONCRETIZAR O SEU SONHO!
CONTACTE-NOS, ESPERAMOS POR SI!!!
Localização
Gafanha da Boa Hora, Vagos, Aveiro
Informação do anúncio
ID do anúncio
1623348
Referência Externa
APA_681
Atualizado em
14/02/2026 21:51:38
Anunciante
Chamada para a rede móvel nacional
Chalé de Aveiro
AMI 19731
Referência do imóvel:
APA_681
Apartamento T2 para Venda em Gafanha da Boa Hora