Armazém para Venda em Gême
1.300.000 €
Tipo
Armazém
Negócio
Venda
Área Bruta
1721 m²
Área Útil
1721 m²
Condição
Usado
Certificado Energético
Isento
Área do Terreno
4516 m²
Armazém industrial Geme, Vila Verde, Braga
Armazém industrial localizado no Parque Industrial de Gême, na freguesia de Pico de Regalados, município de Vila Verde, distrito de Braga, está implantado num terreno de 4516m2, com uma significativa área de fabrico de 1916,50m2.
A 'nave' de produção orgulha-se de uma impressionante altura máxima de teto de 8 metros e um vão livre correspondente à largura total do edifício de 40 metros, com elementos estruturais alinhados com as fachadas exteriores. A secção administrativa distribui-se por dois pisos, acessíveis tanto por escadas como por elevador.
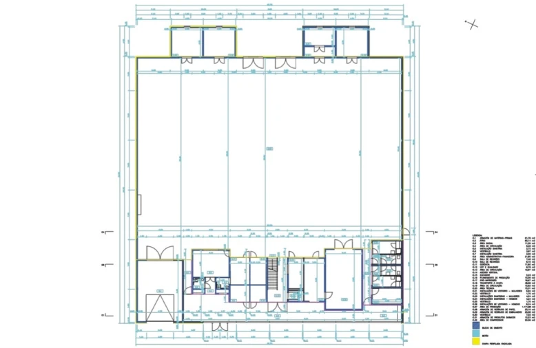
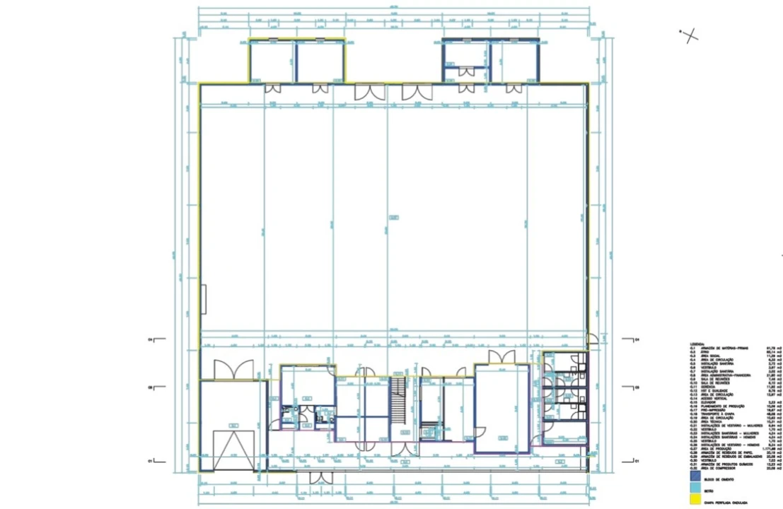
O rés-do-chão é funcionalmente caracterizado por uma área de receção, espaço social, área financeira-administrativa, duas salas de reuniões, três salas para diversas funcionalidades, vestiários e instalações sanitárias.
O primeiro andar é composto por um vestíbulo, sala de arquivo, gabinete de gerência, sala de reuniões, sala de formação e instalações sanitárias. A qualidade da construção é acima da média para este tipo de edifício, apresentando uma estrutura metálica, cobertura em painel sandwich e pavimento em betonilha industrial de alta densidade. A área administrativa tem acabamentos de alto padrão com tetos falsos, pavimento cerâmico e áreas envidraçadas de boa dimensão.
O exterior é revestido a chapa metálica. Destacam-se ainda características como rede de ar comprimido, ar condicionado em toda a área de fabrico, atenção especial à iluminação com um valor constante de 500/600lux, isolamento acústico, piso anti-derrapante, sistema de alarme de intrusão em todos os setores, portas de saída com sistema de proteção e estudo geológico do terreno. O facto de a construção ter sido objeto de um meticuloso projeto de arquitetura/engenharia confere-lhe um elevado grau de qualidade em termos de cumprimento do projeto.
Com bons acessos, a zona industrial está bem estruturada, situada a 500 metros da EN101, aproximadamente a 3 quilómetros do centro de Vila Verde e a 20 quilómetros do centro de Braga. Esta descrição não só realça os atributos funcionais e estruturais do armazém, mas também enfatiza a sua localização estratégica dentro da zona industrial, garantindo facilidade de acesso e eficiência operacional.
2. Descrição do Imóvel
2.1 Localização
Imóvel localizado na zona industrial de Gême, na saída norte de Vila Verde pela EN101. Local com bons acessos, devidamente infraestruturado, com a referida EN a 500m e o centro da vila a 3km. A presença de equipamentos e serviços na envolvente é pouco significativa. Está prevista a construção de uma variante de ligação à zona industrial com vista a melhorar os acessos a localidades próximas.
2.2 Composição do prédio
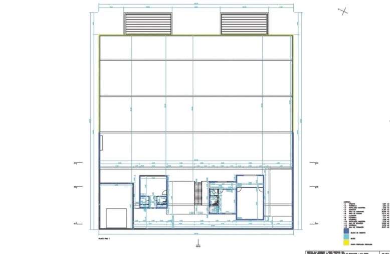
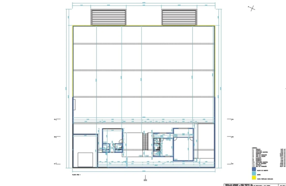
Prédio urbano em propriedade total destinado a armazém e actividade industrial implantado em terreno com 4516m2. A nave de produção tem um pé-direito máximo de 8m e um vão livre correspondente à largura total do edifício, com os elementos estruturais a acompanharem as fachadas exteriores. O corpo administrativo é composto por dois pisos servido por elevador.
2.3 Compartimentação
A nave central é ampla, e a zona de serviços é constituída por:
Rés-do-chão - Recepção, área social, área administrativa-financeira, i.s. M/F, duas salas de reuniões, planeamento, pré-impressão, gerência, HST e qualidade, vestiários M/F.
1.o Andar - arquivo, vestíbulo, i.s. M/F, gerência, sala de reuniões e sala de formação.
2.4 Descrição da construção
Construção de boa qualidade, acima do normal para este tipo de edifícios, assente em estrutura metálica, cobertura em painel sandwich assente em asnas metálicas, pavimento em betonilha industrial de alta densidade. A zona administrativa tem um bom nível de acabamentos com tectos falsos, pavimento cerâmico, zonas envidraçadas de boa dimensão. Revestimento exterior em chapa. De referir ainda a existência de rede de ar comprimido, ar condicionado em toda a zona fabril e um cuidado especial na iluminação com um valor constante de 500/600lux também nesta zona. O facto da obra ter tido sido objecto de fiscalização de um gabinete de engenharia confere- lhe uma grau de qualidade quanto ao cumprimento do projecto que não é vulgar acontecer.
2.5 Idade do imóvel, obras e estado de conservação
Imóvel com cerca de 10 anos de serviço em muito bom estado de conservação interior e exterior, sem patologias visíveis dignas de registo.
2.6 Uso e ocupação
Imóvel destinado a armazém e actividade industrial encontra-se desocupado.
2.7 Áreas
A partir da medição em CAD das plantas de arquitectura. Terreno: 4516m2
Implantação: 1721m2
Armazém: 1200m2
Serviços: 240m2 por piso (total 480m2)
Outros (circulação): 281m2
OPORTUNIDADE DE NEGÓCIO
A 'nave' de produção orgulha-se de uma impressionante altura máxima de teto de 8 metros e um vão livre correspondente à largura total do edifício de 40 metros, com elementos estruturais alinhados com as fachadas exteriores. A secção administrativa distribui-se por dois pisos, acessíveis tanto por escadas como por elevador.
O rés-do-chão é funcionalmente caracterizado por uma área de receção, espaço social, área financeira-administrativa, duas salas de reuniões, três salas para diversas funcionalidades, vestiários e instalações sanitárias.
O primeiro andar é composto por um vestíbulo, sala de arquivo, gabinete de gerência, sala de reuniões, sala de formação e instalações sanitárias. A qualidade da construção é acima da média para este tipo de edifício, apresentando uma estrutura metálica, cobertura em painel sandwich e pavimento em betonilha industrial de alta densidade. A área administrativa tem acabamentos de alto padrão com tetos falsos, pavimento cerâmico e áreas envidraçadas de boa dimensão.
O exterior é revestido a chapa metálica. Destacam-se ainda características como rede de ar comprimido, ar condicionado em toda a área de fabrico, atenção especial à iluminação com um valor constante de 500/600lux, isolamento acústico, piso anti-derrapante, sistema de alarme de intrusão em todos os setores, portas de saída com sistema de proteção e estudo geológico do terreno. O facto de a construção ter sido objeto de um meticuloso projeto de arquitetura/engenharia confere-lhe um elevado grau de qualidade em termos de cumprimento do projeto.
Com bons acessos, a zona industrial está bem estruturada, situada a 500 metros da EN101, aproximadamente a 3 quilómetros do centro de Vila Verde e a 20 quilómetros do centro de Braga. Esta descrição não só realça os atributos funcionais e estruturais do armazém, mas também enfatiza a sua localização estratégica dentro da zona industrial, garantindo facilidade de acesso e eficiência operacional.
2. Descrição do Imóvel
2.1 Localização
Imóvel localizado na zona industrial de Gême, na saída norte de Vila Verde pela EN101. Local com bons acessos, devidamente infraestruturado, com a referida EN a 500m e o centro da vila a 3km. A presença de equipamentos e serviços na envolvente é pouco significativa. Está prevista a construção de uma variante de ligação à zona industrial com vista a melhorar os acessos a localidades próximas.
2.2 Composição do prédio
Prédio urbano em propriedade total destinado a armazém e actividade industrial implantado em terreno com 4516m2. A nave de produção tem um pé-direito máximo de 8m e um vão livre correspondente à largura total do edifício, com os elementos estruturais a acompanharem as fachadas exteriores. O corpo administrativo é composto por dois pisos servido por elevador.
2.3 Compartimentação
A nave central é ampla, e a zona de serviços é constituída por:
Rés-do-chão - Recepção, área social, área administrativa-financeira, i.s. M/F, duas salas de reuniões, planeamento, pré-impressão, gerência, HST e qualidade, vestiários M/F.
1.o Andar - arquivo, vestíbulo, i.s. M/F, gerência, sala de reuniões e sala de formação.
2.4 Descrição da construção
Construção de boa qualidade, acima do normal para este tipo de edifícios, assente em estrutura metálica, cobertura em painel sandwich assente em asnas metálicas, pavimento em betonilha industrial de alta densidade. A zona administrativa tem um bom nível de acabamentos com tectos falsos, pavimento cerâmico, zonas envidraçadas de boa dimensão. Revestimento exterior em chapa. De referir ainda a existência de rede de ar comprimido, ar condicionado em toda a zona fabril e um cuidado especial na iluminação com um valor constante de 500/600lux também nesta zona. O facto da obra ter tido sido objecto de fiscalização de um gabinete de engenharia confere- lhe uma grau de qualidade quanto ao cumprimento do projecto que não é vulgar acontecer.
2.5 Idade do imóvel, obras e estado de conservação
Imóvel com cerca de 10 anos de serviço em muito bom estado de conservação interior e exterior, sem patologias visíveis dignas de registo.
2.6 Uso e ocupação
Imóvel destinado a armazém e actividade industrial encontra-se desocupado.
2.7 Áreas
A partir da medição em CAD das plantas de arquitectura. Terreno: 4516m2
Implantação: 1721m2
Armazém: 1200m2
Serviços: 240m2 por piso (total 480m2)
Outros (circulação): 281m2
OPORTUNIDADE DE NEGÓCIO
Localização
Gême, Vila Verde, Braga
Informação do anúncio
ID do anúncio
1624065
Referência Externa
MAG_3365
Atualizado em
16/02/2026 00:02:32
Consultor
H Urb Imobiliária
Armazém para Venda em Gême