Escritório para Arrendamento em Santa Marinha e São Pedro da Afurada
925 €
Tipo
Escritório
Negócio
Arrendamento
Casas de Banho
1
Área Bruta
68 m²
Área Útil
55 m²
Condição
Usado
Certificado Energético
C
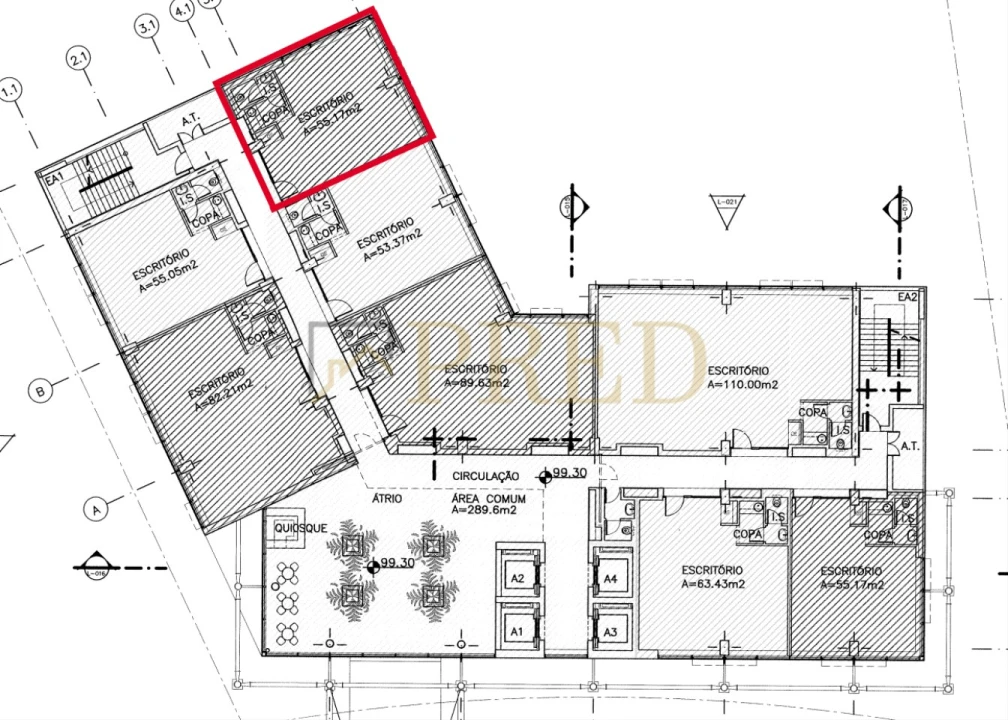
Escritório com vista Rio Douro - Edifício Tower Plaza
Escritório com excelente vista para o Rio Douro, com 55,1 m2, composto por sala com divisória, WC, copa e 1 lugar de garagem.
O Tower Plaza é um empreendimento de escritórios com espaços concebidos de forma a garantir elevados padrões de qualidade aos seus residentes e visitantes.
Segurança 24 horas reforçada por sistema de vigilância eletrónica;
3 elevadores com capacidade para 10 pessoas/cada (800kg) e 1 elevador monta-cargas com capacidade para 13 pessoas (1.000kg);
As zonas comuns são marcadas por amplos halls interiores entre pisos. Espaços de convívio e descontração onde a hospitalidade da luz natural e as magníficas vistas sobre as cidades do Porto e de Vila Nova de Gaia garantem o conforto de quem os utiliza.
Estacionamento coberto;
Estacionamento abundante no exterior;
Temos no mesmo edifício mais escritórios com variadas áreas.
NOTA:
Ao valor do arrendamento acresce valor do IVA
Condomínio não incluído no valor da renda.
As áreas brutas apresentadas inclui escritório e lugar de garagem.
Localização
Santa Marinha e São Pedro da Afurada, Vila Nova de Gaia, Porto
Este site utiliza cookies. Ao navegar no site estará a consentir a sua utilização. Para mais informações sobre os cookies pode consultar a
política de privacidade.