Voltar
Prédio para Venda em Sacavém e Prior Velho Foto 1
Prédio para Venda em Sacavém e Prior Velho Foto 2
Prédio para Venda em Sacavém e Prior Velho Foto 3
Prédio para Venda em Sacavém e Prior Velho Foto 4
Prédio para Venda em Sacavém e Prior Velho Foto 5

Prédio para Venda em Sacavém e Prior Velho

8.000.000 €

Tipo
Prédio
Negócio
Venda
Área Bruta
11325 m²
Condição
Usado
Certificado Energético
B
Área do Terreno
5011 m²

Prédio Industrial com 11.325 m2 para Venda, no Prior velho, ao lado do Aeroporto de Lisboa

Prédio Industrial com 11.325 m2 para Venda, no Prior velho, ao lado do Aeroporto de Lisboa

Área total de Construção: 11.325 m2
Área total do Terreno: 5011 m2

Detalhes:

- Prédio com 5 pisos com cerca de 1800m2/piso
- 2 Armazéns, cada com cerca de 1200m2 e um com Pé direito de 10m de Altura
- 1 Armazém com 3 andares, com cerca de 830 m2



Prédio com 11 000m2 de construção, inserido na zona industrial no Prior velho, junto do aeroporto de Lisboa, capacidade energética de 10KVA´s de potência Excelente Localização, saídas para A1, Ponte Vasco da Gama, a 2 minutos do aeroporto de Lisboa (2ª Circular)

Zona de Vertente Industrial onde encontra a maior oferta de Armazéns [Logísticos ou Industriais], com um grande número de residentes a trabalhar na freguesia.


Composto por:

Piso 1
- Oficina Matalomecânica;
- Armazéns;
- Recepção;
- Gabinetes Administrativos;
- Páteo Exterior;
- Elevador Monta-Cargas. (750kg) (535kg)

Piso 2
- Balneário;
- Estacionamento Privativo ( Quantos lugares??);
- Cais de Descargas;
- Espaço comercial para alugar;
- 1 WC

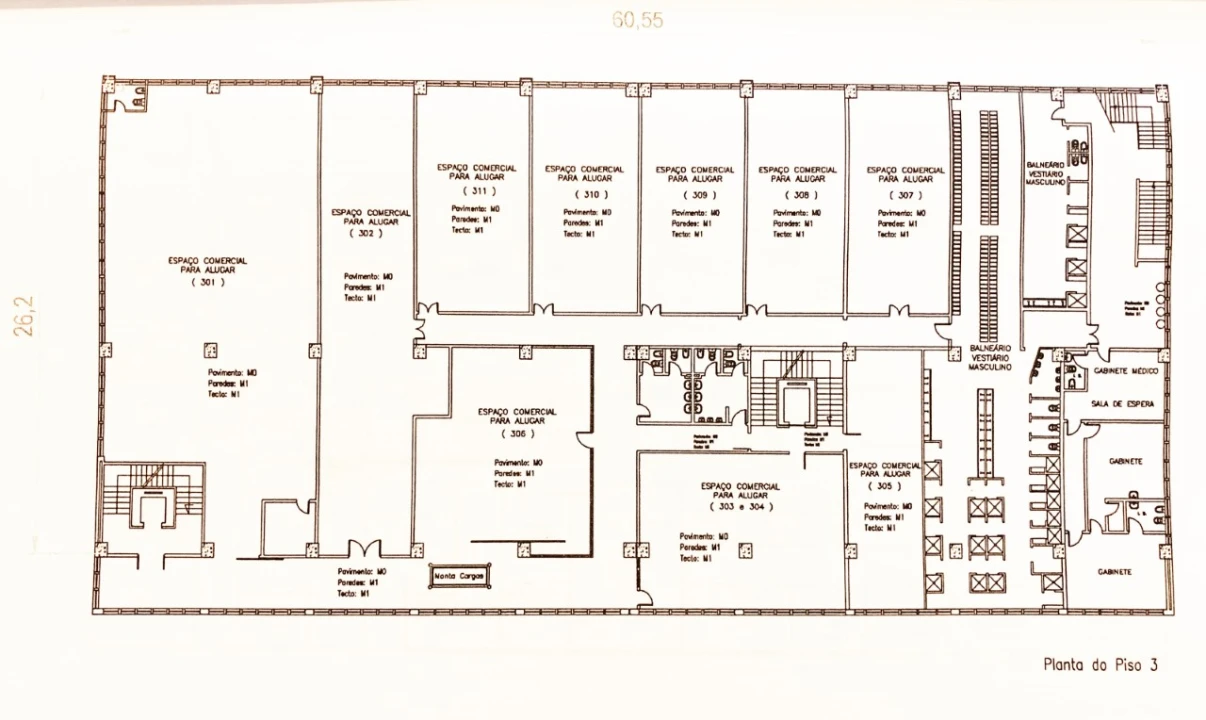
Piso 3
- 10 Espaços Comerciais para alugar;
- Balneário/ Vestuário;
- 2 Gabinetes Médicos + Recepção.
- 2 WC´s

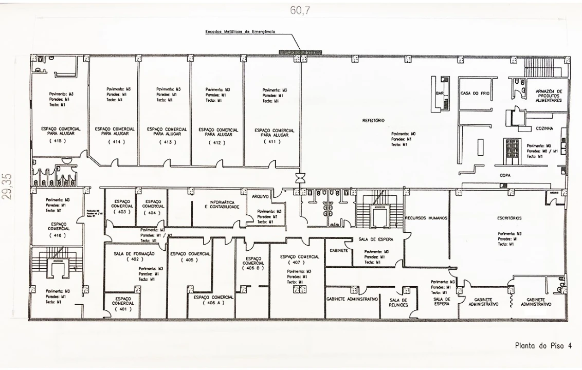
Piso 4
- Refeitório, Bar, Cozinha, Armazém Alimentar;
- 13 Espaços Comerciais para alugar;
- 1 Sala de Formação;
- 9 Escritórios/Gabinetes;
- 2 WC´s

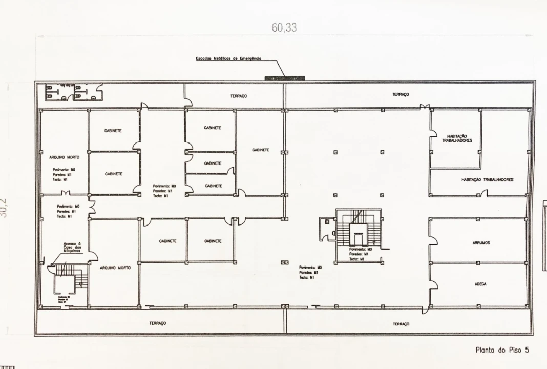
Piso 5
- Habitação de trabalhadores;
- Adega;
- Arrumos;
- 2 Terraços;
- 2 WC´s

Armazém 1
- Open Space com apenas 1 piso, pé direito de 10m de Altura
15m x 80m
10m Altura

Armazém 2
- Open Space com apenas 1 piso, pé direito de 10m de Altura
15m x 80m
10m Altura
10m Altura

Armazém 3
- Composto por 3 Pisos, com cerca de 276m2 por Piso
12m x 23m (cada piso)


----------

Alguma dúvida, não hesite em contactar-nos.

NOTA: Fazemos parceria e partilha com todas as imobiliárias profissionais em regime de 50% / 50%.

----

SOBRE A LT REAL ESTATE

LT Real Estate foi fundada por Marisa Guedes e Bruno Queirós, com o objetivo de ser uma marca referência no Mercado de Habitação Premium/Luxo e na área de Investimentos.

A exclusividade, celeridade e qualidade de serviço aos seus clientes são os pilares mais importantes da marca.

Na LT somos focados na atenção dada a cada cliente, com o objetivo que a sua experiência seja única e inesquecível.


ltrealestate.pt

Localização

Sacavém e Prior Velho, Loures, Lisboa

Informação do anúncio

ID do anúncio 1631275
Referência Externa EDI_2035
Atualizado em 27/02/2026 05:25:47
LT Real Estate AMI 19915
Referência do imóvel: EDI_2035
Phone
Chamada para a rede móvel nacional
LT Real Estate AMI 19915
Referência do imóvel: EDI_2035
Phone
Chamada para a rede móvel nacional
1 / 61
Prédio para Venda em Sacavém e Prior Velho Foto 1
Prédio para Venda em Sacavém e Prior Velho Foto 2
Prédio para Venda em Sacavém e Prior Velho Foto 3
Prédio para Venda em Sacavém e Prior Velho Foto 4
Prédio para Venda em Sacavém e Prior Velho Foto 5
Prédio para Venda em Sacavém e Prior Velho Foto 6
Prédio para Venda em Sacavém e Prior Velho Foto 7
Prédio para Venda em Sacavém e Prior Velho Foto 8
Prédio para Venda em Sacavém e Prior Velho Foto 9
Prédio para Venda em Sacavém e Prior Velho Foto 10
Prédio para Venda em Sacavém e Prior Velho Foto 11
Prédio para Venda em Sacavém e Prior Velho Foto 12
Prédio para Venda em Sacavém e Prior Velho Foto 13
Prédio para Venda em Sacavém e Prior Velho Foto 14
Prédio para Venda em Sacavém e Prior Velho Foto 15
Prédio para Venda em Sacavém e Prior Velho Foto 16
Prédio para Venda em Sacavém e Prior Velho Foto 17
Prédio para Venda em Sacavém e Prior Velho Foto 18
Prédio para Venda em Sacavém e Prior Velho Foto 19
Prédio para Venda em Sacavém e Prior Velho Foto 20
Prédio para Venda em Sacavém e Prior Velho Foto 21
Prédio para Venda em Sacavém e Prior Velho Foto 22
Prédio para Venda em Sacavém e Prior Velho Foto 23
Prédio para Venda em Sacavém e Prior Velho Foto 24
Prédio para Venda em Sacavém e Prior Velho Foto 25
Prédio para Venda em Sacavém e Prior Velho Foto 26
Prédio para Venda em Sacavém e Prior Velho Foto 27
Prédio para Venda em Sacavém e Prior Velho Foto 28
Prédio para Venda em Sacavém e Prior Velho Foto 29
Prédio para Venda em Sacavém e Prior Velho Foto 30
Prédio para Venda em Sacavém e Prior Velho Foto 31
Prédio para Venda em Sacavém e Prior Velho Foto 32
Prédio para Venda em Sacavém e Prior Velho Foto 33
Prédio para Venda em Sacavém e Prior Velho Foto 34
Prédio para Venda em Sacavém e Prior Velho Foto 35
Prédio para Venda em Sacavém e Prior Velho Foto 36
Prédio para Venda em Sacavém e Prior Velho Foto 37
Prédio para Venda em Sacavém e Prior Velho Foto 38
Prédio para Venda em Sacavém e Prior Velho Foto 39
Prédio para Venda em Sacavém e Prior Velho Foto 40
Prédio para Venda em Sacavém e Prior Velho Foto 41
Prédio para Venda em Sacavém e Prior Velho Foto 42
Prédio para Venda em Sacavém e Prior Velho Foto 43
Prédio para Venda em Sacavém e Prior Velho Foto 44
Prédio para Venda em Sacavém e Prior Velho Foto 45
Prédio para Venda em Sacavém e Prior Velho Foto 46
Prédio para Venda em Sacavém e Prior Velho Foto 47
Prédio para Venda em Sacavém e Prior Velho Foto 48
Prédio para Venda em Sacavém e Prior Velho Foto 49
Prédio para Venda em Sacavém e Prior Velho Foto 50
Prédio para Venda em Sacavém e Prior Velho Foto 51
Prédio para Venda em Sacavém e Prior Velho Foto 52
Prédio para Venda em Sacavém e Prior Velho Foto 53
Prédio para Venda em Sacavém e Prior Velho Foto 54
Prédio para Venda em Sacavém e Prior Velho Foto 55
Prédio para Venda em Sacavém e Prior Velho Foto 56
Prédio para Venda em Sacavém e Prior Velho Foto 57
Prédio para Venda em Sacavém e Prior Velho Foto 58
Prédio para Venda em Sacavém e Prior Velho Foto 59
Prédio para Venda em Sacavém e Prior Velho Foto 60
Prédio para Venda em Sacavém e Prior Velho Foto 61
Planta 1 / 6
Prédio para Venda em Sacavém e Prior Velho Planta 1
Prédio para Venda em Sacavém e Prior Velho Planta 2
Prédio para Venda em Sacavém e Prior Velho Planta 3
Prédio para Venda em Sacavém e Prior Velho Planta 4
Prédio para Venda em Sacavém e Prior Velho Planta 5
Prédio para Venda em Sacavém e Prior Velho Planta 6
Clicky