Moradia T3 para Venda em Correlhã
380.000 €
Tipo
Moradia
Negócio
Venda
Quartos
3
Casas de Banho
3
Área Bruta
280 m²
Área Útil
160 m²
Condição
Em construção
Certificado Energético
A+
Área do Terreno
350 m²
Características
Arrecadação
Moradia T3 em construção situada na Correlhã - Ponte de Lima
Excelente Moradia T3, situada na Correlhã (Ponte de Lima)
Moradia com 2 frentes, bons acessos, perto de todos os serviços, boa exposição solar e ótimos acabamentos.
Distribuição:
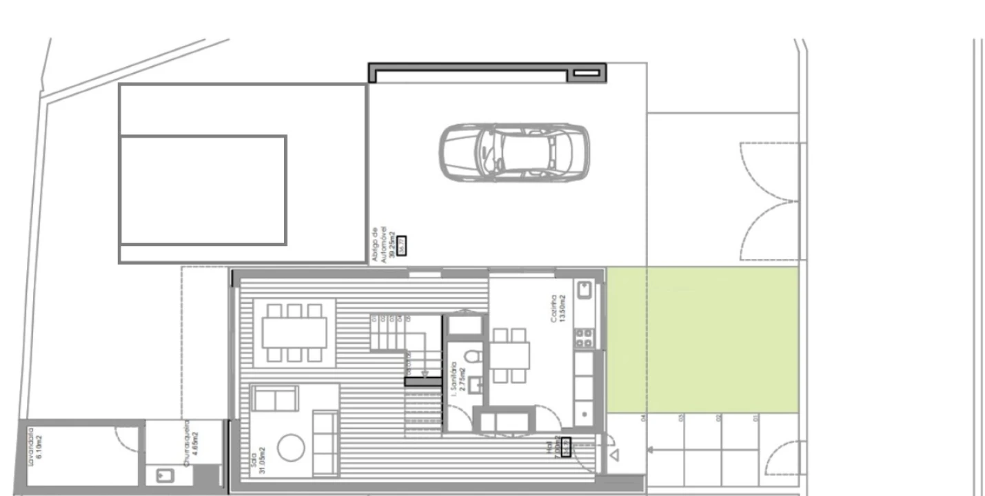
No rés do chão temos um logradouro com jardim, terraço, churrasqueira, cozinha, sala ampla, Lugar de garagem coberto e descoberto e lavandaria
No 1º. andar temos hall quartos, 3 quartos com roupeiros e varanda, 2 Wcs sendo 1 da suite, 1 partilhado e terraço
Equipamentos:
Cozinha equipada com exausto
Estores Elétricos, portões automatizados
Pré instalação de ar condicionado e bomba de calor AQS
Neste momento temos 4 moradias em construção, com ou sem possibilidade de a fazer piscina mediante o respetivo acerto de valores.
Todas as Moradias tem a possibilidade de serem personalizadas!
Condomínio fechado!
Venha visitar!
MITOS E REALIDADES - Sociedade de Mediação Imobiliária, Lda.
Licença AMI - 11024
Empresa do setor imobiliário que atua no mercado de Arrendamento e Venda de Imóveis.
Com um padrão de seriedade na prestação de serviços imobiliários, procura realizar bons negócios com eficiência, proporcionando assim, tranquilidade aos seus clientes.
A nossa equipa de colaboradores é formada por profissionais experientes, com vasto conhecimento para sugerir as melhores alternativas. Além disso, dispomos de um sistema totalmente informatizado, o que permite uma maior agilidade na pesquisa e adequação do perfil do imóvel às solicitações do cliente.
Apoiada pelo profissionalismo e seriedade, a MITOS está colocada entre as maiores imobiliárias de Viana do Castelo.
#mitos
#mitosimobiliaria
#imobiliária
#vianadocastelo
#realestate
Moradia com 2 frentes, bons acessos, perto de todos os serviços, boa exposição solar e ótimos acabamentos.
Distribuição:
No rés do chão temos um logradouro com jardim, terraço, churrasqueira, cozinha, sala ampla, Lugar de garagem coberto e descoberto e lavandaria
No 1º. andar temos hall quartos, 3 quartos com roupeiros e varanda, 2 Wcs sendo 1 da suite, 1 partilhado e terraço
Equipamentos:
Cozinha equipada com exausto
Estores Elétricos, portões automatizados
Pré instalação de ar condicionado e bomba de calor AQS
Neste momento temos 4 moradias em construção, com ou sem possibilidade de a fazer piscina mediante o respetivo acerto de valores.
Todas as Moradias tem a possibilidade de serem personalizadas!
Condomínio fechado!
Venha visitar!
MITOS E REALIDADES - Sociedade de Mediação Imobiliária, Lda.
Licença AMI - 11024
Empresa do setor imobiliário que atua no mercado de Arrendamento e Venda de Imóveis.
Com um padrão de seriedade na prestação de serviços imobiliários, procura realizar bons negócios com eficiência, proporcionando assim, tranquilidade aos seus clientes.
A nossa equipa de colaboradores é formada por profissionais experientes, com vasto conhecimento para sugerir as melhores alternativas. Além disso, dispomos de um sistema totalmente informatizado, o que permite uma maior agilidade na pesquisa e adequação do perfil do imóvel às solicitações do cliente.
Apoiada pelo profissionalismo e seriedade, a MITOS está colocada entre as maiores imobiliárias de Viana do Castelo.
#mitos
#mitosimobiliaria
#imobiliária
#vianadocastelo
#realestate
Localização
Correlhã, Ponte de Lima, Viana do Castelo
Informação do anúncio
ID do anúncio
1632534
Referência Externa
R1032
Atualizado em
25/04/2026 06:56:45
Anunciante
Chamada para a rede fixa nacional
Mitos - Mediação Imobiliária
AMI 11024
Referência do imóvel:
R1032
Moradia T3 para Venda em Correlhã
Vídeo