Armazém para Venda em Sacavém e Prior Velho
5.600.000 €
Tipo
Armazém
Negócio
Venda
Ano de Construção
1978
Casas de Banho
4
Área Bruta
4830 m²
Área Útil
3335 m²
Condição
Usado
Certificado Energético
D
Área do Terreno
1039 m²
Armazém com 5 Pisos no Prior Velho
Armazém para Venda no Prior Velho
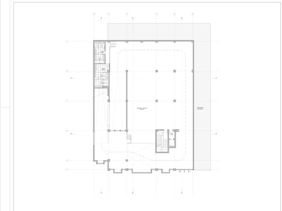
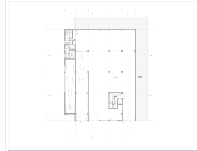
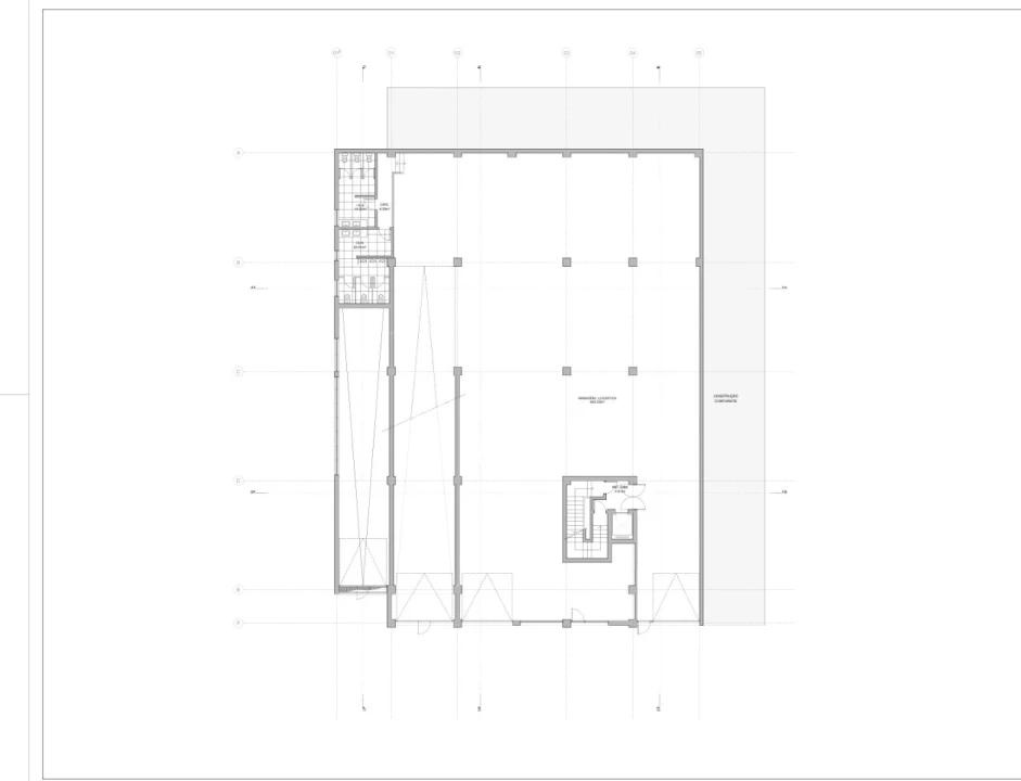
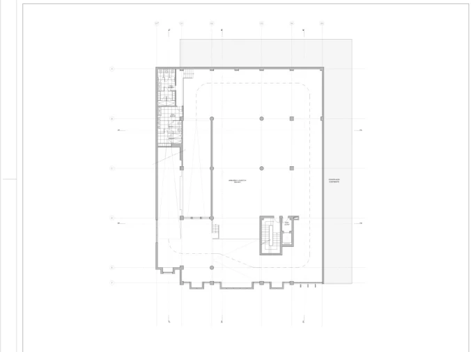
Edifício de cinco pisos destinado a armazéns e atividades industriais (Tipologia 13).
Não perca a chance de adquirir um armazém excepcional no Prior Velho, concelho de Loures. Com uma generosa área bruta privativa de 4.830 m², este imóvel oferece uma excelente oportunidade para quem deseja expandir ou iniciar um negócio em uma localização de destaque.
Características do Armazém:
- Área Bruta Privativa: 4.830 m²
- Superfície Coberta: 1.035 m²
- Cave: Com cinco câmaras frigoríficas e uma divisão equipada com máquinas.
- Rés-do-chão: Uma divisão ampla e versátil com sanitários.
- Primeiro Piso: Uma divisão ampla, WC e um escritório com mais uma sala
- Segundo Piso: Uma divisão com frigorífico e WC, além de uma área que pode ser utilizada como escritório ou sala de reuniões.
- Águas Furtadas: Espaço adicional com casa de banho.
Infraestrutura de Acesso:
- Acesso facilitado através de uma rampa de 4 m², ideal para operações logísticas.
Localizado em Prior Velho, este armazém beneficia de uma posição estratégica, próximo a importantes vias de acesso e bem servido por transportes públicos, conferindo fácil ligação a Lisboa e arredores. A zona apresenta um ambiente dinâmico com um crescente número de empresas na área.
Potencial de Negócio:
Ideal para:
- Armazéns de distribuição
- Indústrias alimentícias ou farmacêuticas (aproveitando as câmaras frigoríficas)
- Empresas de logística
- Escritórios de apoio a atividades industriais
Porque Investir em Prior Velho?
- Proximidade a centros urbanos
- Acessibilidade à rede rodoviária
- Valorização contínua da área, impulsionando oportunidades de negócio
Para mais informações ou para agendar uma visita, entre em contato connosco e descubra tudo o que este armazém pode oferecer ao seu negócio.
Edifício de cinco pisos destinado a armazéns e atividades industriais (Tipologia 13).
Não perca a chance de adquirir um armazém excepcional no Prior Velho, concelho de Loures. Com uma generosa área bruta privativa de 4.830 m², este imóvel oferece uma excelente oportunidade para quem deseja expandir ou iniciar um negócio em uma localização de destaque.
Características do Armazém:
- Área Bruta Privativa: 4.830 m²
- Superfície Coberta: 1.035 m²
- Cave: Com cinco câmaras frigoríficas e uma divisão equipada com máquinas.
- Rés-do-chão: Uma divisão ampla e versátil com sanitários.
- Primeiro Piso: Uma divisão ampla, WC e um escritório com mais uma sala
- Segundo Piso: Uma divisão com frigorífico e WC, além de uma área que pode ser utilizada como escritório ou sala de reuniões.
- Águas Furtadas: Espaço adicional com casa de banho.
Infraestrutura de Acesso:
- Acesso facilitado através de uma rampa de 4 m², ideal para operações logísticas.
Localizado em Prior Velho, este armazém beneficia de uma posição estratégica, próximo a importantes vias de acesso e bem servido por transportes públicos, conferindo fácil ligação a Lisboa e arredores. A zona apresenta um ambiente dinâmico com um crescente número de empresas na área.
Potencial de Negócio:
Ideal para:
- Armazéns de distribuição
- Indústrias alimentícias ou farmacêuticas (aproveitando as câmaras frigoríficas)
- Empresas de logística
- Escritórios de apoio a atividades industriais
Porque Investir em Prior Velho?
- Proximidade a centros urbanos
- Acessibilidade à rede rodoviária
- Valorização contínua da área, impulsionando oportunidades de negócio
Para mais informações ou para agendar uma visita, entre em contato connosco e descubra tudo o que este armazém pode oferecer ao seu negócio.
Localização
Sacavém e Prior Velho, Loures, Lisboa
Informação do anúncio
ID do anúncio
1634971
Referência Externa
ARMMBB003
Atualizado em
14/02/2026 02:13:05
Anunciante
Chamada para a rede móvel nacional
IMOJOY REAL ESTATE
AMI 12689
Referência do imóvel:
ARMMBB003
Armazém para Venda em Sacavém e Prior Velho
Vídeo